1 / 2
Villa Såld

Villa 14 - Eneboslingan 11B

Alster, Karlstad

Tillhör projekt

Kv Alster
Boarea 156 m²
Tomtarea 1 227 m²

Flyttklart hus i Alster

Nu har du chansen att bli ägare till ett nybyggt 2-planshus med garage i naturnära Alster. Här bor du underhållsfritt i många år framöver, med mycket lägre driftskostnader än i ett begagnat hus.

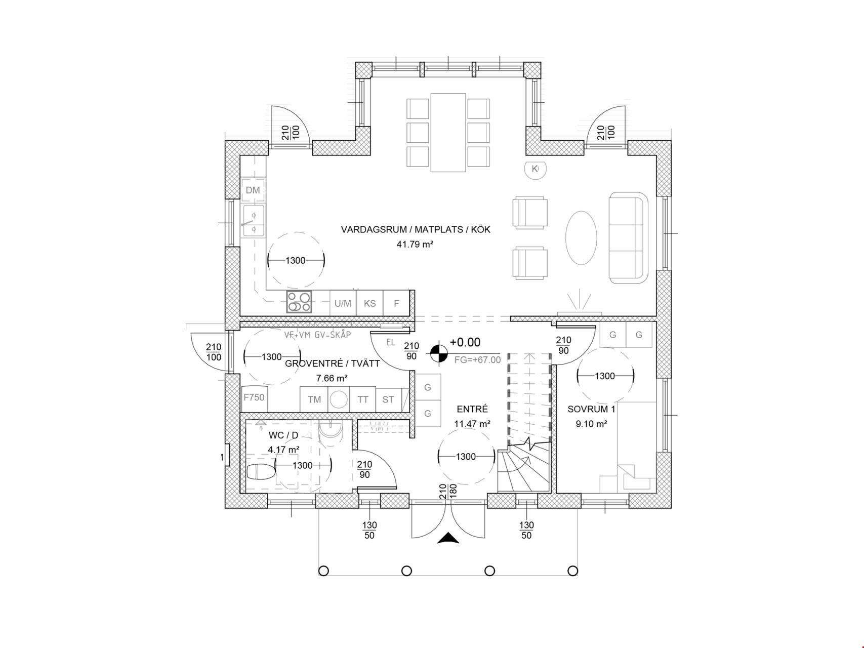
Välkommen in i denna nyproducerade villa om 156 kvm med 6 rum och kök. När du kliver in i det här huset möts du av en rymlig entré med tvättstuga och badrum direkt till vänster. Fortsätter du in i huset kommer du till den stora samvaroytan och det vackra burpråket med panoramafönster. På den här öppna ytan rymmer du både en större matplats och soffgrupp. Slutligen finner vi ett av husets fyra sovrum på det här trevliga våningsplanet.

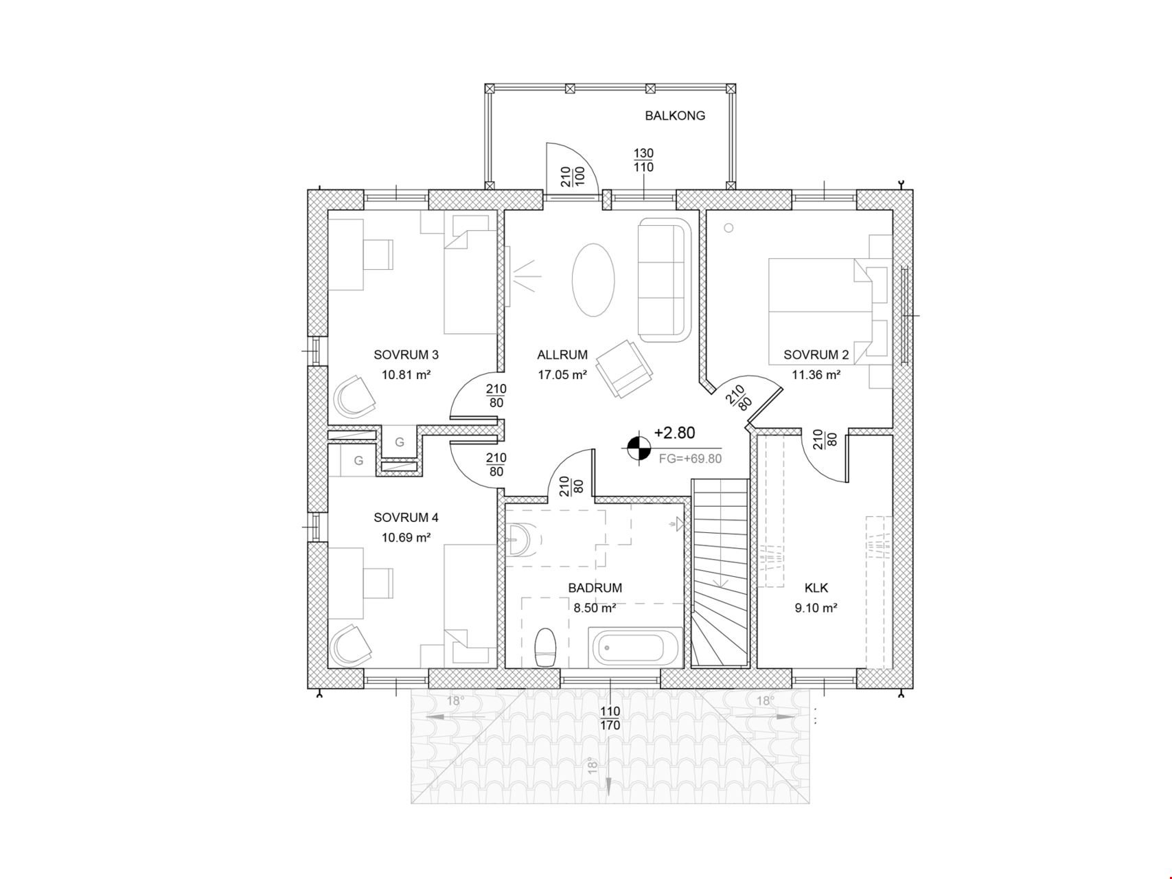
På husets övervåning finner du gott om plats för familjens privata liv i tre trivsamma sovrum. Här finns även ett mysigt allrum med utgång till balkongen, en rejäl klädkammare och ett badrum.

Utvalt och klart

Valen av inredning och utrustning skapar tillsammans en välkomponerad helhet. Köket kommer från HTH och är utrustat med rostfria vitvaror. Här hittar du alla hushållsapparater som du behöver för att laga dina festliga måltider som: inbyggnadsugn, mikro, kyl, frys, spishäll, fläkt, diskmaskin, dämpade fullutdragslådor och mjukstängande luckor. Badrummen bjuder på kakel och klinker, inredning från Vedum, takdusch och duschhörn. I badrummet på övervåningen hittar man dessutom ett badkar.

Fördelar med ett nytt Myresjöhus

Här bor du underhållsfritt i många år framöver, med låg driftskostnad. Du slipper fastighetsavgift i 15 år, och kan få möjlighet till amorteringsfrihet via Nordea. Med oss gör du alltid en trygg bostadsaffär – som OBOS-medlem kan du dessutom få ekonomisk hjälp om försäljningen av ditt nuvarande hem drar ut på tiden.

Hitta hem i natursköna Alster

Att bo i Alster känns som att bo på landet, men på ett lite lagom vis. För du når hela Karlstads utbud på cirka tio minuter i bilen och har både förskola och lekplats på promenadavstånd. Här har du även närhet till Vänern, vilket är en av de stora fördelarna med att bo här. Till Alsters Strandbad cyklar du på 5-10 minuter.

Notera att bilderna är exempelbilder och att avvikelser kan förekomma.

 

Planlösningar

Planlösning 1 av 2

Planlösning 2 av 2

Fler planlösningar

1 av 2

2 av 2

Villa-fakta

  • Antal rum 6 rum och kök
  • Boarea 156 m²
  • Tillhör projekt Kv Alster
Projektdokument

Kontaktpersoner

Mäklare

Mikael Brattström

Hitta hem i Kv Alster 

4
Till salu
7
Sålda
Objekt Adress Pris Tomtarea Boarea Rum och kök Inflyttning
Till salu
Tomt 6 Enebovägen 27 1 350 000 kr 1007 m²
Till salu
Tomt 7 Enebovägen 25 1 350 000 kr 1165 m²
Till salu
Tomt 8 Enebovägen 23 1 350 000 kr 1316 m²
Till salu
Tomt 21 Eneboslingan 26 1 795 000 kr 1461 m²
Såld
Tomt 3 Enebovägen 26A 1126 m²
Såld
Tomt 5 Enebovägen 22 1993 m²
Såld
Villa 18 Eneboslingan 20 1 289 m² 156 m² 6 rum och kök
Såld
Villa 15 Eneboslingan 11C 1 323 m² 156 m² 6 rum och kök
Såld
Villa 14 Eneboslingan 11B 1 227 m² 156 m² 6 rum och kök
Såld
Tomt 23 Eneboslingan 30 1323 m²
Såld
Tomt 20 Eneboslingan 24 1458 m²
Scrolla sidled i tabellen för att se alla kolumner

Flyttklart från Myresjöhus är färdigbyggda hus på noggrant utvalda tomter runt om i landet. Alla hus är färdigställda och från början utrustade med hög kvalitet från ledande leverantörer. Har du bråttom hem?

Till flyttklara hus

För dig som funderar på att bygga hus innebär det en extra trygghet att göra det tillsammans med en finansiellt stark koncern med lång erfarenhet och långsiktigt agerande. Myresjöhus erbjuder just detta. 

Läs mer

Att ett nybyggt hus är ett energisnålt hus är kanske ingen nyhet, speciellt inte jämfört med äldre villor. Men visste du hur mycket det faktiskt kan skilja? 

Titta här

Förmånliga lånevillkor, möjlighet till amorteringsfrihet och en service i särklass. Allt detta kan du som bygger ett Myresjöhus få, eftersom vi är Nyckelpartner till Nordea.

Läs mer