1 / 3

Säljstart vintern 25/26

Villa Kommande

Hus 3 - Kattfotsvägen 5

Kristineberg, Vallentuna

Tillhör projekt

Kv Skogsterrassen
Boarea 187 m²
Tomtarea 536 m²
Pris
8 450 000 kr

Flytta till ett nybyggt Myresjöhus med drömläge i Kristineberg

Drömmer du om det ljuva villalivet? Nu har du möjlighet att bygga ett Myresjöhus på 187 kvm fördelat på 7 rum och kök i populära Kristineberg i Vallentuna!

En traditionell 2-plansvilla i modern tappning

Här har vi har valt ut det bästa huset för just den här platsen – och säljer hus och tomt tillsammans i ett smidigt paket. Men vi vet också hur viktigt det kan vara att få göra sitt nya hem till sitt, därför har du även  möjlighet att själv välja bland annat kök, golv och badrumsinredning. Planlösningen ligger fast, men inredningen är din att sätta prägel på.

I denna 2-plansvilla får du ett hem i modern stil, med sedumtak och stora glaspartier som bjuder in ljuset och tar tillvara på omgivningen. Huset, som både är funktionellt och vackert, smälter in i den omgivande miljön och den vackra entrébalkongen och de stora fönsterpartierna ger gott om ljusinsläpp till husets olika sällskapsytor. Entrévåningen präglas av generösa och flexibla ytor för vardagsrum, kök och matplats, med närhet till groventré och tvätt. Sovrummen hittar du på husets övervåning och där finns även gott om förvaring i form av två generösa klädkammare. På övervåningen finns även ett rymligt badrum och allrum.

Ett område att trivas i 

I Kristineberg har du nära till allt du behöver i vardagen – skolor, förskolor, butiker och goda kommunikationer både in till centrala Vallentuna och vidare till Stockholm. Samtidigt bor du granne med naturen och har skog, sjöar och härliga strövområden bara runt hörnet. Detta är både ett hem och ett område att växa i - oavsett om du är i början av familjelivet eller bara önskar en mer naturnära tillvaro.

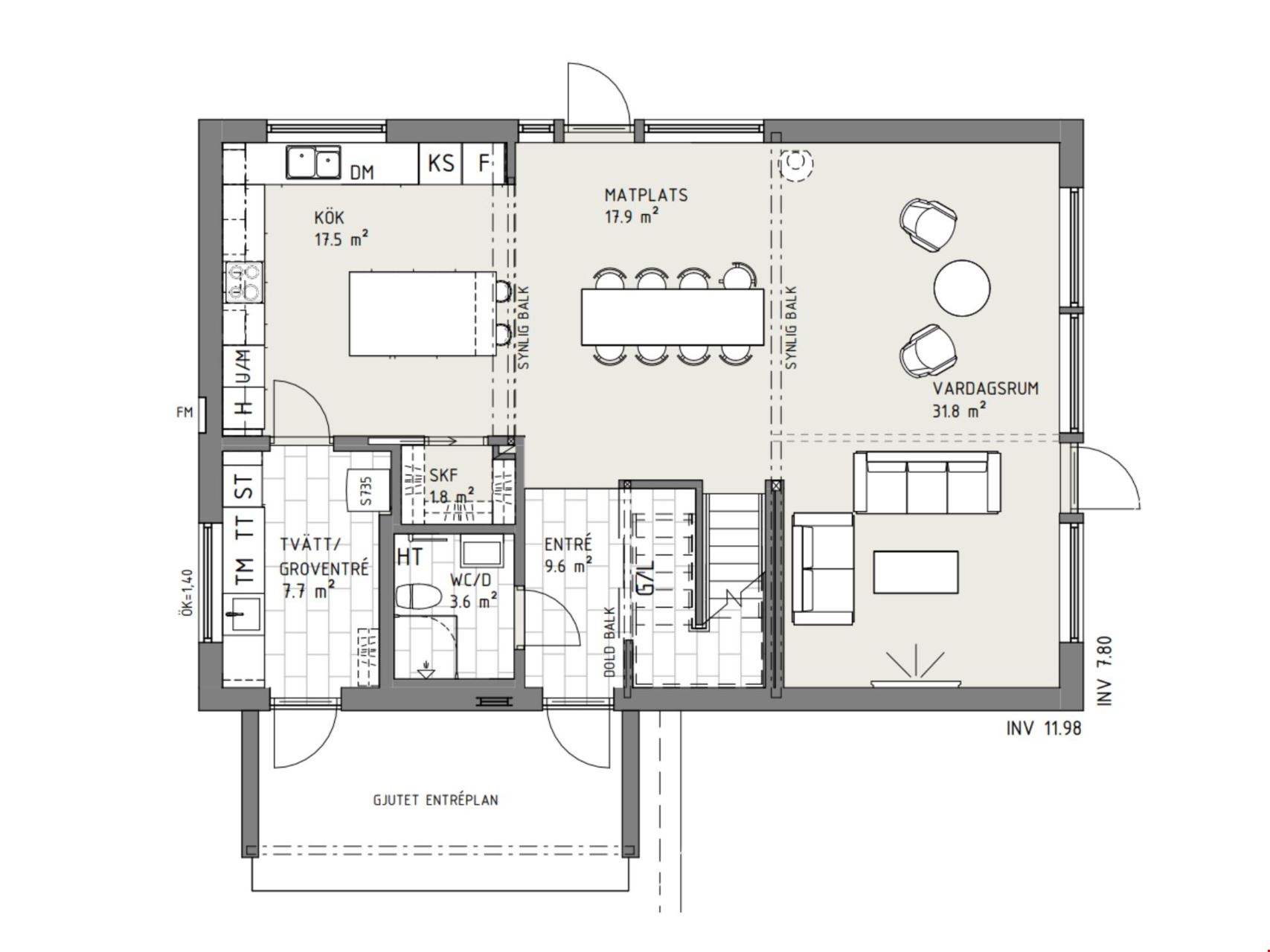
Planlösningar

Entréplan
Övervåning

Planlösning 1 av 2

Entréplan

Planlösning 2 av 2

Övervåning

Fler planlösningar

Entréplan

1 av 2

Entréplan

Övervåning

2 av 2

Övervåning

Villa-fakta

  • Antal rum 7 rum och kök
  • Pris 8 450 000 kr
  • Boarea 187 m²
  • Fastighets­beteckning Vallentuna-Rickeby 1:519
  • Tillhör projekt Kv Skogsterrassen
Lars Johanson Säljare 072-307 02 37 010-434 14 18

Kontakta oss om du är intresserad av att bygga det här huset!

Intressanmälan

Fyll i dina kontaktuppgifter så återkommer vi till dig

Upptäck fler hem

i Kv Skogsterrassen

9
Kommande
Beteckning
Objektstyp
Boarea
Antal rum
Pris
Inflyttning
Status
Objektstyp Villa
Boarea 187 m²
Antal rum 7 rum och kök
Pris 9 000 000 kr
Inflyttning
Status
Kommande
Objektstyp Villa
Boarea 187 m²
Antal rum 7 rum och kök
Pris 9 000 000 kr
Inflyttning
Status
Kommande
Objektstyp Villa
Boarea 187 m²
Antal rum 7 rum och kök
Pris 8 950 000 kr
Inflyttning
Status
Kommande
Objektstyp Villa
Boarea 187 m²
Antal rum 7 rum och kök
Pris 8 750 000 kr
Inflyttning
Status
Kommande
Objektstyp Villa
Boarea 187 m²
Antal rum 7 rum och kök
Pris 8 450 000 kr
Inflyttning
Status
Kommande
Objektstyp Villa
Boarea 187 m²
Antal rum 7 rum och kök
Pris 8 450 000 kr
Inflyttning
Status
Kommande
Objektstyp Villa
Boarea 187 m²
Antal rum 7 rum och kök
Pris 8 450 000 kr
Inflyttning
Status
Kommande
Objektstyp Villa
Boarea 187 m²
Antal rum 7 rum och kök
Pris 8 750 000 kr
Inflyttning
Inflyttningsklart
Status
Kommande
Objektstyp Villa
Boarea 187 m²
Antal rum 7 rum och kök
Pris 8 850 000 kr
Inflyttning
Inflyttningsklart
Status
Kommande
Som OBOS-medlem ökar du dina chanser att lägga vantarna på de mest populära objekten. Alla medlemmar får nämligen förtur i kön – och massor av fina rabatter och erbjudanden.
Läs mer om OBOS medlem
För dig som funderar på att bygga hus innebär det en extra trygghet att göra det tillsammans med en finansiellt stark koncern med lång erfarenhet och långsiktigt agerande. Myresjöhus erbjuder just detta.
Läs mer

Förmånliga lånevillkor, möjlighet till amorteringsfrihet och en service i särklass. Allt det här kan du som bygger ett Myresjöhus få tillsammans med vår Nyckelpartner till Nordea.

Läs mer