1 / 11
Tomt Kommande

Franks gata 2

Grebbestad, Tanum

Tillhör projekt

Kv Solristet
Tomtarea 438 m²
Pris
5 325 100 kr

Hus- och tomtpaket i Grebbestad

Här möts salta vindar och småstadens charm – och kanske just din framtida tomt. Grebbestad är mer än en plats, det är en livsstil. På denna fantastiska plats har du nu möjlighet att förverkliga husdrömmen tillsammans med oss.

Bygg Smart 128 på den här tomten

Här erbjuds ett hus- och tomtpaket i Grebbestad – ett unikt läge mitt i Bohusläns skärgård. Med havet som granne kan både vardag och helg få kännas som semester. Ett husförslag har tagits fram som passar platsen perfekt – men självklart finns möjlighet att välja en annan modell. Pris för enbart tomten: 995 000 kr.

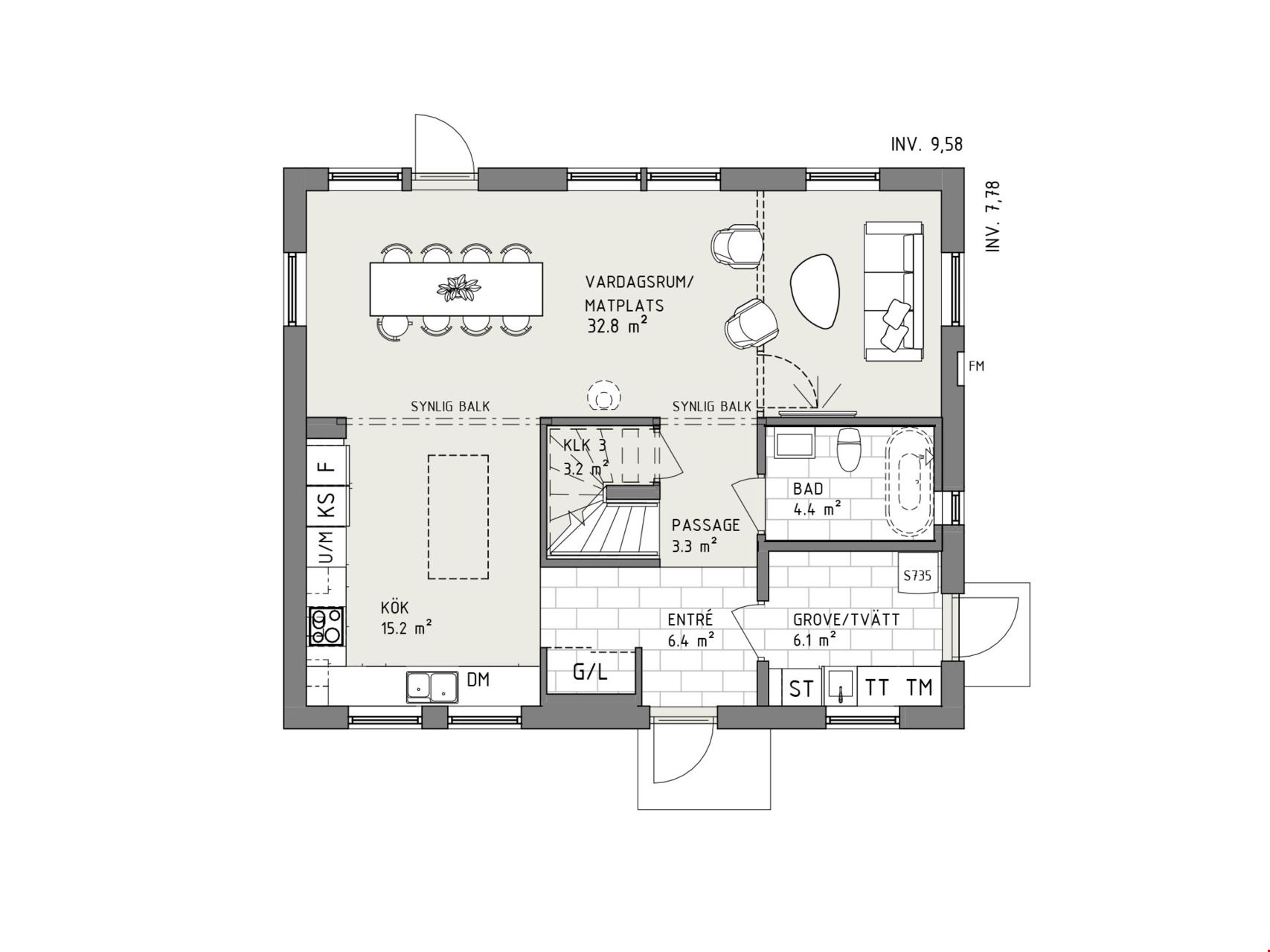
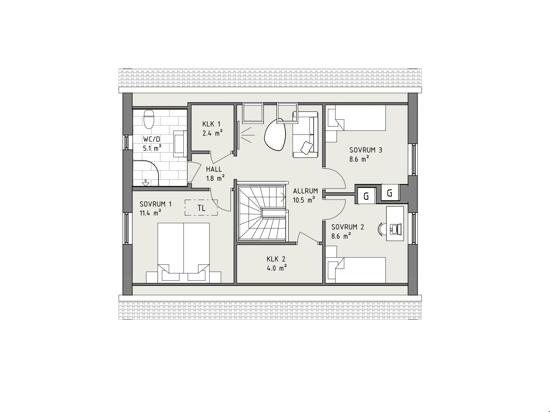
För just denna plats rekommenderar vi vårt smarta enplanshus Smart 128 – ett välplanerat hus med fyra rum och kök, anpassat för både funktion och livskvalitet. Huset erbjuder öppna sociala ytor, tre rymliga sovrum, klädkammare samt en separat tvättstuga med groventré – praktiskt och genomtänkt från början till slut. Med 128 kvadratmeter får du plats för både livet som pågår och det som väntar runt hörnet.

Grebbestad – där vardagen får skärgårdssmak

Att bo i Grebbestad innebär mer än bara en vacker utsikt. Här har du havet, klipporna och naturen precis utanför dörren – och samtidigt nära till allt det praktiska: skolor, butiker och service. Orten bjuder på småstadscharm med genuin skärgårdskänsla – en plats där det är lätt att trivas året runt.

Välkommen att ta första steget mot ett hem med både utsikt och insikt. Hör av dig till vår säljare Helen Hedlund för att få veta mer.

 

Bli OBOS-medlem

När försäljningen startar kan det gå undan. Som OBOS-medlem ökar du dina chanser att lägga vantarna på de mest populära objekten. Alla medlemmar får nämligen förtur i kön – och massor av fina rabatter och erbjudanden.

Läs mer om OBOS medlem
Här finns 1-planshus, 1,5-planshus och 2-planshus, hus med förhöjt väggliv och sluttningshus – i flera olika stilar. Modern, Industriell, Lantlig, Sekelskifte och New England, vilken blir din favorit?
Se våra husmodeller

Planlösningar

Planlösning 1 av 2

Planlösning 2 av 2

Fler planlösningar

1 av 2

2 av 2

Rekommenderade hus

Smart 128

  • 128 m2
  • 5-6 rum och kök
Mer om husmodellen

Tomt-fakta

  • Pris 5 325 100 kr
  • Fastighets­beteckning Grebbestad 2:474
  • Tomtarea 438 m²
  • Tillhör projekt Kv Solristet
Projektdokument

Uppskattad boendekostnad

kr

Intresseanmälan
Kontantinsats

Skriv hur mycket av dina egna pengar som du vill lägga, minst 15 % av beloppet du köper bostaden för.

Bolåneränta per månad

Om du inte anger en egen ränta använder vi Nordeas 3-månaders snittränta. Se representativt exempel med effektiv ränta för ett bolån hos Nordea längre ned på sidan.

Amortering per månad

Lånar du över 70 % ska du betala tillbaka minst 2 % av lånebeloppet varje år. Är lånet på 50–70 % betalar du tillbaka minst 1 %.

Helen Hedlund Säljare 070-825 46 44 010-434 13 42

Kontakta oss om du vill bygga hus med Myresjöhus

Intressanmälan

Fyll i dina kontaktuppgifter så återkommer vi till dig

Upptäck fler hem

i Kv Solristet

3
Kommande
Beteckning
Objektstyp
Tomtarea
Pris
Inflyttning
Status
Beteckning Franks gata 2
Objektstyp Tomt
Tomtarea 438 m²
Pris 5 325 100 kr
Inflyttning
Status
Kommande
Beteckning Franks gata 4
Objektstyp Tomt
Tomtarea 478 m²
Pris 995 000 kr
Inflyttning
Status
Kommande
Beteckning Franks gata 6
Objektstyp Tomt
Tomtarea 430 m²
Pris 995 000 kr
Inflyttning
Status
Kommande

Här finns 1-planshus, 1,5-planshus och 2-planshus, hus med förhöjt väggliv och sluttningshus – i flera olika stilar. Modern, Industriell, Lantlig, Sekelskifte och New England, vilken blir din favorit?

Se våra husmodeller

För dig som funderar på att bygga hus innebär det en extra trygghet att göra det tillsammans med en finansiellt stark koncern med lång erfarenhet och långsiktigt agerande. Myresjöhus erbjuder just detta. 

Läs mer

Att bygga hus med Myresjöhus innebär en trygg och bekväm hemresa – och stora möjligheter att få ditt nya hem precis som du vill ha det. Här berättar vi mer om hur det går till att bygga hus med oss.

Läs mer

Förmånliga lånevillkor, möjlighet till amorteringsfrihet och en service i särklass. Allt det här kan du som bygger ett Myresjöhus få tillsammans med vår Nyckelpartner till Nordea.

Läs mer