1 / 16
Tomt Till salu

Moarna 24D

Tvååker, Varberg

Tomtarea

1032 m²

Pris

1 360 000 kr

Ditt nya hem i natursköna Tvååker

Att bo med naturen runt knuten, kunna cykla till havet och samtidigt ha smidig närhet till Varberg – låter det som en dröm? Nu kan den bli verklighet i Tvååker, där du har chansen att bygga ditt nya hus tillsammans med oss på SmålandsVillan.

En idyll nära både stad och hav 

Tvååker, strax utanför Varberg, bjuder på en perfekt mix av lantlig charm och moderna bekvämligheter. Med cykelavstånd till havet, vackra motionsspår, golfbana och tennisbanor finns det gott om möjligheter för en aktiv livsstil. På orten finns dessutom matbutik, apotek, restauranger, förskolor och skola, samtidigt som både Träslövsläge, Breared och Varberg nås på bara några minuter med bil.

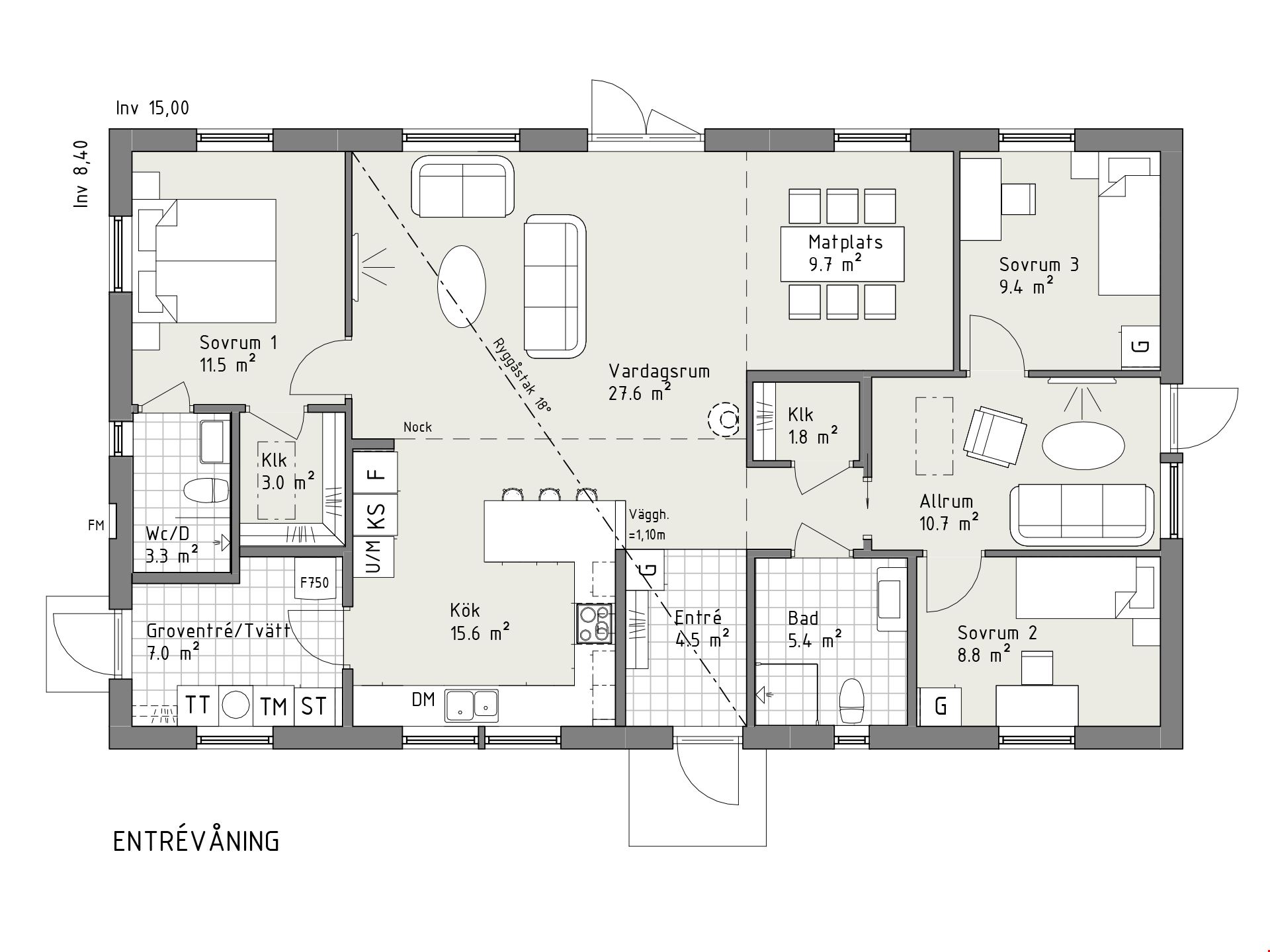
Smart 126 – en perfekt husmodell för tomten 

För denna tomt finns redan ett beviljat bygglov för Smart 126, vilket innebär kortare väg till inflytt och snabbare väg till din husdröm. Den genomtänkta planlösningen erbjuder en stor, öppen umgängesdel i husets mitt, vilket skapar en härlig kontakt mellan entrésidan och trädgården. Barnens avdelning ligger avskilt men nära både badrum och entré, medan föräldrasovrummet är placerat i en lugn del av huset med egen toalett.

Rekommenderade hus

Smart 128

  • 128 m2
  • 5-6 rum och kök
Mer om husmodellen

Smart 140

  • 140 m2
  • 6 rum och kök
Mer om husmodellen

Tomt-fakta

  • Pris 1 360 000 kr
  • Fastighets­beteckning Tvååker 23:19
  • Tomtarea 1032 m²
Projektdokument
Anders Stenborg Säljare 070-601 54 98 070-601 54 98

Intresseanmälan

Få mer information

För dig som funderar på att bygga hus innebär det en extra trygghet att göra det tillsammans med en finansiellt stark koncern med lång erfarenhet och långsiktigt agerande. Myresjöhus erbjuder just detta. 

Läs mer

Här finns 1-planshus, 1,5-planshus och 2-planshus – i flera olika stilar. Modern, Industriell, Lantlig, Sekelskifte och New England, vilken blir din favorit?

Se våra husmodeller

Att bygga hus tar sin tid. Och med tanke på att du har många och viktiga beslut att fatta längs vägen är det faktiskt bra. I vår husbyggarskola går vi igenom hela processen.

Läs mer

Förmånliga lånevillkor, möjlighet till amorteringsfrihet och en service i särklass. Allt det här kan du som bygger ett Myresjöhus få i samarbete med vår Nyckelpartner till Nordea.

Läs mer