1 / 7
Villa Kommande

Pilfinkvägen 10

Brittsbo, Östersund

Tillhör projekt

Kv Pilfinken
Tomtarea 1092 m²

Flytta in i nybyggd villa i Östersund

I Brittsbo, Östersunds nya stadsdel står ett inflyttningsklart Myresjöhus redo för inflytt. Huset har en industriell stil med svarta spröjsade fönster och bjuder på stora sociala ytor, en smart planlösning med avskild föräldradel och ligger i ett barnvänligt villakvarter

Ett smart planerat hem med karaktär

Det här huset har en tydlig industriell karaktär med sina svarta spröjs, stående panel och generösa fönsterpartier som släpper in massor av ljus. Inne möts du av en öppen och inbjudande planlösning där vardagsrum, kök och matplats smälter samman till en naturlig samlingspunkt.

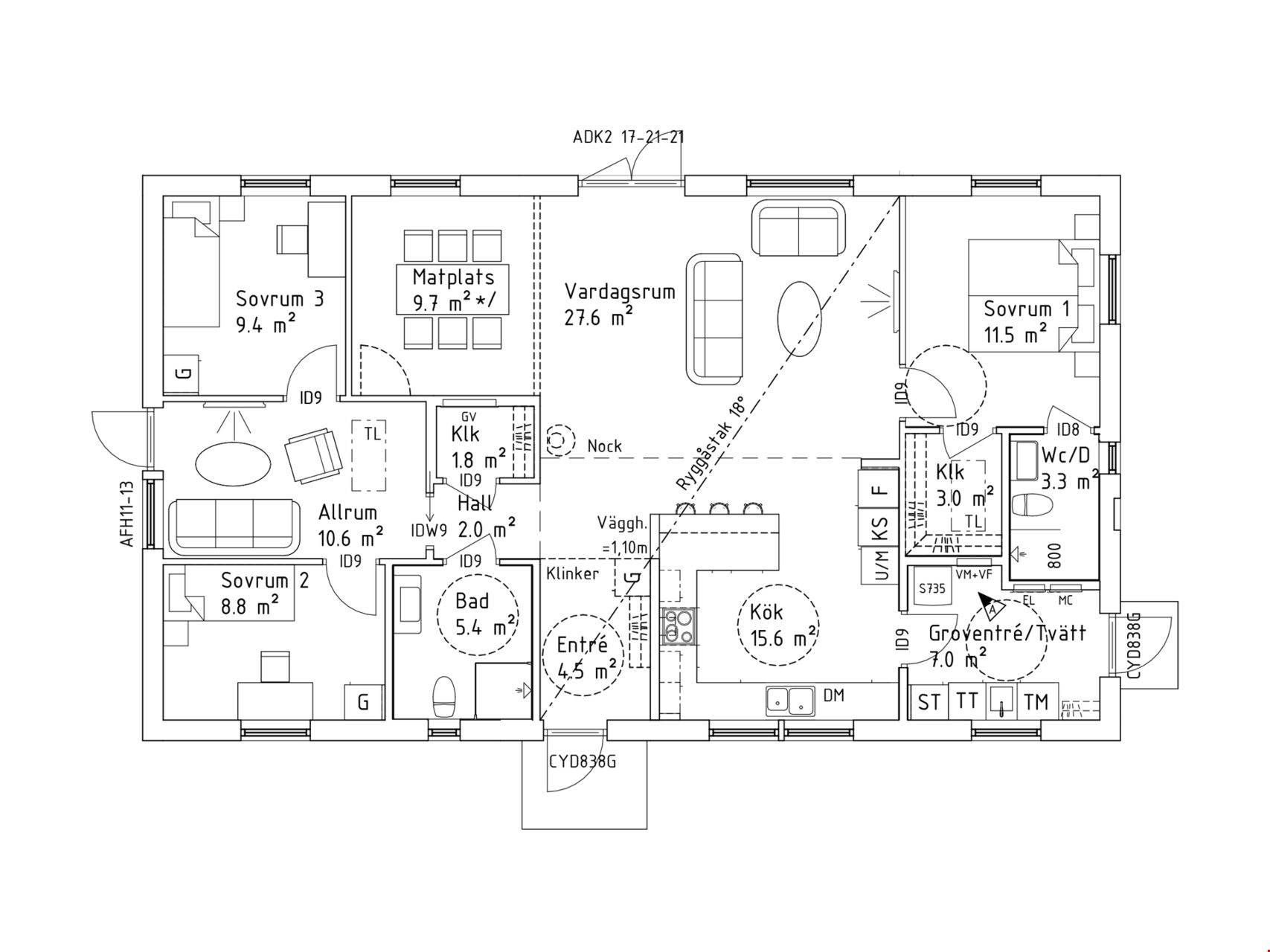
Planlösningen gör vardagen enkel. I ena delen av huset ligger master bedroom med egen walk in closeth och badrum. I den andra delen finns ytterligare två sovrum tillsammans med ett mysigt allrum där lek, läxläsning och filmkvällar får plats. Mellan delarna möts familjen i husets hjärta – de stora sociala ytorna.

Tvättstugan har egen groventré, perfekt för vardagslogistiken. Materialvalen är hållbara och tidlösa, skapade för att stå emot både småbarnsår och framtida renoveringslust.

Dessutom finns ett färdigt bygglov för garage – redo att förverkligas när du vill komplettera ditt nya hem med extra förvaring eller plats för bilen.

Trygghet i varje steg

Här bor du underhållsfritt i många år framöver, med låg driftskostnad. Du slipper fastighetsavgift i 15 år, och kan få möjlighet till amorteringsfrihet via Nordea. Med oss gör du alltid en trygg bostadsaffär – som OBOS-medlem kan du dessutom få ekonomisk hjälp om försäljningen av ditt nuvarande hem drar ut på tiden.

Välkommen till familjevänliga Brittsbo

I den västligaste delen av Östersunds kommun, granne med Sånghusvallen och Krokom, växer Brittsbo fram – en ny och levande stadsdel där villalivet står i centrum. Här har många barnfamiljer redan hittat hem, lockade av närheten till både naturen och staden.

Bara en dryg kilometer bort ligger Lugnvik, där du hittar det mesta du behöver i vardagen: ICA Nära, bensinstation med livsmedels- och postservice, frisörer, pizzeria, lunchställen, hälsocentral, fritidsgård och kyrka. Här finns också förskola och skolorna Lugnviksskolan (F–9) och Sjöängsskolan (F–5) – perfekt för familjer med barn i olika åldrar.

En stor del av charmen med Brittsbo är läget. Du har nära till Storsjön för ett svalkande dopp, och lika nära till stadens utbud.

Planlösning

Villa-fakta

  • Fastighets­beteckning Graniten 25
  • Tillhör projekt Kv Pilfinken
Projektdokument
Marie Jarl Säljare 070-600 93 71 010-434 14 56

Kontakta oss om du vill köpa det här huset

Intressanmälan

Fyll i dina kontaktuppgifter så återkommer vi till dig.

Upptäck fler hem

i Kv Pilfinken

1
Kommande
2
Sålda
Beteckning
Objektstyp
Tomtarea
Boarea
Antal rum
Pris
Inflyttning
Status
Beteckning Pilfinkvägen 10
Objektstyp Villa
Tomtarea 1092 m²
Boarea
Antal rum
Pris
Inflyttning
Status
Kommande
Beteckning Gråsparvvägen 9
Objektstyp Tomt
Tomtarea 1192 m²
Boarea
Antal rum
Pris
Inflyttning
Status
Såld
Beteckning Pilfinkvägen 15
Objektstyp Tomt
Tomtarea 1067 m²
Boarea
Antal rum
Pris
Inflyttning
Status
Såld
Förmånliga lånevillkor, möjlighet till amorteringsfrihet och en service i särklass. Allt det här kan du som köper ett Myresjöhus få tillsammans med vår Nyckelpartner Nordea.
Läs mer
Med Myresjöhus får du ett hus byggt med omtanke, kvalitet och trygghet i ryggen. Vi har stått stadigt sedan 1927 – och vi finns kvar när du flyttar in.
Läs mer
Att ett nybyggt hus är ett energisnålt hus är kanske ingen nyhet, speciellt inte jämfört med äldre villor. Men visste du hur mycket det faktiskt kan skilja?
Titta här