1 / 25
Villa Såld
Inflyttningsklart  

Hövändarvägen 15

Nösnäs, Stenungsund

Boarea

149 m²

Tomtarea

801 m²

Flytta till nybyggt hus med solceller i Nösnäs

Nu kan du köpa ett inflyttningsklart sluttningshus med härlig utsikt över havet i Strandnorum i Stenungsund. Här bor du underhållsfritt i många år framöver, med låg driftskostnad. Du slipper fastighetsavgift i 15 år, och kan få möjlighet till amorteringsfrihet via Nordea. Med oss gör du alltid en trygg bostadsaffär – som OBOS-medlem kan du dessutom få ekonomisk hjälp om försäljningen av ditt nuvarande hem drar ut på tiden.

Välkommen in i denna nyproducerade villa om 149 kvm med 7 rum och kök. Huset har en klassisk stil med spröjsade fönster och liggande vit panel och hämtar sin inspiration ifrån sommarhusen på den amerikanska östkusten. Huset är utrustat med 10 solcellspaneler så att du ska kunna producera din egen el.  

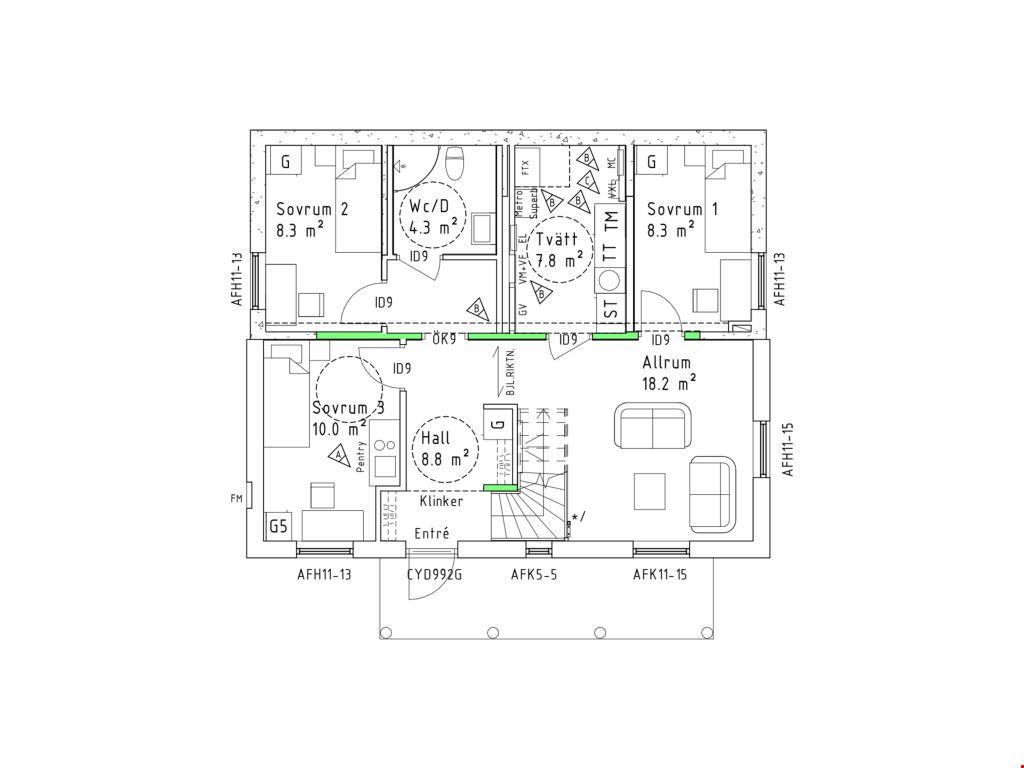
Entrén finns på det nedre våningsplanet. Här hittar du 3 av husets totalt 5 sovrum. Entrévåning är den perfekta ungdomsavdelning då det finns både ett pentry och ett mindre allrum. Här hittar du också en rymlig tvättstuga och ett litet badrum. Badrummet är inrett med kakel och klinker, duschhörn, takdusch samt kommod.   

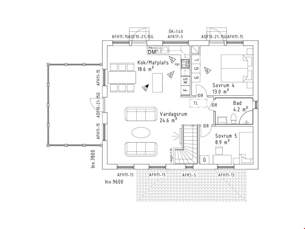
När vi tar trappan upp till det övre våningsplanet så kommer du till husets hjärta. Här är kök och vardagsrum placerade i ett öppet stråk för att ta vara på utsikten. Ljusinsläppet här inne är fantastiskt tack vare fönster i tre olika väderstreck. Från vardagsrummet tar du dig ut på den stora balkongen med soligt söderläge. Köket kommer från HTH och har en klassisk, tidlös stil. (Klicka här för att se ritningarna på köket). På det här våningsplanet hittar du också husets master bedroom som bjuder på gott om förvaring, ett mindre sovrum och badrum. Badrummet är inrett med kakel och klinker, duschhörn, takdusch och kommod.

Till huset hör även ett isolerat garage.

Flytta till Nösnäs i Stenungsund 

Vackra Nösnäs ligger strax utanför Stenungsund. Med härlig, avkopplande natur inpå knuten, samt goda kommunikationer finns här alla förutsättningar för att trivas bra. Segling, båtliv och morgondopp är en del av vardagen i Nösnäs då havet ligger bara en kort cykeltur bort. Skogar och blåbärsris väntar den som ger sig ut på promenad i området och Svartedalen, ett av Sveriges allra största orörda naturområden, ligger inom bekvämt räckhåll.

Området Strandnorum har snabbt blivit uppskattat av människor i alla åldrar som vill bo på västkusten. Här finns både väl sammanhållna villakvarter och nybyggda bostadsrätter i ett tryggt och välkomnande bostadsområde.

Är du intresserad av det här huset?    

Huset säljs i samarbete med Fastighetsbyrån. Läs mer på fastighetsbyran.se eller kontakta mäklare Mikael Johansson om du är intresserad av att köpa det här huset. 

Notera att bilderna är exempelbilder och att avvikelser därför kan förekomma.

 

Planlösningar

Planlösning 1 av 3

Planlösning 2 av 3

Planlösning 3 av 3

Fler planlösningar

1 av 3

2 av 3

3 av 3

Villa-fakta

  • Antal rum 7 rum och kök
  • Boarea 149 m²

Kontaktpersoner

Mäklare

Mikael Johansson

För dig som funderar på att bygga hus innebär det en extra trygghet att göra det tillsammans med en finansiellt stark koncern med lång erfarenhet och långsiktigt agerande. Myresjöhus erbjuder just detta. 

Läs mer
Ett hus byggt i trä är verkligen en svensk klassiker, på sätt och vis synonymt med husdrömmen. Men vilka är egentligen fördelarna med dagens moderna trähus?
Läs mer

Förmånliga lånevillkor, möjlighet till amorteringsfrihet och en service i särklass. Allt detta kan du som bygger ett Myresjöhus få, eftersom vi är Nyckelpartner till Nordea.

Läs mer