1 / 14
Inflyttningsklart
Villa Såld

Hus 3 - Kalmarsundsgatan 46

Ekerum, Borgholm

Tillhör projekt

Kalmarsundsgatan
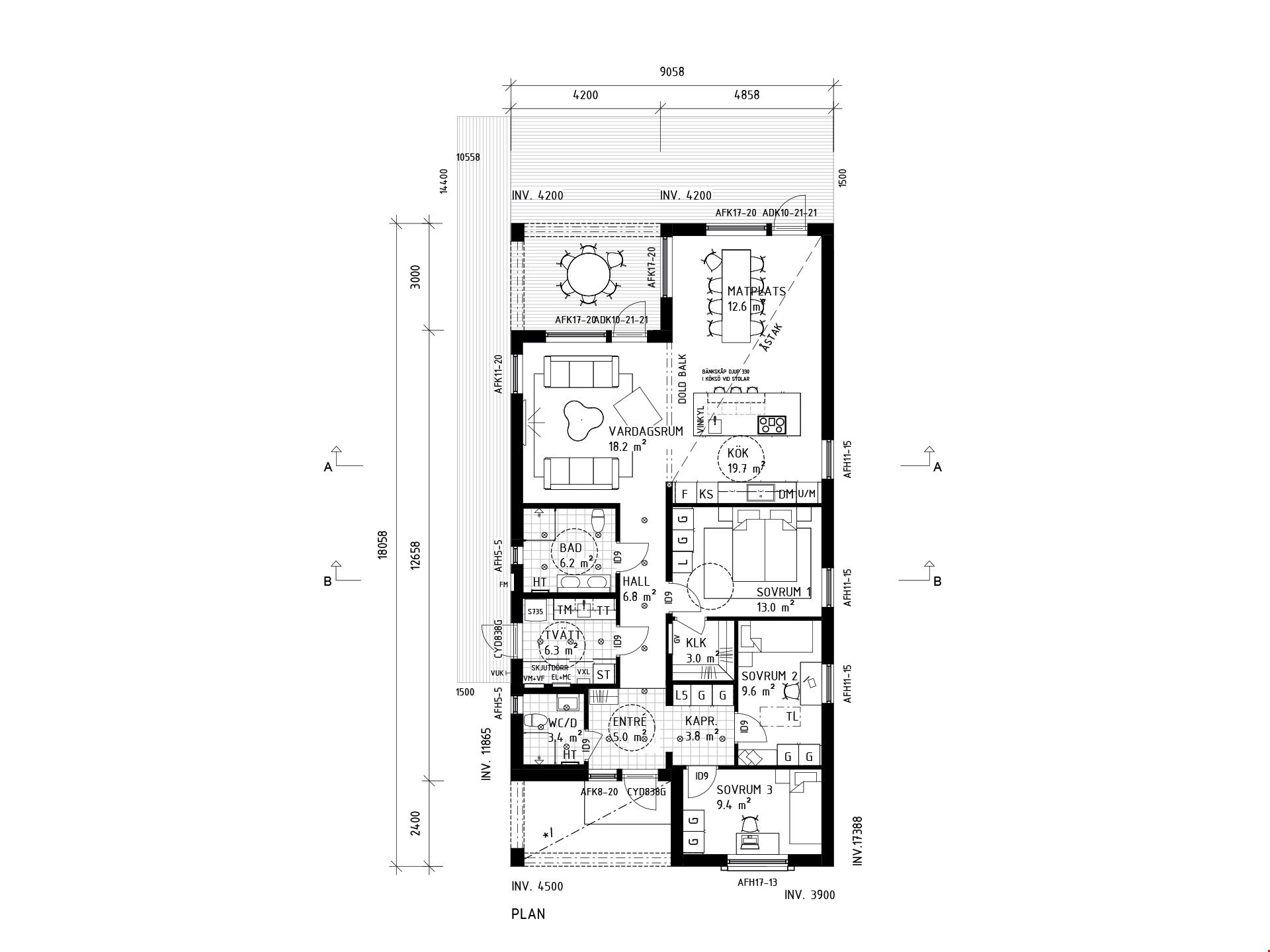
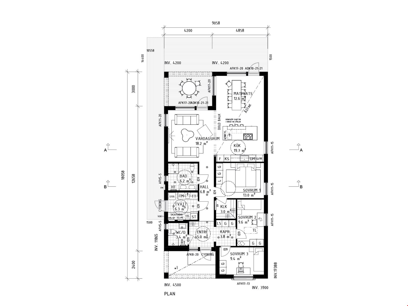
Boarea 122 m²
Tomtarea 650 m²

Flytta till ett nybyggt hus från Myresjöhus i Ekerum på Öland

Drömmer du om ett havsnära semesterhem eller ett året-runt-boende? I Ekerum på Ölands västra kust, med smidig pendling till Borgholm och Kalmar, bygger Myresjöhus friliggande villor intill den populära golfbanan. Nu har du chansen att bli den första att flytta in i en av dessa stilfulla 1-planshus med 4 rum och kök.

Nära till havet, naturen och fastlandet  

Att leva nära naturen är enkelt på Öland, särskilt här i Ekerum. Området där vi bygger husen ligger bara ett stenkast från den populära golfbanan. Och förutom härliga golfrundor har du nära också till tennis- och padelbanor, ett dopp i havet och fina löp- och mountainbikespår genom det öländska landskapet. Efter en aktiv dag kan du unna dig en avkopplande stund på Ekerum Resort, där du kan njuta av god mat och dryck till en fantastisk utsikt. Vill du in till fastlandet tar bilfärden till Kalmar knappt en halvtimme.  

Ett 1-planshus med många funktioner på välplanerad yta

Detta är ett elegant enplanshus med generöst ljusinsläpp och en planlösning som verkligen låter dig ta vara på ytan. Med tre sovrum passar huset både för den mindre barnfamiljen som yngre eller äldre par. 

Öppna ytor som bjuder in till vardag och fest 

Både köket och vardagsrummet är smart planerade, vilket skapar ett härligt flöde mellan de två rummen som ligger i vinkel. Den stora, sociala köksön blir en naturlig samlingspunkt som knyter samman köket med matplatsen – perfekt för både vardagsmiddagar och festliga mingel. Här måste vi också nämna den ljuvliga, indragna uteplatsen som väntar utanför vardagsrummet.

Utrymme för avkoppling och det praktiska 

Husets tre sovrum ligger lite vid sidan av händelsernas centrum. Får ni ett sovrum över passar det lika bra som gästrum, hemmakontor, eller varför inte ditt eget sy- eller pysselrum? Naturligtvis bjuder också huset på praktiska fördelar i form av badrum, extra toalett med dusch och tvättstuga med groventré.

Möjlighet att välja till carport

Är du med i ett tidigt skede har du möjlighet att göra några utvalda tillval – och välja till en carport. 

Här får du:

  • Fantastiska sällskapsytor
  • Kök med möjlighet att välja luckor
  • Tre sovrum
  • Två badrum
  • Groventré kombinerad med tvättstuga, utrustad med tvättmaskin och torktumlare
  • Klädkammare
  • Härlig terrass
  • Förråd och parkering på uppfarten

    Notera att bilderna är exempelbilder och att avvikelser kan förekomma. Vi förbehåller oss rätten att justera priser under pågående försäljning.

Planlösning

Villa-fakta

  • Antal rum 4 rum och kök
  • Säljstart Våren 2025
  • Boarea 122 m²
  • Inflyttning från maj 2026
  • Tillhör projekt Kalmarsundsgatan

Kontaktpersoner

Säljare

Mikael Wallenberg

Hitta hem i Kalmarsundsgatan 

Objekt Adress Pris Boarea Rum och kök Inflyttning
Till salu
Villa 9 Kalmarsundsgatan 34 Från 6.195.000 kr 122 m² 4 rum och kök
Till salu
Villa 8 Kalmarsundsgatan 36 Från 6.195.000 kr 122 m² 4 rum och kök
Såld
Villa 10 Kalmarsundsgatan 32 122 m² 4 rum och kök
Såld
Villa 7 Kalmarsundsgatan 38 122 m² 4 rum och kök
Såld
Villa 6 Kalmarsundsgatan 40 122 m² 4 rum och kök
Såld
Villa 5 Kalmarsundsgatan 42 122 m² 4 rum och kök
Såld
Villa 4 Kalmarsundsgatan 44 122 m² 4 rum och kök
Såld
Villa 3 Kalmarsundsgatan 46 122 m² 4 rum och kök
Såld
Villa 2 Kalmarsundsgatan 48 122 m² 4 rum och kök
Såld
Villa 1 Kalmarsundsgatan 50 122 m² 4 rum och kök
Scrolla sidled i tabellen för att se alla kolumner
För dig som funderar på att bygga hus innebär det en extra trygghet att göra det tillsammans med en finansiellt stark koncern med lång erfarenhet och långsiktigt agerande. Myresjöhus erbjuder just detta.
Läs mer
Förmånliga lånevillkor, möjlighet till amorteringsfrihet och en service i särklass. Allt det här kan du som bygger ett Myresjöhus få tillsammans med vår Nyckelpartner till Nordea.
Läs mer
Boendeformer finns det gott om. Du kan till exempel hyra en lägenhet, äga en bostadsrätt eller själv äga hela ditt hem – till exempel ditt eget Myresjöhus. Är du ny på det här med att äga hus?
Läs mer
Här väntar en smidig husresa där vi tar hand om allt från val av husmodell till finansiering under byggtiden. Du betalar en handpenning när du skriver avtal – och resten vid tillträde.
Läs mer