Tillhör projekt
Kv SolterrassenNu har du chansen att bli ägare till ett nybyggt Myresjöhus med solceller i Södra Gunsta. Här bor du underhållsfritt i många år framöver, med låg driftskostnad. Du slipper fastighetsavgift i 15 år, och kan få möjlighet till amorteringsfrihet via Nordea. Med oss gör du alltid en trygg bostadsaffär – som OBOS-medlem kan du dessutom få ekonomisk hjälp om försäljningen av ditt nuvarande hem drar ut på tiden.
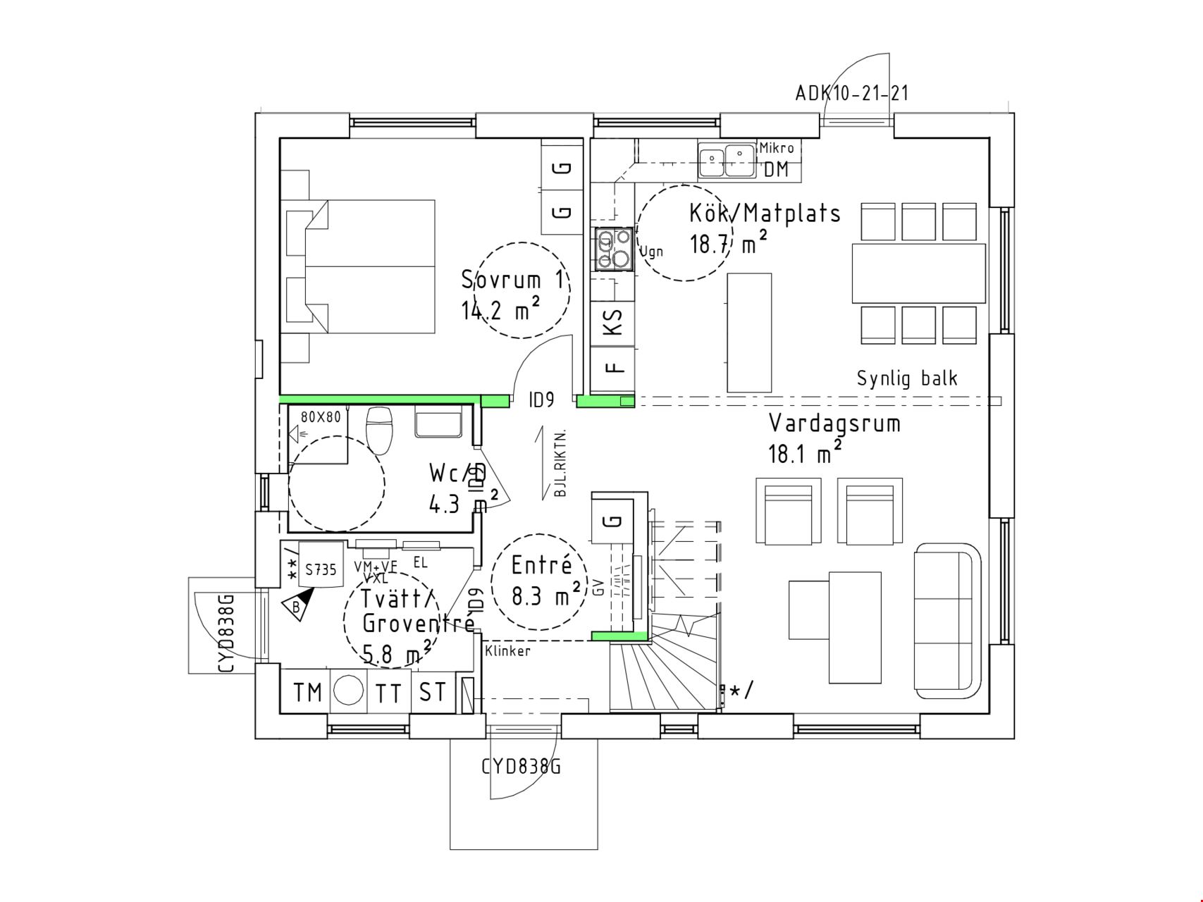
Välkommen in i denna nyproducerade villa om 150 kvadratmeter med 6 rum och kök. Smart 150 som husmodellen heter är ett av våra mest sålda och omtyckta hus. Planlösningen är modern med kök och vardagsrum i öppet samband på entréplan. Det stora föräldrasovrummet ligger på samma plan som sällskapsytorna, med ytterligare fyra generösa sovrum på övervåningen. En trappa upp hittar du även ett litet allrum, badrum och klädkammare. Hallen är rymlig med klinkat golv och direkt innanför groventrén finns tvättstuga med tvättmaskin samt torktumlare.
Köket kommer vara utrustad med en hög standard och inrett med en köksö. Luckorna är vita med diskreta rostfria handtag, bänkskivan är i svart laminat och vitvarorna svarta. I köket hittar du alla hushållsapparater som du behöver för att laga dina festliga måltider som: inbyggnadsugn, mikro, kyl, frys, spishäll, fläkt, diskmaskin, dämpade fullutdragslådor och mjukstängande luckor. Klicka här för att se ritningarna på köket. Badrummen är inredda med kakel och klinker, duschhörn med takdusch samt skogsgröna kommoder.
Huset är utrustat med 10 solpaneler från Nibe så att du ska kunna producera din egen el. Det innebär att man blir betydligt mindre sårbar för stigande elpriser. På sommarhalvåret kan solcellerna i många fall täcka hela behovet av hushållsel. Eventuellt överskott kan man dessutom smidigt sälja tillbaka till elbolaget.
Södra Gunsta är känt för sin närhet till skog och vatten och populära rekreationsområden som Fjällnoraområdet, sjön Trehörningen och Vedyxaskogen som alla är välbesökta av uppsalaborna. Båt, bad samt fiskemöjligher finns vid både Fjällnorabadet, Funbosjön och Länna. Vid Fjällnora kan man även hyra kanot och båt och njuta av välplogade skridskobanor vintertid.
I dag finns det tre förskolor i området samt grundskola i närliggande Funbo som är från förskoleklass till årskurs tre. Området har bra kommunikationer och kollektivtrafiken trafikerar sträckan mot både Uppsala och Almunge. För den som föredrar att cykla finns det en modern cykelväg längsmed vägen. Under sommarsäsongen går också museijärnvägen Lennakatten från Uppsala förbi Gunsta och ända till Faringe.
Observera att bilderna är illustrationer som ska ses som vägledande. Avvikelser kan därför förekomma.
 
             
                