1 / 16
Villa Till salu

Hus 2 - Golfbanevägen 13

Saxnäs, Färjestaden

Tillhör projekt

Kv Strandslingan
Boarea 140 m2
Tomtarea 766 m²
Pris
Utgångspris 4 950 000 kr

Hitta hem i Saxnäs

Tänk dig att komma hem till ett hus där allt är nytt, välplanerat och färdigt för inflytt. Ett hem där lugnet från naturen möter modern funktion och tidlös design. I vackra Saxnäs på Öland växer nu ett Smart 140 fram – ett nybyggt Myresjöhus för dig som söker kvalitet, harmoni och en trygg husresa. Huset är snart klart för inflyttning..

Välplanerat för livet

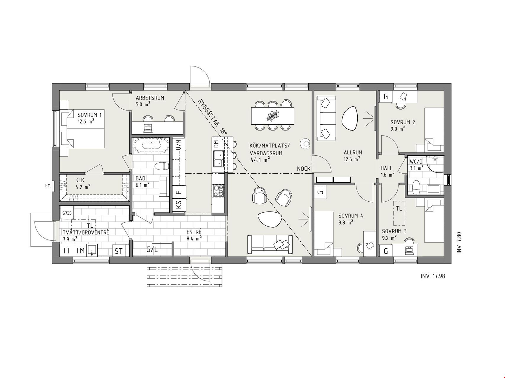
Smart 140 är ett genomtänkt enplanshus där varje kvadratmeter är optimerad för funktion och trivsel. Här välkomnas du av en rymlig entré med vacker siktlinje genom hela huset. Det öppna vardagsrummet och köket skapar en naturlig samlingspunkt med stora fönster som släpper in rikligt med ljus – och bjuder på utsikt över det öländska landskapet.

Köket kommer från HTH i modellen Stockholm i mockafärg, med matchande bänkskiva och stänkpanel i Delaware Stone – ett varmt, stilrent val som ger köket en hemtrevlig känsla.

Rum för fler – och mer

Med fyra rymliga sovrum, två badrum, ett extra allrum och ett flexibelt hemmakontor finns plats för hela familjen. Föräldrasovrummet är avskilt med egen walk-in-closet och privat ingång till badrum – för en vardag med hotellkänsla. Den separata barn- eller ungdomsavdelningen erbjuder tre sovrum, eget allrum och badrum.

Groventré och välplanerade förvaringslösningar gör vardagen smidigare – oavsett livsstil eller familjestorlek.

Naturnära och nära till allt

I Saxnäs har du nära till att njuta av den öländska naturen, svalkande bad, promenader i de vackra omgivningarna och golfrundor med fantastiska vyer. Här har du omkring 5 km ner till Färjestaden och Ölandsbron. Därifrån tar du dig vidare in till Kalmar på en kvart.

Notera att bilderna är exempelbilder och att avvikelser kan förekomma.

 

Planlösning

Villa-fakta

  • Antal rum 6 rum och kök
  • Pris Utgångspris 4 950 000 kr
  • Boarea 140 m2
  • Fastighets­beteckning Saxnäs 1:424
  • Tillhör projekt Kv Strandslingan
Mikael Wallenberg Säljare 070-601 57 55 010-434 12 34

Kontakta oss om du vill bygga hus med Myresjöhus

Intressanmälan

Fyll i dina kontaktuppgifter så återkommer vi till dig

Upptäck fler hem

i Kv Strandslingan

3
Till salu
1
Reserverade
5
Sålda
Beteckning
Objektstyp
Tomtarea
Boarea
Antal rum
Pris
Inflyttning
Status
Objektstyp Tomt
Tomtarea 822 m²
Boarea
Antal rum
Pris 895 000 kr
Inflyttning
Status
Till salu
Objektstyp Villa
Tomtarea 741 m²
Boarea 140 m2
Antal rum 6 rum och kök
Pris Utgångspris 4 950 000 kr
Inflyttning
Status
Till salu
Objektstyp Villa
Tomtarea 766 m²
Boarea 140 m2
Antal rum 6 rum och kök
Pris Utgångspris 4 950 000 kr
Inflyttning
Status
Till salu
Objektstyp Tomt
Tomtarea 932 m²
Boarea
Antal rum
Pris 995 000 kr
Inflyttning
Status
Reserverad
Beteckning Tomt 8
Objektstyp Tomt
Tomtarea 1044 m²
Boarea
Antal rum
Pris
Inflyttning
Status
Såld
Beteckning Tomt 7
Objektstyp Tomt
Tomtarea 1332 m²
Boarea
Antal rum
Pris
Inflyttning
Status
Såld
Beteckning Tomt 6
Objektstyp Tomt
Tomtarea 966 m²
Boarea
Antal rum
Pris
Inflyttning
Status
Såld
Objektstyp Tomt
Tomtarea 962 m²
Boarea
Antal rum
Pris
Inflyttning
Status
Såld
Objektstyp Tomt
Tomtarea 846 m²
Boarea
Antal rum 6-7 rum och kök
Pris
Inflyttning
Status
Såld
För dig som funderar på att bygga hus innebär det en extra trygghet att göra det tillsammans med en finansiellt stark koncern med lång erfarenhet och långsiktigt agerande. Myresjöhus erbjuder just detta.
Läs mer
Ett hus byggt i trä är verkligen en svensk klassiker, på sätt och vis synonymt med husdrömmen. Men vilka är egentligen fördelarna med dagens moderna trähus?
Läs mer

Förmånliga lånevillkor, möjlighet till amorteringsfrihet och en service i särklass. Allt det här kan du som bygger ett Myresjöhus få i samarbete med vår Nyckelpartner till Nordea.

Läs mer

I Saxnäs har du nära till att njuta av den öländska naturen. Svalkande bad, promenader i de vackra omgivningarna och golfrundor med fantastiska vyer. Till Kalmar tar du dig på knappa 20 minuter.

Läs mer om området