1 / 43
Inflyttningsklart
Villa Till salu

Hus 18 - Älvringen 3

Sigtuna Stadsängar

Tillhör projekt

Kv Stadsängshöjden
Boarea 186 m²
Tomtarea 610 m²
Pris
8 695 000 kr Tidigare pris: 8 800 000 kr

Stort och luftigt 2-planshus: flytta in hösten 2025

I ett riktigt fint läge uppe på en höjd i populära Sigtuna Stadsängar kan du förverkliga din hemlängtan direkt. Upptäck ett utsökt tvåplanshus om 186 kvm med fyra sovrum. Inspirerat av vår husfavorit Stångskär men anpassat efter just den här platsen.

Härligt villaliv i modern stil

Här erbjuder vi en tvåplansvilla om hela 186 kvadratmeter med ett luftigt och modernt uttryck, inspirerat av vår husfavorit Stångskär men anpassat efter just den här platsen. Huset välkomnar dig med en ljus entré som bjuder in till en väl tilltagen social yta där kök och vardagsrum samspelar perfekt. Från köket når du även klädvårdsutrymmet med praktisk groventré. På övervåningen väntar en privat oas med fyra rymliga sovrum, ett generöst allrum och ett stort badrum. Master bedroom har två walk-in-closet och fransk balkong. Behöver ni ett femte sovrum? Då kan vardagsrummet delas av för att skapa ett sådant.

Snabb inflyttning

Huset är redan på plats och står färdigt för inflyttning. Vi har noggrant valt ut smakfulla material och funktionella lösningar för att du ska känna dig hemma från dag ett. 

Charmiga Sigtuna har mycket att erbjuda

Här flyttar du bokstavligt talat in på ett toppenläge i Sigtuna Stadsängar, som siktar på att bli Sveriges mest hållbara stadsdel. Små trevliga kvarter, fint planterade parker och varierad bebyggelse – men också gott om service för en fungerande vardag. Du har nära till svalkande dopp i Mälaren, Sigtunas charmiga stadskärna och stora vackra skogsområden runt knuten.

Tryggt köp med låga driftkostnader

Fördelarna med ett nybyggt Myresjöhus är många. Här bor du med låg driftskostnad, nästan underhållsfritt de första 10 åren. Du betalar ingen fastighetsavgift i 15 år och får möjlighet till amorteringsfritt i upp till 5 år hos Nordea. Blir du OBOS-medlem får du även möjlighet till extra ekonomisk trygghet ifall din nuvarande bostad inte blir såld i tid.

Har du funderingar? Kontakta vår säljare så får du svar på dina frågor.

Notera att bilderna är exempelbilder och att avvikelser kan förekomma.

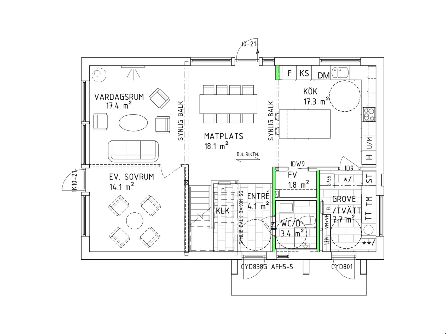
Planlösningar

Entréplan
Övervåning

Planlösning 1 av 2

Entréplan

Planlösning 2 av 2

Övervåning

Fler planlösningar

Entréplan

1 av 2

Entréplan

Övervåning

2 av 2

Övervåning

Villa-fakta

  • Antal rum 6-7 rum och kök
  • Pris 8 695 000 kr 8 800 000 kr
  • Boarea 186 m²
  • Fastighets­beteckning Älvan 26
  • Tillhör projekt Kv Stadsängshöjden

Kontaktpersoner

Henrik Nyberg

Säljare

Lars Johanson

Säljare

Upptäck fler hem

i Kv Stadsängshöjden

5
Till salu
2
Reserverade
3
Sålda
1
Ej till salu
Beteckning
Objektstyp
Boarea
Antal rum
Pris
Inflyttning
Status
Objektstyp Villa
Boarea 186 m²
Antal rum 6-7 rum och kök
Pris 8 150 000 kr
Inflyttning
Status
Till salu
Objektstyp Villa
Boarea 186 m²
Antal rum 6-7 rum och kök
Pris 8 695 000 kr
Inflyttning
Inflyttningsklart
Status
Till salu
Objektstyp Villa
Boarea 186 m²
Antal rum 6-7 rum och kök
Pris 8 400 000 kr
Inflyttning
Status
Till salu
Objektstyp Villa
Boarea 186 m²
Antal rum 6-7 rum och kök
Pris 8 400 000 kr
Inflyttning
Status
Till salu
Objektstyp Villa
Boarea 186 m²
Antal rum 6-7 rum och kök
Pris 8 995 000 kr
Inflyttning
Inflyttningsklart
Status
Till salu
Objektstyp Villa
Boarea 186 m²
Antal rum 6-7 rum och kök
Pris 8 400 000 kr
Inflyttning
Status
Reserverad
Objektstyp Villa
Boarea 144 m²
Antal rum 5-6 rum och kök
Pris 7 995 000 kr
Inflyttning
Inflyttningsklart
Status
Reserverad
Objektstyp Villa
Boarea 186 m²
Antal rum 6-7 rum och kök
Pris
Inflyttning
Status
Såld
Objektstyp Villa
Boarea 144 m²
Antal rum 5-6 rum och kök
Pris
Inflyttning
Status
Såld
Objektstyp Villa
Boarea 186 m²
Antal rum 6-7 rum och kök
Pris
Inflyttning
Status
Såld
Objektstyp Villa
Boarea 144 m²
Antal rum 5-6 rum och kök
Pris 8 195 000 kr
Inflyttning
Inflyttningsklart
Status
Ej till salu
Att välja ett inflyttningsklart hus är ett enkelt sätt att komma hem snabbare, utan att tumma på kvalitet eller garantier. Och är du OBOS-medlem får du ännu mer att luta dig mot.
Upptäck tryggheten
Att ett nybyggt hus är ett energisnålt hus är kanske ingen nyhet, speciellt inte jämfört med äldre villor. Men visste du hur mycket det faktiskt kan skilja?
Titta här

Förmånliga lånevillkor, möjlighet till amorteringsfrihet och en service i särklass. Allt detta kan du som köper ett Myresjöhus få via vår partner Nordea.

Läs mer

Sigtuna är Sveriges äldsta stad och historien har varit viktig vid planeringen av Sigtuna stadsängar. Stadsdelen siktar på att bli Sveriges mest hållbara och kännetecknas av små trevliga kvarter, fint planterade parker och varierad bebyggelse.

Läs mer