1 / 3
Inflyttningsklart
Villa Till salu

Hus 3 - Älvringen 20

Sigtuna Stadsängar

Tillhör projekt

Kv Stadsängshöjden
Boarea 144 m²
Tomtarea 650 m²
Pris
7 995 000 kr

Välplanerad, nybyggd familjevilla: redo för dig nu

Uppe på en höjd i populära Sigtuna Stadsängar kan du förverkliga din hemlängtan direkt. Välkommen till ett välplanerat tvåplanshus om 144 kvm med tre sovrum. Inspirerat av vår husfavorit Källviken, men anpassat efter just den här platsen.

Välplanerat med gavelställd entré

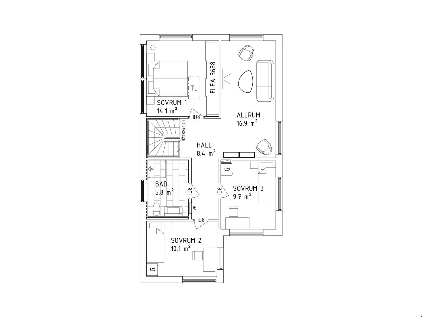
Här kan du flytta in i ett hus som passar tomten perfekt: 144 ljusa och rymliga kvadratmetrar fördelade på två plan. Entrén är praktiskt placerad vid tvättstugan, vilket ger en öppen siktlinje mot hallen och vardagsrummet. De stora fönsterpartierna skapar en härlig känsla av ljus och rymd. Kök och vardagsrum ligger i direkt anslutning till varandra och erbjuder utsikt mot både gatan och trädgården. En trappa upp hittar du husets tre sovrum och ett generöst allrum. 

Köket är från HTH med slät beige lucka, bänkskiva och stänkskydd i mineralkomposit Bianco Palazzo, vitvaror är Siemens Black Steel, kyl, frys, helintegrerad diskmaskin, induktionshäll med integrerad fläkt, inbyggd ugn och mikro.
Kök och vardagsrum i öppen planlösning med utgång till tomten. Sådd gräsmatta och altan ska anläggas under våren 2026.
WC/dusch har kaklade väggar och klinkergolv Antica white, kommod Vedum Free Maja 615, dimgrön med 2 lådor, spegel Lidan och raka duschväggar Linc Angel samt takduschset.
Praktisk tvättstuga med klinkergolv. Tvättmaskin och torktumlare från Siemens. Tvättho och värmepump Nibe S735.

Övre plan har allrum och tre sovrum samt badrum med kaklade väggar och klinkergolv Antica white, kommod Vedum Free Maja 915, dimgrön med 2 lådor, spegelskåp Viken 900, handdukstork och raka duschväggar Linc Angel samt takduschset.

Snabb inflyttning

Huset är redan på plats och vi räknar med att det står färdigt för inflyttning preliminärt hösten 2025. Vi har noggrant valt ut smakfulla material och funktionella lösningar för att du ska känna dig hemma från dag ett. 

I Sigtuna är det enkelt att trivas

Här flyttar du bokstavligt talat in på ett toppenläge i Sigtuna Stadsängar, som siktar på att bli Sveriges mest hållbara stadsdel. Små trevliga kvarter, fint planterade parker och varierad bebyggelse – men också gott om service för en fungerande vardag. Du har nära till svalkande dopp i Mälaren, Sigtunas charmiga stadskärna och stora vackra skogsområden runt knuten.

Tryggt köp med låga driftkostnader

Fördelarna med ett nybyggt Myresjöhus är många. Här bor du med låg driftskostnad, nästan underhållsfritt de första 10 åren. Du betalar ingen fastighetsavgift i 15 år och får möjlighet till amorteringsfritt i upp till 5 år hos Nordea. Blir du OBOS-medlem får du även möjlighet till extra ekonomisk trygghet ifall din nuvarande bostad inte blir såld i tid.

Har du funderingar? Kontakta vår säljare så får du svar på dina frågor.

OBS! Sådd gräsmatta och altan (begränsad storlek) ingår i priset och kommer anläggas under våren 2026.

Notera att bilderna är exempelbilder och att avvikelser kan förekomma.

Planlösningar

Entréplan
Övervåning

Planlösning 1 av 2

Entréplan

Planlösning 2 av 2

Övervåning

Fler planlösningar

Entréplan

1 av 2

Entréplan

Övervåning

2 av 2

Övervåning

Villa-fakta

  • Antal rum 5-6 rum och kök
  • Pris 7 995 000 kr
  • Boarea 144 m²
  • Fastighets­beteckning Älvan 37
  • Tillhör projekt Kv Stadsängshöjden

Kontaktpersoner

Henrik Nyberg

Säljare

Lars Johanson

Säljare

Upptäck fler hem

i Kv Stadsängshöjden

6
Till salu
1
Reserverade
3
Sålda
1
Ej till salu
Beteckning
Objektstyp
Boarea
Antal rum
Pris
Inflyttning
Status
Objektstyp Villa
Boarea 186 m²
Antal rum 6-7 rum och kök
Pris 8 150 000 kr
Inflyttning
Status
Till salu
Objektstyp Villa
Boarea 186 m²
Antal rum 6-7 rum och kök
Pris 8 695 000 kr
Inflyttning
Inflyttningsklart
Status
Till salu
Objektstyp Villa
Boarea 186 m²
Antal rum 6-7 rum och kök
Pris 8 400 000 kr
Inflyttning
Status
Till salu
Objektstyp Villa
Boarea 186 m²
Antal rum 6-7 rum och kök
Pris 8 400 000 kr
Inflyttning
Status
Till salu
Objektstyp Villa
Boarea 144 m²
Antal rum 5-6 rum och kök
Pris 7 995 000 kr
Inflyttning
Inflyttningsklart
Status
Till salu
Objektstyp Villa
Boarea 186 m²
Antal rum 6-7 rum och kök
Pris 8 995 000 kr
Inflyttning
Inflyttningsklart
Status
Till salu
Objektstyp Villa
Boarea 186 m²
Antal rum 6-7 rum och kök
Pris 8 400 000 kr
Inflyttning
Status
Reserverad
Objektstyp Villa
Boarea 186 m²
Antal rum 6-7 rum och kök
Pris
Inflyttning
Status
Såld
Objektstyp Villa
Boarea 144 m²
Antal rum 5-6 rum och kök
Pris
Inflyttning
Status
Såld
Objektstyp Villa
Boarea 186 m²
Antal rum 6-7 rum och kök
Pris
Inflyttning
Status
Såld
Objektstyp Villa
Boarea 144 m²
Antal rum 5-6 rum och kök
Pris 8 195 000 kr
Inflyttning
Inflyttningsklart
Status
Ej till salu
Att välja ett inflyttningsklart hus är ett enkelt sätt att komma hem snabbare, utan att tumma på kvalitet eller garantier. Och är du OBOS-medlem får du ännu mer att luta dig mot.
Upptäck tryggheten
Att ett nybyggt hus är ett energisnålt hus är kanske ingen nyhet, speciellt inte jämfört med äldre villor. Men visste du hur mycket det faktiskt kan skilja?
Titta här

Förmånliga lånevillkor, möjlighet till amorteringsfrihet och en service i särklass. Allt detta kan du som köper ett Myresjöhus få via vår partner Nordea.

Läs mer

Sigtuna är Sveriges äldsta stad och historien har varit viktig vid planeringen av Sigtuna stadsängar. Stadsdelen siktar på att bli Sveriges mest hållbara och kännetecknas av små trevliga kvarter, fint planterade parker och varierad bebyggelse.

Läs mer