1 / 11
Inflyttning från maj 2026
Villa Såld

Hus 10 - Kalmarsundsgatan 32

Ekerum, Borgholm

Tillhör projekt

Kalmarsundsgatan
Boarea 122 m²
Tomtarea 730 m²

Flytta till ett nybyggt hus från Myresjöhus i Ekerum på Öland

Drömmer du om ett havsnära semesterhem eller ett året-runt-boende? I Ekerum på Ölands västra kust, med smidig pendling till Borgholm och Kalmar, bygger Myresjöhus friliggande villor intill den populära golfbanan. Nu har du chansen att bli den första att flytta in i en av dessa stilfulla 1-planshus med 4 rum och kök.

Nära till havet, naturen och fastlandet  

Att leva nära naturen är enkelt på Öland, särskilt här i Ekerum. Området där vi bygger husen ligger bara ett stenkast från den populära golfbanan. Och förutom härliga golfrundor har du nära också till tennis- och padelbanor, ett dopp i havet och fina löp- och mountainbikespår genom det öländska landskapet. Efter en aktiv dag kan du unna dig en avkopplande stund på Ekerum Resort, där du kan njuta av god mat och dryck till en fantastisk utsikt. Vill du in till fastlandet tar bilfärden till Kalmar knappt en halvtimme.  

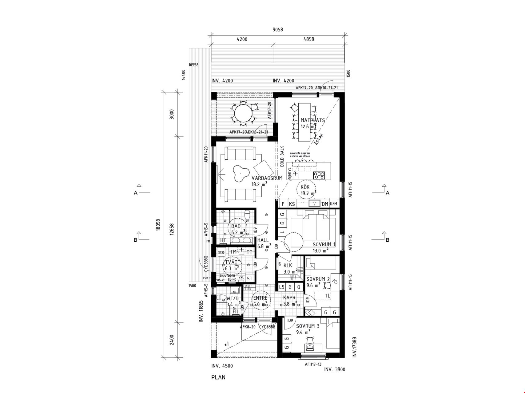
Ett 1-planshus med många funktioner på välplanerad yta

Detta är ett elegant enplanshus med generöst ljusinsläpp och en planlösning som verkligen låter dig ta vara på ytan. Med tre sovrum passar huset både för den mindre barnfamiljen som yngre eller äldre par. 

Öppna ytor som bjuder in till vardag och fest 

Både köket och vardagsrummet är smart planerade, vilket skapar ett härligt flöde mellan de två rummen som ligger i vinkel. Den stora, sociala köksön blir en naturlig samlingspunkt som knyter samman köket med matplatsen – perfekt för både vardagsmiddagar och festliga mingel. Här måste vi också nämna den ljuvliga, indragna uteplatsen som väntar utanför vardagsrummet.

Utrymme för avkoppling och det praktiska 

Husets tre sovrum ligger lite vid sidan av händelsernas centrum. Får ni ett sovrum över passar det lika bra som gästrum, hemmakontor, eller varför inte ditt eget sy- eller pysselrum? Naturligtvis bjuder också huset på praktiska fördelar i form av badrum, extra toalett med dusch och tvättstuga med groventré.

Möjlighet att göra egna val

Är du med i ett tidigt skede har du möjlighet att göra några utvalda tillval – se dokument Stilvalspaket Tillval (till detta hus är det inte möjligt att välja till carport). 

Här får du:

  • Fantastiska sällskapsytor
  • Kök med möjlighet att välja luckor
  • Tre sovrum
  • Två badrum
  • Groventré kombinerad med tvättstuga, utrustad med tvättmaskin och torktumlare
  • Klädkammare
  • Härlig terrass
  • Förråd och parkering på uppfarten

    Notera att bilderna är exempelbilder och att avvikelser kan förekomma. Vi förbehåller oss rätten att justera priser under pågående försäljning.

Planlösning

Villa-fakta

  • Antal rum 4 rum och kök
  • Säljstart Våren 2025
  • Boarea 122 m²
  • Inflyttning från maj 2026
  • Tillhör projekt Kalmarsundsgatan

Kontaktpersoner

Säljare

Mikael Wallenberg

Upptäck fler hem

i Kalmarsundsgatan

2
Till salu
8
Sålda
Beteckning
Objektstyp
Boarea
Antal rum
Pris
Inflyttning
Status
Objektstyp Villa
Boarea 122 m²
Antal rum 4 rum och kök
Pris Från 6 195 000 kr
Inflyttning
Status
Till salu
Objektstyp Villa
Boarea 122 m²
Antal rum 4 rum och kök
Pris Från 6 195 000 kr
Inflyttning
från maj 2026
Status
Till salu
Objektstyp Villa
Boarea 122 m²
Antal rum 4 rum och kök
Pris
Inflyttning
från maj 2026
Status
Såld
Objektstyp Villa
Boarea 122 m²
Antal rum 4 rum och kök
Pris
Inflyttning
från maj 2026
Status
Såld
Objektstyp Villa
Boarea 122 m²
Antal rum 4 rum och kök
Pris
Inflyttning
från maj 2026
Status
Såld
Objektstyp Villa
Boarea 122 m²
Antal rum 4 rum och kök
Pris
Inflyttning
från maj 2026
Status
Såld
Objektstyp Villa
Boarea 122 m²
Antal rum 4 rum och kök
Pris
Inflyttning
från maj 2026
Status
Såld
Objektstyp Villa
Boarea 122 m²
Antal rum 4 rum och kök
Pris
Inflyttning
från maj 2026
Status
Såld
Objektstyp Villa
Boarea 122 m²
Antal rum 4 rum och kök
Pris
Inflyttning
från maj 2026
Status
Såld
Objektstyp Villa
Boarea 122 m²
Antal rum 4 rum och kök
Pris
Inflyttning
från maj 2026
Status
Såld

Boendeformer finns det gott om. Du kan till exempel hyra en lägenhet, äga en bostadsrätt eller själv äga hela ditt hem – till exempel ditt eget Myresjöhus. Är du ny på det här med att äga hus? 

Läs mer

Ett hus byggt i trä är verkligen en svensk klassiker, på sätt och vis synonymt med husdrömmen. Men vilka är egentligen fördelarna med dagens moderna trähus? 

Läs mer