1 / 11
Villa Såld

Hus 28 - Kuskbocksvägen 27

Södra Gunsta, Uppsala

Tillhör projekt

Kv Solterrassen
Boarea 150 m²
Tomtarea 1065 m²

Flyttklart hus i Södra Gunsta

Nu har du chansen att bli ägare till ett nybyggt Myresjöhus med solceller i Södra Gunsta. Här bor du underhållsfritt i många år framöver, med låg driftskostnad. Du slipper fastighetsavgift i 15 år, och kan få möjlighet till amorteringsfrihet via Nordea. Med oss gör du alltid en trygg bostadsaffär – som OBOS-medlem kan du dessutom få ekonomisk hjälp om försäljningen av ditt nuvarande hem drar ut på tiden.

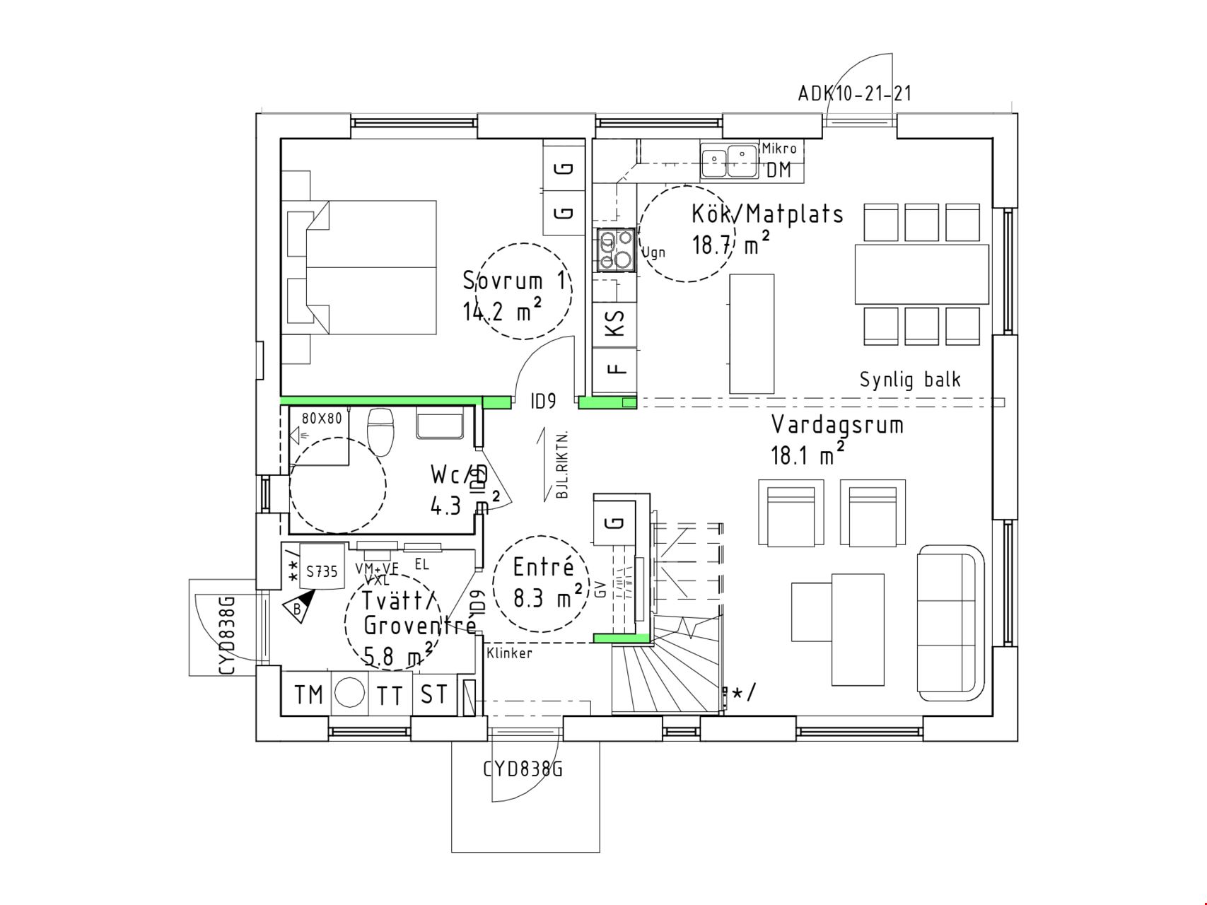
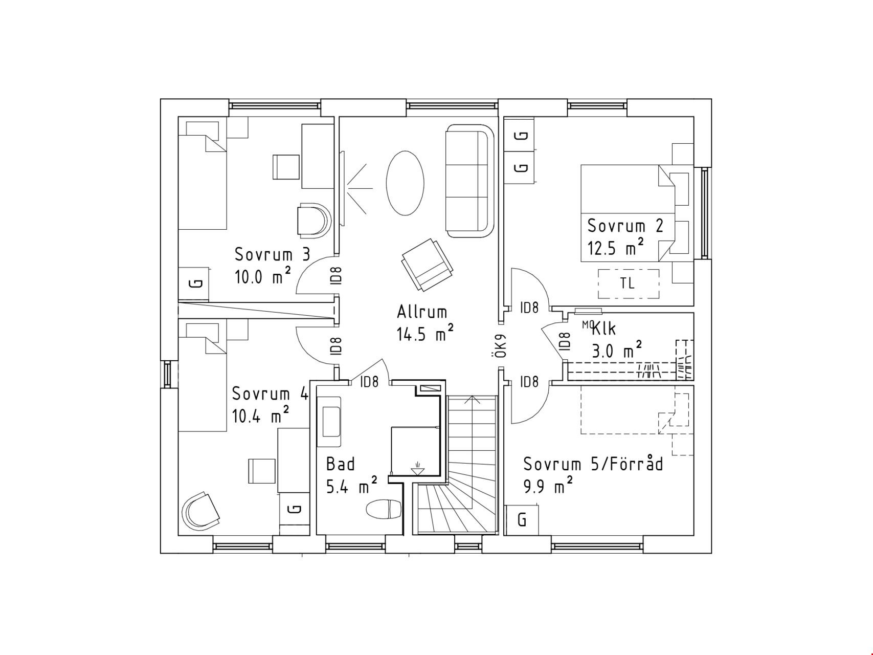
Välkommen in i denna nyproducerade villa om 150 kvadratmeter med 6 rum och kök. Smart 150 som husmodellen heter är ett av våra mest sålda och omtyckta hus. Planlösningen är modern med kök och vardagsrum i öppet samband på entréplan. Det stora föräldrasovrummet ligger på samma plan som sällskapsytorna, med ytterligare fyra generösa sovrum på övervåningen. En trappa upp hittar du även ett litet allrum, badrum och klädkammare. Hallen är rymlig med klinkat golv och direkt innanför groventrén finns tvättstuga med tvättmaskin samt torktumlare.

Hög standard i kök och badrum

Köket kommer vara utrustad med en hög standard och inrett med en köksö. Luckorna är vita med diskreta rostfria handtag, bänkskivan är i svart laminat och vitvarorna svarta. I köket hittar du alla hushållsapparater som du behöver för att laga dina festliga måltider som: inbyggnadsugn, mikro, kyl, frys, spishäll, fläkt, diskmaskin, dämpade fullutdragslådor och mjukstängande luckor. Klicka här för att se ritningarna på köket. Badrummen är inredda med kakel och klinker, duschhörn med takdusch samt skogsgröna kommoder.

Ett sparande uppe på taket

Huset är utrustat med 10 solpaneler från Nibe så att du ska kunna producera din egen el. Det innebär att man blir betydligt mindre sårbar för stigande elpriser. På sommarhalvåret kan solcellerna i många fall täcka hela behovet av hushållsel. Eventuellt överskott kan man dessutom smidigt sälja tillbaka till elbolaget.

Njut av villalivet i Södra Gunsta

Södra Gunsta är känt för sin närhet till skog och vatten och populära rekreationsområden som Fjällnoraområdet, sjön Trehörningen och Vedyxaskogen som alla är välbesökta av uppsalaborna. Båt, bad samt fiskemöjligher finns vid både Fjällnorabadet, Funbosjön och Länna. Vid Fjällnora kan man även hyra kanot och båt och njuta av välplogade skridskobanor vintertid. 

I dag finns det tre förskolor i området samt grundskola i närliggande Funbo som är från förskoleklass till årskurs tre. Området har bra kommunikationer och kollektivtrafiken trafikerar sträckan mot både Uppsala och Almunge. För den som föredrar att cykla finns det en modern cykelväg längsmed vägen. Under sommarsäsongen går också museijärnvägen Lennakatten från Uppsala förbi Gunsta och ända till Faringe.

Observera att bilderna är illustrationer som ska ses som vägledande. Avvikelser kan därför förekomma.

Planlösningar

Planlösning 1 av 2

Planlösning 2 av 2

Fler planlösningar

1 av 2

2 av 2

Villa-fakta

Kontaktpersoner

Säljare

Roger Albinsson

Upptäck fler hem

i Kv Solterrassen

9
Till salu
4
Reserverade
15
Sålda
Beteckning
Objektstyp
Tomtarea
Boarea
Antal rum
Pris
Inflyttning
Status
Objektstyp Tomt
Tomtarea 1042 m²
Boarea
Antal rum
Pris 1 800 000 kr
Inflyttning
Status
Till salu
Objektstyp Tomt
Tomtarea 1034 m²
Boarea
Antal rum
Pris 1 925 000 kr
Inflyttning
Status
Till salu
Objektstyp Tomt
Tomtarea 1090 m²
Boarea
Antal rum
Pris 1 995 000 kr
Inflyttning
Status
Till salu
Objektstyp Tomt
Tomtarea 886 m²
Boarea
Antal rum
Pris 1 925 000 kr
Inflyttning
Status
Till salu
Objektstyp Tomt
Tomtarea 1035 m²
Boarea
Antal rum
Pris 1 800 000 kr
Inflyttning
Status
Till salu
Objektstyp Tomt
Tomtarea 1056 m²
Boarea
Antal rum
Pris 1 950 000 kr
Inflyttning
Status
Till salu
Objektstyp Tomt
Tomtarea 1157 m²
Boarea
Antal rum
Pris 1 925 000 kr
Inflyttning
Status
Till salu
Objektstyp Tomt
Tomtarea 1193 m²
Boarea
Antal rum
Pris 1 795 000 kr
Inflyttning
Status
Till salu
Objektstyp Tomt
Tomtarea 1147 m²
Boarea
Antal rum
Pris 1 795 000 kr
Inflyttning
Status
Till salu
Objektstyp Tomt
Tomtarea 1039 m²
Boarea
Antal rum
Pris 1 925 000 kr
Inflyttning
Status
Reserverad
Objektstyp Tomt
Tomtarea 1047 m²
Boarea
Antal rum
Pris 1 950 000 kr
Inflyttning
Status
Reserverad
Objektstyp Tomt
Tomtarea 1185 m²
Boarea
Antal rum
Pris 1 795 000 kr
Inflyttning
Status
Reserverad
Objektstyp Villa
Tomtarea 1195 m²
Boarea 125 m²
Antal rum 5 rum och kök
Pris 5 484 900 kr
Inflyttning
Status
Reserverad
Objektstyp Tomt
Tomtarea 849 m²
Boarea
Antal rum
Pris
Inflyttning
Status
Såld
Objektstyp Tomt
Tomtarea 828 m²
Boarea
Antal rum
Pris
Inflyttning
Status
Såld
Objektstyp Tomt
Tomtarea 1268 m²
Boarea
Antal rum
Pris
Inflyttning
Status
Såld
Objektstyp Villa
Tomtarea 1048 m²
Boarea 150 m²
Antal rum 6 rum och kök
Pris
Inflyttning
Status
Såld
Objektstyp Villa
Tomtarea 1065 m²
Boarea 150 m²
Antal rum 6 rum och kök
Pris
Inflyttning
Status
Såld
Objektstyp Villa
Tomtarea 1011 m²
Boarea 150 m²
Antal rum 6 rum och kök
Pris
Inflyttning
Status
Såld
Objektstyp Villa
Tomtarea 1038 m²
Boarea 150 m²
Antal rum 6 rum och kök
Pris
Inflyttning
Inflyttningsklart
Status
Såld
Objektstyp Villa
Tomtarea 1055 m²
Boarea 150 m²
Antal rum 6 rum och kök
Pris
Inflyttning
Status
Såld
Objektstyp Villa
Tomtarea 1062 m²
Boarea 150 m²
Antal rum 6 rum och kök
Pris
Inflyttning
Status
Såld
Objektstyp Villa
Tomtarea 1010 m²
Boarea 150 m²
Antal rum 6 rum och kök
Pris
Inflyttning
Inflyttningsklart
Status
Såld
Objektstyp Villa
Tomtarea 1030 m²
Boarea 150 m²
Antal rum 6 rum och kök
Pris
Inflyttning
Inflyttningsklart
Status
Såld
Objektstyp Tomt
Tomtarea 1045 m²
Boarea
Antal rum
Pris
Inflyttning
Status
Såld
Objektstyp Tomt
Tomtarea 1013 m²
Boarea
Antal rum
Pris
Inflyttning
Status
Såld
Objektstyp Tomt
Tomtarea 1037 m²
Boarea
Antal rum
Pris
Inflyttning
Status
Såld
Objektstyp Tomt
Tomtarea 1149 m²
Boarea
Antal rum
Pris
Inflyttning
Status
Såld

För dig som funderar på att bygga hus innebär det en extra trygghet att göra det tillsammans med en finansiellt stark koncern med lång erfarenhet och långsiktigt agerande. Myresjöhus erbjuder just detta. 

Läs mer

Att ett nybyggt hus är ett energisnålt hus är kanske ingen nyhet, speciellt inte jämfört med äldre villor. Men visste du hur mycket det faktiskt kan skilja? 

Titta här

Förmånliga lånevillkor, möjlighet till amorteringsfrihet och en service i särklass. Allt detta kan du som bygger ett Myresjöhus få, eftersom vi är Nyckelpartner till Nordea.

Läs mer