1 / 9

100.000 kr i tillval

Bokningsavtal Försäljning pågår
Kedjehus Till salu

Hus 2 - Terrassvägen 2

Tjuvkil, Kungälv

Tillhör projekt

Kv Terrassen
Boarea 132 m²
Tomtarea 299 m²
Pris
6.600.000 kr

Drömmen om västkusten tar form

Snart står ditt nya hem klart – ett gediget Myresjöhus med äganderätt, där varje detalj förenar harmoni, funktion och stil. Här får du dessutom möjlighet att sätta din egen prägel på inredningen och skapa ett hem som verkligen känns som ditt. Låt hemlängtan växa i takt med att ditt drömhus tar form vid kusten.

Hem med plats för hela livet

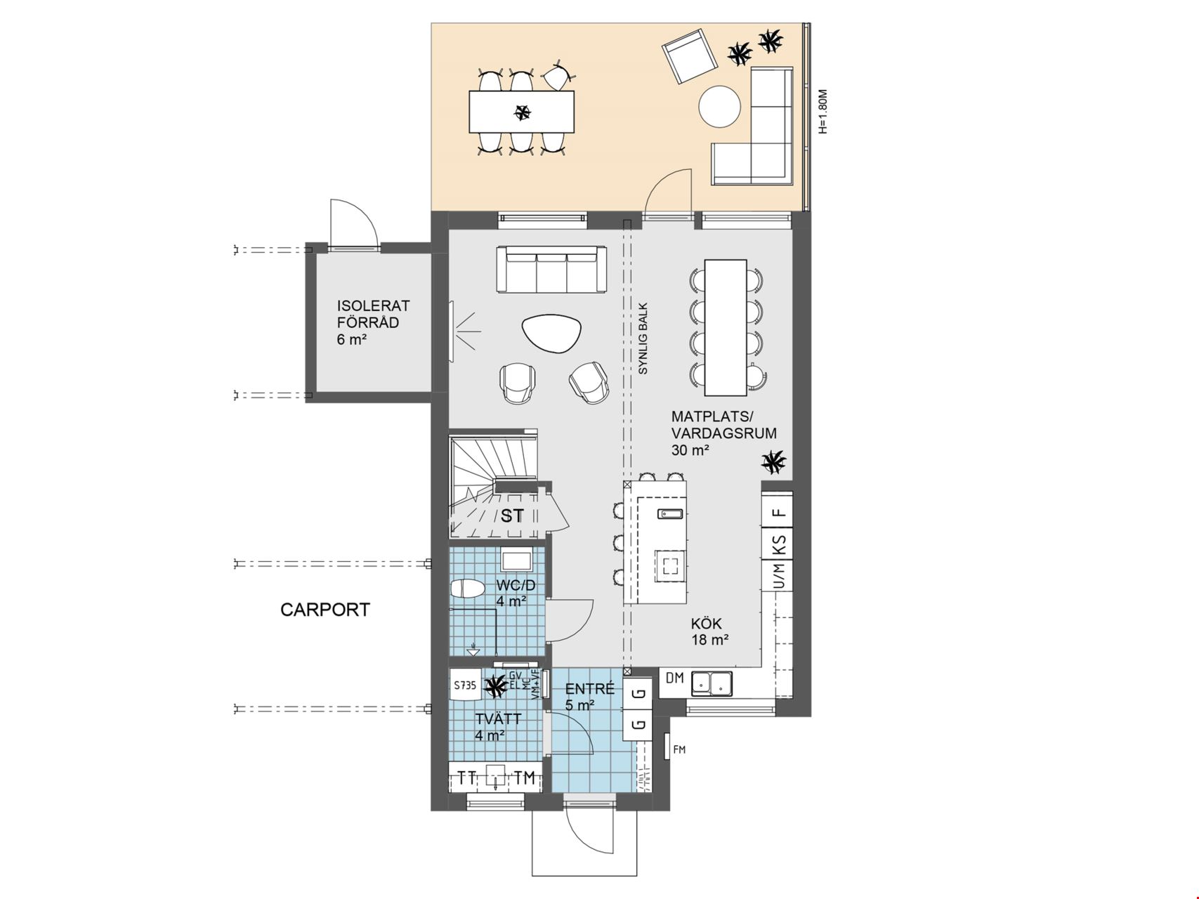
Välkommen till ett välplanerat tvåplanshus på 132 kvadratmeter, där vardagens funktion möter plats för umgänge och avkoppling. Redan i entrén möts du av ett sobert klinkergolv i mjuka, jordnära toner, både praktiskt och stilrent och ett intryck av ljus och rymd som genomsyrar hela bostaden.

På entréplanet ligger husets hjärta, det öppna köket och vardagsrummet. Köket är Mono från HTH, med vita släta luckor, kromade Lounge-handtag och en laminatbänkskiva i stenlook som skapar en elegant kontrast. De rostfria vitvarorna från Siemens bidrar till en modern känsla och en hållbar standard som håller över tid.

Matplats och vardagsrum flyter ihop i ett luftigt flöde där ljuset strömmar in från flera håll. Härifrån nås även den generösa terrassen som bjuder in till middagar och avkoppling under bar himmel.

De helkaklade badrummen har hög standard redan från start, med vitt kakel, klinker i naturliga toner, en Vedum-kommod Maja i vitt, glasduschväggar och rostfria blandare. Även tvättstugan har inredning från HTH med vita luckor och matchande bänkskiva, vilket gör vardagens sysslor både enkla och snyggt integrerade.

På övervåningen väntar ett ljust allrum om med utgång till en stor takterrass, samt tre rogivande sovrum och ett stort badrum med samma påkostade känsla. Genom hela huset löper ett vitlaserat parkettgolv i ek, vilket skapar en mjuk övergång mellan rummen och förstärker det ljusa uttrycket.

Ett hem där varje detalj är vald för att hålla över tid – stilrent, praktiskt och fullt av hemlängtan.

Ett naturnära liv vid havet

Tjuvkil är ett område med stark gemenskap och natursköna omgivningar. Här finns badplatser, småbåtshamn och naturreservat på bekvämt avstånd, liksom skolor, förskolor och service i närliggande Ytterby och Kungälv. För den golfintresserade ligger golfbanor i närheten och för den som pendlar går både bussar och bilvägar smidigt mot Göteborg.

Extra trygghet med OBOS-medlemskap

När du köper ett Myresjöhus blir du också en del av OBOS – en medlemsägd bostadsutvecklare som funnits i nästan 100 år. Som OBOS-medlem får du inte bara förtur till bostäder och tomter, utan även tillgång till en rad förmåner som gör livet i ditt nya hem lite enklare och roligare. Dessutom vet du att vinsten återinvesteras i nya bostäder och hållbara samhällen – något som gör ditt nya hem till en del av något större.Hem med plats för hela livet.

Notera att bilderna är exempelbilder och att avvikelser kan förekomma. Vi förbehåller oss rätten att justera priser under pågående försäljning.

För dig som funderar på att bygga hus innebär det en extra trygghet att göra det tillsammans med en finansiellt stark koncern med lång erfarenhet och långsiktigt agerande. Myresjöhus erbjuder just detta.
Läs mer

Planlösningar

Planlösning 1 av 2

Planlösning 2 av 2

Fler planlösningar

1 av 2

2 av 2

Kedjehus-fakta

  • Antal rum 5 rum och kök
  • Pris 6.600.000 kr
  • Boarea 132 m²
  • Fastighets­beteckning del av Tjuvkil 2:217
  • Tillhör projekt Kv Terrassen

Uppskattad boendekostnad

kr

Intresseanmälan
Kontantinsats

Skriv hur mycket av dina egna pengar som du vill lägga, minst 15 % av beloppet du köper bostaden för.

Bolåneränta per månad

Om du inte anger en egen ränta använder vi Nordeas 3-månaders snittränta. Se representativt exempel med effektiv ränta för ett bolån hos Nordea längre ned på sidan.

Amortering per månad

Lånar du över 70 % ska du betala tillbaka minst 2 % av lånebeloppet varje år. Är lånet på 50–70 % betalar du tillbaka minst 1 %.

Per Andersson Säljare 070-602 15 00 010-434 13 16

Flytta in i ett Myresjöhus

Intressanmälan

Fyll i dina kontaktuppgifter så återkommer vi till dig

Upptäck fler hem

i Kv Terrassen

10
Till salu
1
Reserverade
Beteckning
Objektstyp
Boarea
Antal rum
Pris
Inflyttning
Status
Objektstyp Kedjehus
Boarea 132 m²
Antal rum 5 rum och kök
Pris 6.600.000 kr
Inflyttning
Försäljning pågår
Status
Till salu
Objektstyp Kedjehus
Boarea 132 m²
Antal rum 5 rum och kök
Pris 6.700.000 kr
Inflyttning
Försäljning pågår
Status
Till salu
Objektstyp Kedjehus
Boarea 132 m²
Antal rum 5 rum och kök
Pris 6.750.000 kr
Inflyttning
Försäljning pågår
Status
Till salu
Objektstyp Kedjehus
Boarea 132 m²
Antal rum 5 rum och kök
Pris 6.500.000 kr
Inflyttning
Försäljning pågår
Status
Till salu
Objektstyp Kedjehus
Boarea 132 m²
Antal rum 5 rum och kök
Pris 6.400.000 kr
Inflyttning
Försäljning pågår
Status
Till salu
Objektstyp Kedjehus
Boarea 132 m²
Antal rum 5 rum och kök
Pris 6.800.000 kr
Inflyttning
Försäljning pågår
Status
Till salu
Objektstyp Kedjehus
Boarea 132 m²
Antal rum 5 rum och kök
Pris 6.750.000 kr
Inflyttning
Försäljning pågår
Status
Till salu
Objektstyp Kedjehus
Boarea 132 m²
Antal rum 5 rum och kök
Pris 6.550.000 kr
Inflyttning
Försäljning pågår
Status
Till salu
Objektstyp Kedjehus
Boarea 132 m²
Antal rum 5 rum och kök
Pris 6.550.000 kr
Inflyttning
Försäljning pågår
Status
Till salu
Objektstyp Kedjehus
Boarea 132 m²
Antal rum 5 rum och kök
Pris 6.600.000 kr
Inflyttning
Försäljning pågår
Status
Till salu
Objektstyp Kedjehus
Boarea 132 m²
Antal rum 5 rum och kök
Pris 6.900.000 kr
Inflyttning
Försäljning pågår
Status
Reserverad
Förmånliga lånevillkor, möjlighet till amorteringsfrihet och en service i särklass. Allt det här kan du som bygger ett Myresjöhus få tillsammans med vår Nyckelpartner till Nordea.
Läs mer
Boendeformer finns det gott om. Du kan till exempel hyra en lägenhet, äga en bostadsrätt eller själv äga hela ditt hem – till exempel ditt eget Myresjöhus. Är du ny på det här med att äga hus?
Läs mer
Här väntar en smidig husresa där vi tar hand om allt från val av husmodell till finansiering under byggtiden. Du betalar en handpenning när du skriver avtal – och resten vid tillträde.
Läs mer

Finns i närheten