1 / 9

Månadskostnad från 11.100 kr

Inflyttning sommar/höst 2027
Kedjehus Till salu

Hus 6 - Terrassvägen 6

Tjuvkil, Kungälv

Tillhör projekt

Kv Terrassen
Boarea 132 m²
Tomtarea 238 m²
Pris
6.245.000 kr

Drömmen om västkusten tar form

Snart står ditt nya hem klart – ett gediget Myresjöhus med äganderätt, där varje detalj förenar harmoni, funktion och stil. Här får du dessutom möjlighet att sätta din egen prägel på inredningen och skapa ett hem som verkligen känns som ditt. Låt hemlängtan växa i takt med att ditt drömhus tar form vid kusten.

Stilrent, funktionellt och full av hemlängtan

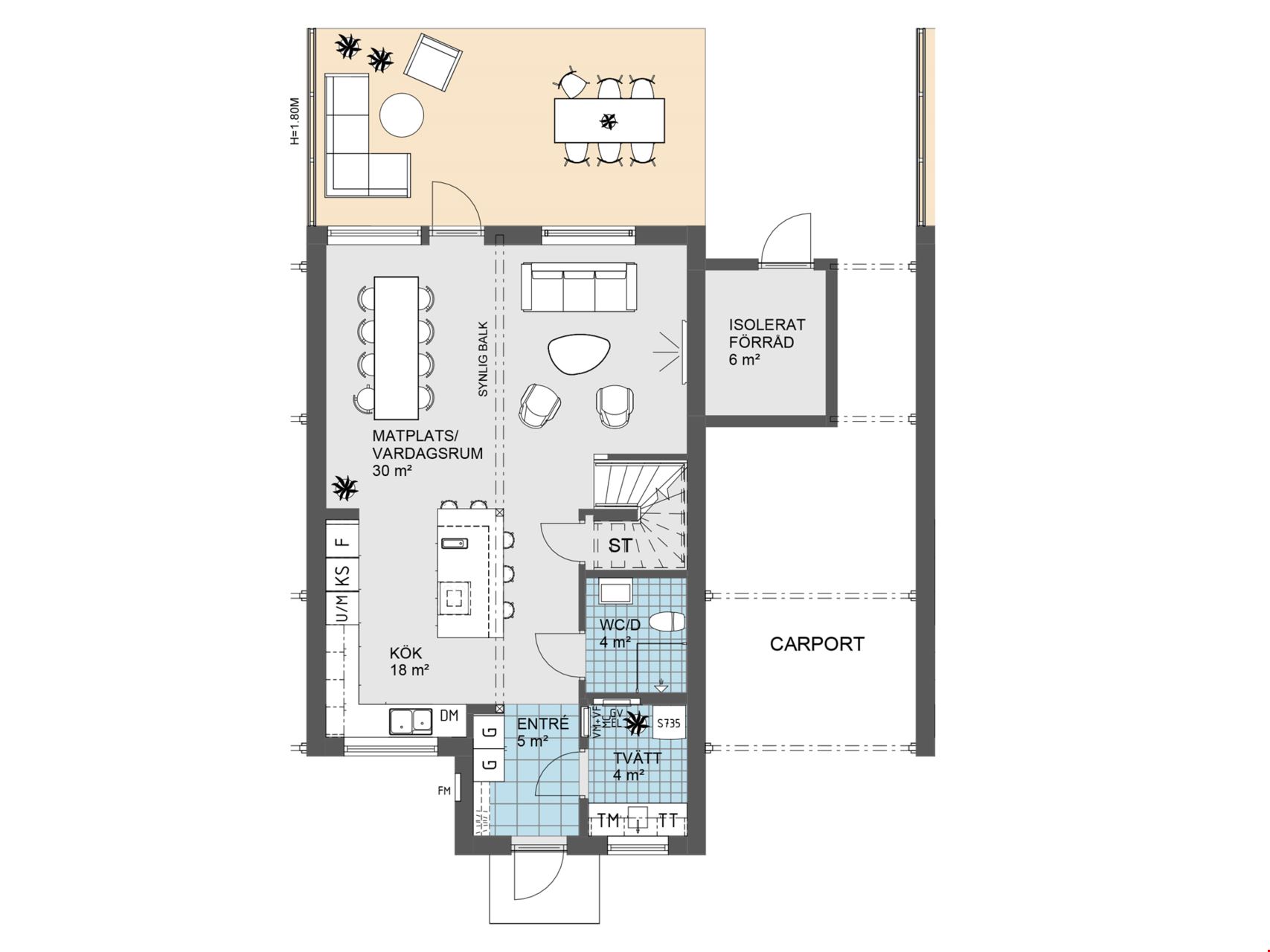
Välkommen till ett hus om 132 kvadratmeter, som kombinerar elegans med vardagsfunktion på bästa sätt. Här kliver du in i en ljus hall med klinkergolv och möts av en öppen planlösning där hemmet genast känns välkomnande.

Det ljusa köket från HTH är både snyggt och praktiskt, med bänkskiva i stenlook och rostfria Siemens-vitvaror. De öppna ytorna mot matplats och vardagsrum gör det enkelt att umgås, oavsett om du lagar mat, leker med barnen eller tar emot gäster.

Badrum och tvättstuga är inredda i ljusa toner med kakel, klinker och vit inredning från Vedum och HTH. På övervåningen väntar tre sovrum, ett luftigt allrum och en takterrass som blir en naturlig plats för avkoppling.

Med vitlaserade ekgolv och en genomgående ljus färgskala skapas ett hem som känns både modernt och varmt – byggt för att hålla över tid.

Ett naturnära liv vid havet

Tjuvkil är ett område med stark gemenskap och natursköna omgivningar. Här finns badplatser, småbåtshamn och naturreservat på bekvämt avstånd, liksom skolor, förskolor och service i närliggande Ytterby och Kungälv. För den golfintresserade ligger golfbanor i närheten och för den som pendlar går både bussar och bilvägar smidigt mot Göteborg.

Extra trygghet med OBOS-medlemskap

När du köper ett Myresjöhus blir du också en del av OBOS – en medlemsägd bostadsutvecklare som funnits i nästan 100 år. Som OBOS-medlem får du inte bara förtur till bostäder och tomter, utan även tillgång till en rad förmåner som gör livet i ditt nya hem lite enklare och roligare. Dessutom vet du att vinsten återinvesteras i nya bostäder och hållbara samhällen – något som gör ditt nya hem till en del av något större.Hem med plats för hela livet.

Notera att bilderna är exempelbilder och att avvikelser kan förekomma. Vi förbehåller oss rätten att justera priser under pågående försäljning.

Räkna på din månadskostnad för ett nybyggt hus i Tjuvkil, Kv Terrassen – och få en tydlig bild av din framtida boendeekonomi. Testa vår boendekalkylator och ta första steget mot ditt nya hem.

150.000 kr till det som gör huset till ditt hem

Just nu erbjuder vi 150.000 kr i rabatt till de första köpare som tecknar avtal om äganderätt i projektet Kv Terrassen. Vi förbehåller oss rätten att justera priser under pågående försäljning.

Kedjehus-fakta

  • Antal rum 5 rum och kök
  • Pris 6.245.000 kr
  • Boarea 132 m²
  • Fastighets­beteckning del av Tjuvkil 2:217
  • Inflyttning sommar/höst 2027
  • Tillhör projekt Kv Terrassen

Uppskattad boendekostnad

kr

Intresseanmälan
Kontantinsats

Skriv hur mycket av dina egna pengar som du vill lägga, minst 10 % av beloppet du köper bostaden för.

Bolåneränta per månad

Om du inte anger en egen ränta använder vi Nordeas 3-månaders snittränta. Se representativt exempel med effektiv ränta för ett bolån hos Nordea längre ned på sidan.

Amortering per månad

Lånar du över 70 % ska du betala tillbaka minst 2 % av lånebeloppet varje år. Är lånet på 50–70 % betalar du tillbaka minst 1 %.

Visningar

Områdesvisning i Tjuvkil

Tomtvisning

lördag 25 apr

11:00-12:00

Tjuvkil 505, 442 75 Lycke, Kungälv

Läs mer
Anders Stenborg Säljare +46706015498 +46104341557

Flytta in i ett Myresjöhus

Intressanmälan

Fyll i dina kontaktuppgifter så återkommer vi till dig

Hitta hem i Kv Terrassen 

10
Till salu
1
Sålda
Objekt Adress Pris Boarea Rum och kök Inflyttning
Till salu
Kedjehus 1 Terrassvägen 1 6.645.000 kr 132 m² 5 rum och kök
sommar/höst 2027
Till salu
Kedjehus 2 Terrassvägen 2 6.495.000 kr 132 m² 5 rum och kök
sommar/höst 2027
Till salu
Kedjehus 3 Terrassvägen 3 6.495.000 kr 132 m² 5 rum och kök
sommar/höst 2027
Till salu
Kedjehus 5 Terrassvägen 5 6.395.000 kr 132 m² 5 rum och kök
sommar/höst 2027
Till salu
Kedjehus 6 Terrassvägen 6 6.245.000 kr 132 m² 5 rum och kök
sommar/höst 2027
Till salu
Kedjehus 7 Terrassvägen 7 6.645.000 kr 132 m² 5 rum och kök
sommar/höst 2027
Till salu
Kedjehus 8 Terrassvägen 8 6.595.000 kr 132 m² 5 rum och kök
sommar/höst 2027
Till salu
Kedjehus 9 Terrassvägen 9 6.495.000 kr 132 m² 5 rum och kök
sommar/höst 2027
Till salu
Kedjehus 10 Terrassvägen 10 6.495.000 kr 132 m² 5 rum och kök
sommar/höst 2027
Till salu
Kedjehus 11 Terrassvägen 11 6.575.000 kr 132 m² 5 rum och kök
sommar/höst 2027
Såld
Kedjehus 4 Terrassvägen 4 132 m² 5 rum och kök
Scrolla sidled i tabellen för att se alla kolumner
Strax norr om Kungälv, där Bohusläns klippor möter grönskande skog, ligger Tjuvkil – en kustpärla som bjuder på lugn, gemenskap och vardag med semesterkänsla. Här lever du nära havet och naturen, med bad, båtliv och skärgårdsliv runt hörnet – men ändå bara trettio minuter från Göteborgs stadspuls.
Läs mer om området

Finns i närheten

För dig som funderar på att bygga hus innebär det en extra trygghet att göra det tillsammans med en finansiellt stark koncern med lång erfarenhet och långsiktigt agerande. Myresjöhus erbjuder just detta.
Läs mer
Förmånliga lånevillkor, möjlighet till amorteringsfrihet och en service i särklass. Allt det här kan du som bygger ett Myresjöhus få tillsammans med vår Nyckelpartner till Nordea.
Läs mer
Boendeformer finns det gott om. Du kan till exempel hyra en lägenhet, äga en bostadsrätt eller själv äga hela ditt hem – till exempel ditt eget Myresjöhus. Är du ny på det här med att äga hus?
Läs mer
Här väntar en smidig husresa där vi tar hand om allt från val av husmodell till finansiering under byggtiden. Du betalar en handpenning när du skriver avtal – och resten vid tillträde.
Läs mer