1 / 8

100.000 kr i tillval

Bokningsavtal Försäljning pågår
Kedjehus Till salu

Hus 9 - Terrassvägen 9

Tjuvkil, Kungälv

Tillhör projekt

Kv Terrassen
Boarea 132 m²
Tomtarea 265 m²
Pris
6.550.000 kr

Drömmen om västkusten tar form

Snart står ditt nya hem klart – ett gediget Myresjöhus med äganderätt, där varje detalj förenar harmoni, funktion och stil. Här får du dessutom möjlighet att sätta din egen prägel på inredningen och skapa ett hem som verkligen känns som ditt. Låt hemlängtan växa i takt med att ditt drömhus tar form vid kusten.

Ett hem där kvalitet och ljus går hand i hand

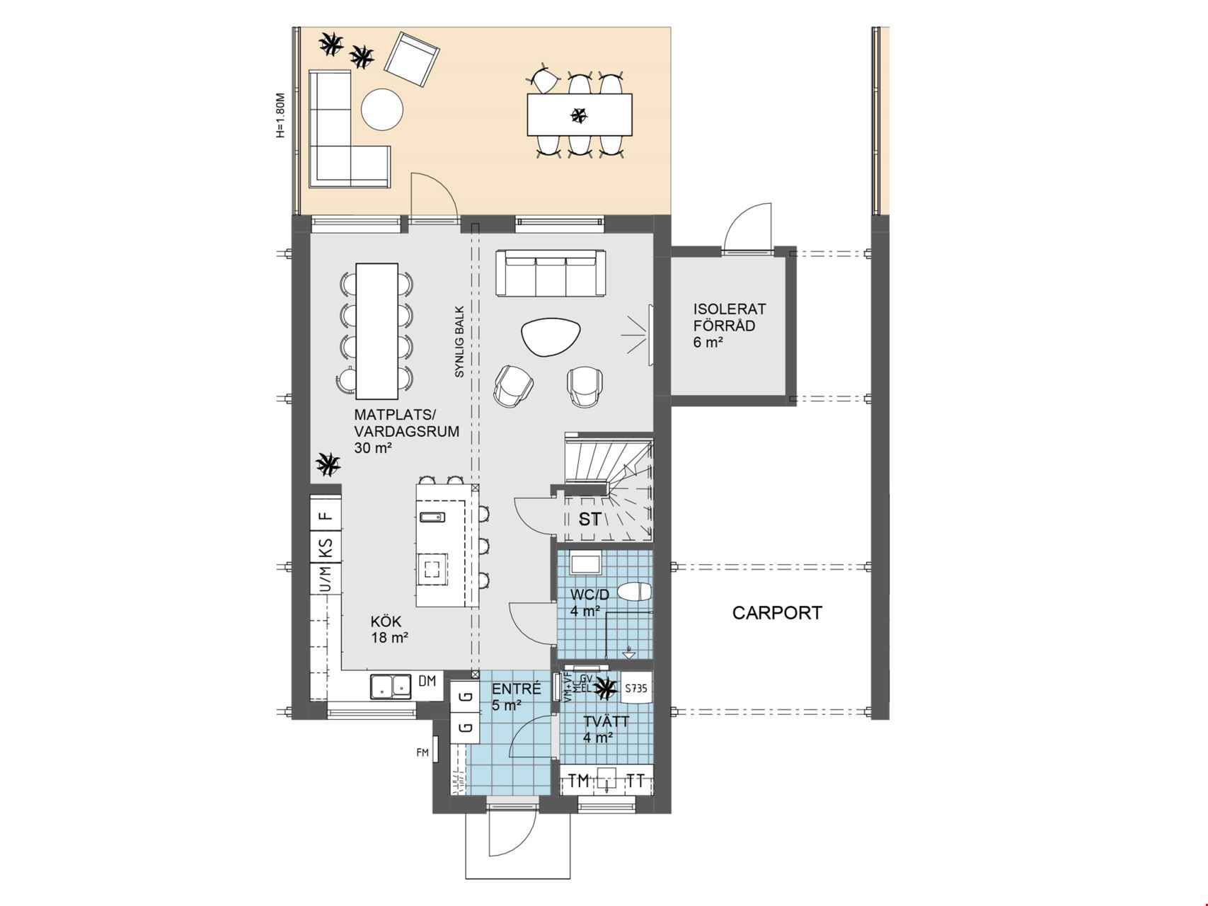
Välkommen till ett kedjehus på 132 kvadratmeter, som erbjuder ett modernt boende med genomgående ljusa materialval och påkostad grundstandard. Hallen har klinkergolv i mjuka naturtoner, medan övriga ytor pryds av vitlaserat parkettgolv i ek.

Köket från HTH är modernt och stilrent, med vita luckor och bänkskiva i stenlook, och de rostfria vitvarorna från Siemens ger ett exklusivt helhetsintryck.

Badrummen är helkaklade och utrustade med Vedum-kommod, glasduschväggar och rostfria blandare, medan tvättstugan har HTH-inredning och Siemens-maskiner.

Övervåningen bjuder på tre sovrum, ett luftigt allrum och en stor takterrass – en perfekt plats för lugn och utsikt.

Det här är ett hem för dig som uppskattar både estetik och funktion – byggt för att hålla länge och älskas varje dag.

Ett naturnära liv vid havet

Tjuvkil är ett område med stark gemenskap och natursköna omgivningar. Här finns badplatser, småbåtshamn och naturreservat på bekvämt avstånd, liksom skolor, förskolor och service i närliggande Ytterby och Kungälv. För den golfintresserade ligger golfbanor i närheten och för den som pendlar går både bussar och bilvägar smidigt mot Göteborg.

Extra trygghet med OBOS-medlemskap

När du köper ett Myresjöhus blir du också en del av OBOS – en medlemsägd bostadsutvecklare som funnits i nästan 100 år. Som OBOS-medlem får du inte bara förtur till bostäder och tomter, utan även tillgång till en rad förmåner som gör livet i ditt nya hem lite enklare och roligare. Dessutom vet du att vinsten återinvesteras i nya bostäder och hållbara samhällen – något som gör ditt nya hem till en del av något större.Hem med plats för hela livet.

Notera att bilderna är exempelbilder och att avvikelser kan förekomma. Vi förbehåller oss rätten att justera priser under pågående försäljning.

För dig som funderar på att bygga hus innebär det en extra trygghet att göra det tillsammans med en finansiellt stark koncern med lång erfarenhet och långsiktigt agerande. Myresjöhus erbjuder just detta.
Läs mer

Planlösningar

Planlösning 1 av 2

Planlösning 2 av 2

Fler planlösningar

1 av 2

2 av 2

Kedjehus-fakta

  • Antal rum 5 rum och kök
  • Pris 6.550.000 kr
  • Boarea 132 m²
  • Fastighets­beteckning del av Tjuvkil 2:217
  • Tillhör projekt Kv Terrassen

Uppskattad boendekostnad

kr

Intresseanmälan
Kontantinsats

Skriv hur mycket av dina egna pengar som du vill lägga, minst 15 % av beloppet du köper bostaden för.

Bolåneränta per månad

Om du inte anger en egen ränta använder vi Nordeas 3-månaders snittränta. Se representativt exempel med effektiv ränta för ett bolån hos Nordea längre ned på sidan.

Amortering per månad

Lånar du över 70 % ska du betala tillbaka minst 2 % av lånebeloppet varje år. Är lånet på 50–70 % betalar du tillbaka minst 1 %.

Per Andersson Säljare 070-602 15 00 010-434 13 16

Flytta in i ett Myresjöhus

Intressanmälan

Fyll i dina kontaktuppgifter så återkommer vi till dig

Upptäck fler hem

i Kv Terrassen

10
Till salu
1
Reserverade
Beteckning
Objektstyp
Boarea
Antal rum
Pris
Inflyttning
Status
Objektstyp Kedjehus
Boarea 132 m²
Antal rum 5 rum och kök
Pris 6.600.000 kr
Inflyttning
Försäljning pågår
Status
Till salu
Objektstyp Kedjehus
Boarea 132 m²
Antal rum 5 rum och kök
Pris 6.700.000 kr
Inflyttning
Försäljning pågår
Status
Till salu
Objektstyp Kedjehus
Boarea 132 m²
Antal rum 5 rum och kök
Pris 6.750.000 kr
Inflyttning
Försäljning pågår
Status
Till salu
Objektstyp Kedjehus
Boarea 132 m²
Antal rum 5 rum och kök
Pris 6.500.000 kr
Inflyttning
Försäljning pågår
Status
Till salu
Objektstyp Kedjehus
Boarea 132 m²
Antal rum 5 rum och kök
Pris 6.400.000 kr
Inflyttning
Försäljning pågår
Status
Till salu
Objektstyp Kedjehus
Boarea 132 m²
Antal rum 5 rum och kök
Pris 6.800.000 kr
Inflyttning
Försäljning pågår
Status
Till salu
Objektstyp Kedjehus
Boarea 132 m²
Antal rum 5 rum och kök
Pris 6.750.000 kr
Inflyttning
Försäljning pågår
Status
Till salu
Objektstyp Kedjehus
Boarea 132 m²
Antal rum 5 rum och kök
Pris 6.550.000 kr
Inflyttning
Försäljning pågår
Status
Till salu
Objektstyp Kedjehus
Boarea 132 m²
Antal rum 5 rum och kök
Pris 6.550.000 kr
Inflyttning
Försäljning pågår
Status
Till salu
Objektstyp Kedjehus
Boarea 132 m²
Antal rum 5 rum och kök
Pris 6.600.000 kr
Inflyttning
Försäljning pågår
Status
Till salu
Objektstyp Kedjehus
Boarea 132 m²
Antal rum 5 rum och kök
Pris 6.900.000 kr
Inflyttning
Försäljning pågår
Status
Reserverad
Förmånliga lånevillkor, möjlighet till amorteringsfrihet och en service i särklass. Allt det här kan du som bygger ett Myresjöhus få tillsammans med vår Nyckelpartner till Nordea.
Läs mer
Boendeformer finns det gott om. Du kan till exempel hyra en lägenhet, äga en bostadsrätt eller själv äga hela ditt hem – till exempel ditt eget Myresjöhus. Är du ny på det här med att äga hus?
Läs mer
Här väntar en smidig husresa där vi tar hand om allt från val av husmodell till finansiering under byggtiden. Du betalar en handpenning när du skriver avtal – och resten vid tillträde.
Läs mer

Finns i närheten