1 / 15
Inflyttning Hösten 2026
Villa Till salu

Hus 6 - Violstigen 13

Bränninge, Habo

Tillhör projekt

Kv Violbacken
Boarea 120 m²
Tomtarea 535 m²
Pris
4 850 000 kr

Ett trivsamt hem att landa i – sutteränghus med allt på plats

Det här nybyggda sutteränghuset på 120 + 17 kvm passar dig som söker ett bekvämt, genomtänkt och stilrent hem att njuta av – med plats för både gemenskap och avkoppling. Med 4 rum och kök fördelade på två smart planerade våningar, får du ett boende som fungerar lika bra i vardagen som till helgens middagar och långfrukostar. Perfekt för dig som längtar efter ett nytt kapitel i livet.

Flytta till ett nybyggt hus i Habo

Letar du efter ett hem där naturen möter det bekväma vardagslivet? I Habo, bara en kort bilresa från Jönköping och Vätterns strand, bygger Myresjöhus moderna sutteränghus med utsikt över landskapet. Här har du möjlighet att flytta in i ett helt nytt hem – skräddarsytt för både lugn och liv.

Nära till natur, stad och vardagsservice

Att bo i Habo innebär att du får det bästa av två världar. Med närhet till skogar, sjöar och vandringsleder är det enkelt att leva ett aktivt liv utomhus – året runt. Samtidigt har du nära till skolor, affärer, restauranger och goda pendlingsmöjligheter till Jönköping. På bara 20 minuter med bil når du stadens puls, medan du hemma i Habo kan njuta av lugnet och närheten till naturen.

Ett sutteränghus – för dig som vill ha något extra

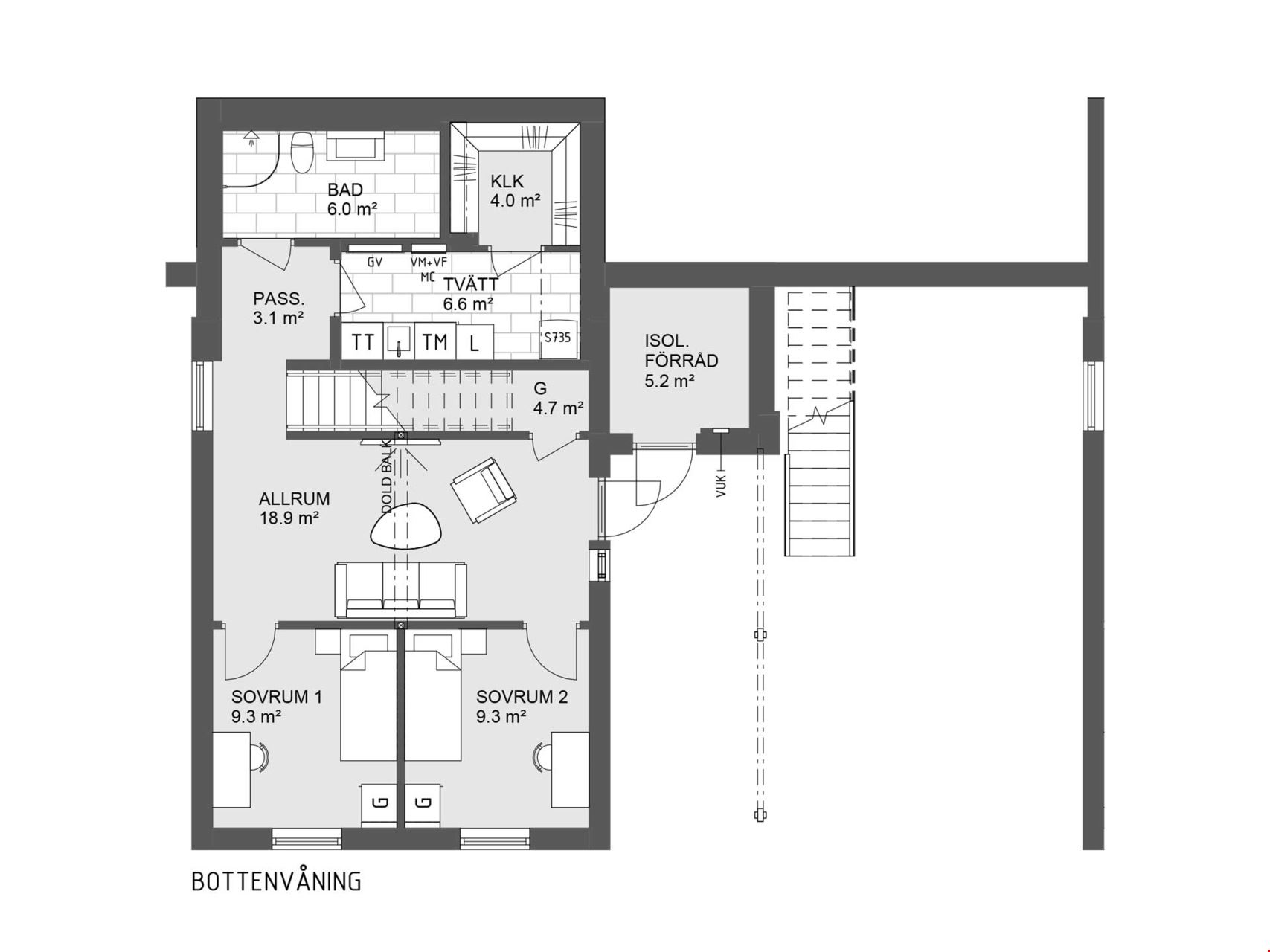
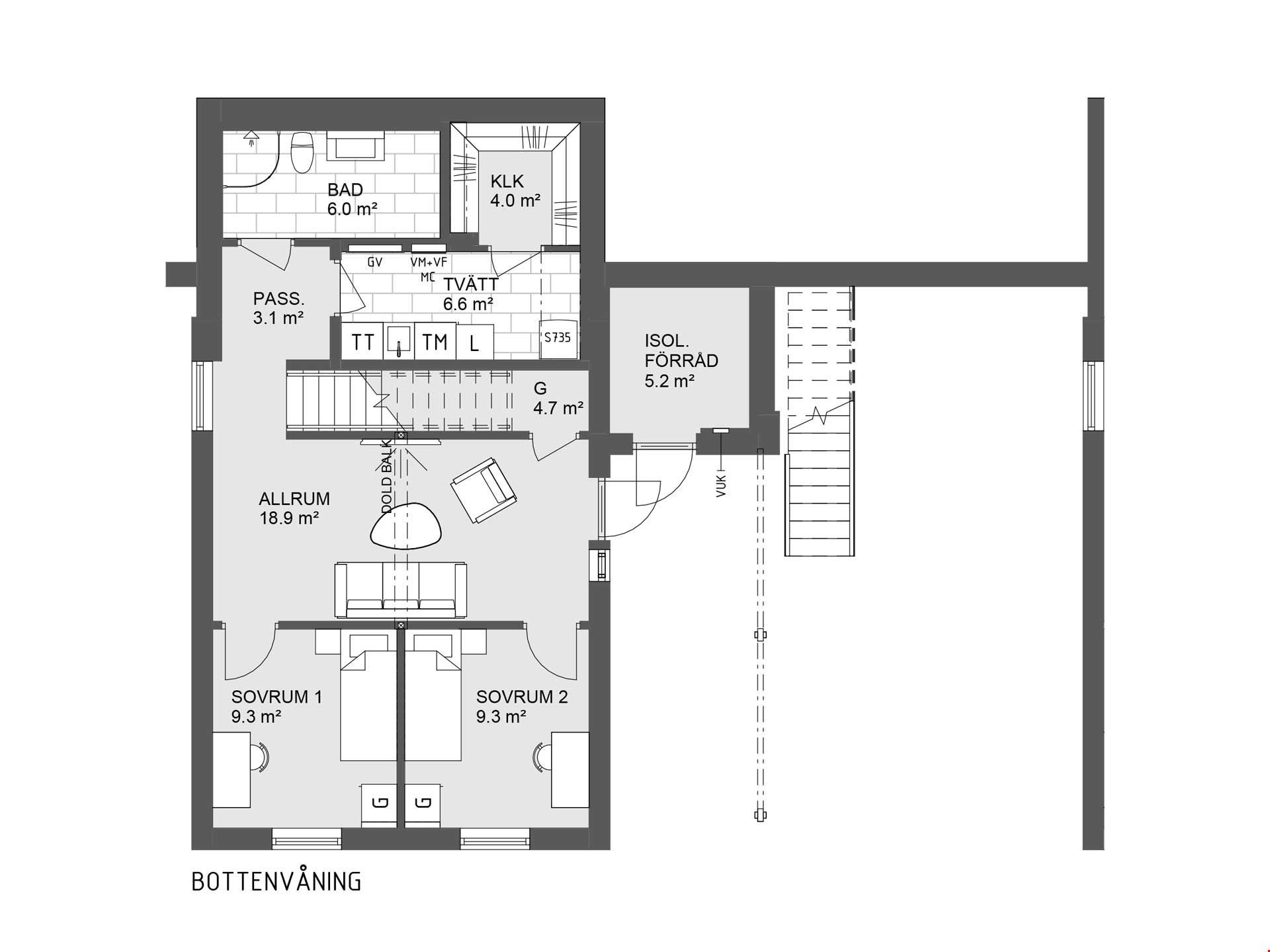
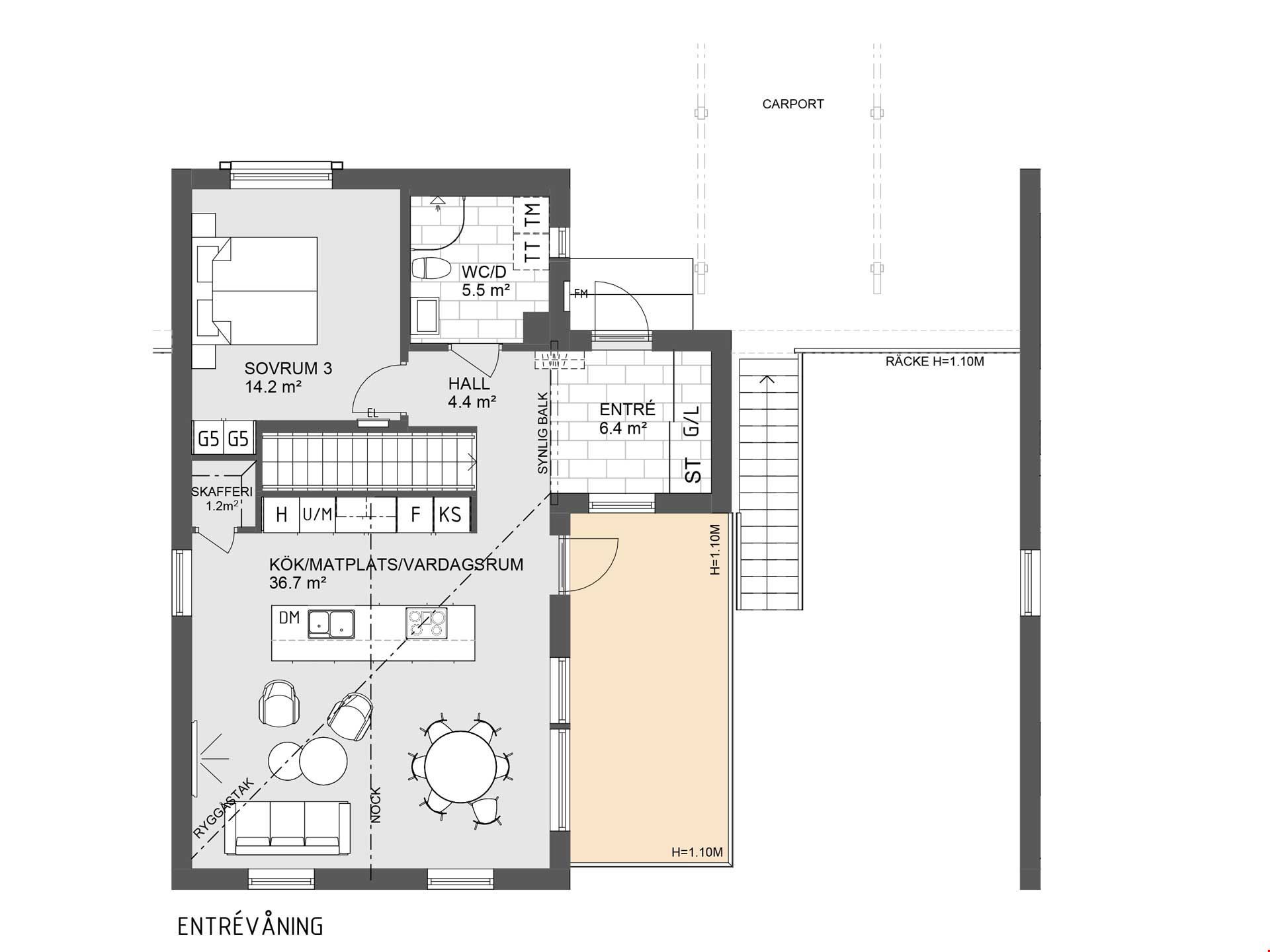
Det här huset fördelar sina 120 kvm på två genomtänkta plan. Övre plan bjuder på öppen planlösning mellan kök och vardagsrum, ett luftigt ryggåstak och stora fönster som ger ett härligt ljusinsläpp. Här finns också wc, skafferi och ett extra sovrum – perfekt som kontor eller gästrum. På det nedre planet ligger hemmets mer privata del: två sovrum, ett badrum, ett mysigt allrum samt en praktisk tvättstuga med klädkammare. Planlösningen gör huset lika bekvämt för en familj som för par som söker både gemenskap och avskildhet. 

En vardag som fungerar – och inspirerar

Huset är inte bara vackert – det är också funktionellt. Här finns gott om förvaring, ett isolerat förråd och egen carport. Allt i ett boende som är enkelt att underhålla, lätt att trivas i och där varje kvadratmeter används på bästa sätt.

Kanske är det här huset i Habo platsen där din hemlängtan blir verklighet? Varmt välkommen att lämna en intresseanmälan. 

Notera att bilderna är exempelbilder och att avvikelser kan förekomma. Vi förbehåller oss rätten att justera priser under pågående försäljning.

Planlösningar

Planlösning 1 av 2

Planlösning 2 av 2

Fler planlösningar

1 av 2

2 av 2

Villa-fakta

  • Antal rum 5 rum och kök
  • Säljstart 14 oktober
  • Pris 4 850 000 kr
  • Boarea 120 m²
  • Fastighets­beteckning Habo Bränninge 1:120
  • Inflyttning Hösten 2026
  • Tillhör projekt Kv Violbacken
Stefan Malm Säljare 070-525 65 57 010-434 12 66

Kontakta oss om du vill köpa det här huset

Intressanmälan

Fyll i dina kontaktuppgifter så återkommer vi till dig

Upptäck fler hem

i Kv Violbacken

8
Till salu
1
Sålda
Beteckning
Objektstyp
Boarea
Antal rum
Pris
Inflyttning
Status
Objektstyp Villa
Boarea 120 m²
Antal rum 5 rum och kök
Pris 4 850 000 kr
Inflyttning
Hösten 2026
Status
Till salu
Objektstyp Villa
Boarea 120 m²
Antal rum 5 rum och kök
Pris 4 750 000 kr
Inflyttning
Hösten 2026
Status
Till salu
Objektstyp Villa
Boarea 120 m²
Antal rum 5 rum och kök
Pris 4 800 000 kr
Inflyttning
Hösten 2026
Status
Till salu
Objektstyp Villa
Boarea 120 m²
Antal rum 5 rum och kök
Pris 4 800 000 kr
Inflyttning
Hösten 2026
Status
Till salu
Objektstyp Villa
Boarea 120 m²
Antal rum 5 rum och kök
Pris 4 850 000 kr
Inflyttning
Hösten 2026
Status
Till salu
Objektstyp Villa
Boarea 120 m²
Antal rum 5 rum och kök
Pris 4 850 000 kr
Inflyttning
Hösten 2026
Status
Till salu
Objektstyp Villa
Boarea 120 m²
Antal rum 5 rum och kök
Pris 4 750 000 kr
Inflyttning
Hösten 2026
Status
Till salu
Objektstyp Villa
Boarea 120 m²
Antal rum 5 rum och kök
Pris 4 850 000 kr
Inflyttning
Hösten 2026
Status
Till salu
Objektstyp Villa
Boarea 120 m² + 17 m²
Antal rum 5 rum och kök
Pris
Inflyttning
Hösten 2026
Status
Såld
Förmånliga lånevillkor, möjlighet till amorteringsfrihet och en service i särklass. Allt det här kan du som bygger ett Myresjöhus få tillsammans med vår Nyckelpartner till Nordea.
Läs mer
Boendeformer finns det gott om. Du kan till exempel hyra en lägenhet, äga en bostadsrätt eller själv äga hela ditt hem – till exempel ditt eget Myresjöhus. Är du ny på det här med att äga hus?
Läs mer
Här väntar en smidig husresa där vi tar hand om allt från val av husmodell till finansiering under byggtiden. Du betalar en handpenning när du skriver avtal – och resten vid tillträde.
Läs mer