1 / 8
Villa Till salu

Hus 19 - Älvringen 1

Sigtuna Stadsängar

Tillhör projekt

Kv Stadsängshöjden
Boarea 186 m²
Tomtarea 600 m²
Pris
8 150 000 kr

Bygg ett stort 2-planshus med balkong i Sigtuna

I ett vackert läge uppe på en höjd i populära Sigtuna Stadsängar kan du förverkliga din hemlängtan i ett generöst tvåplanshus om 186 kvm med 4-5 sovrum. Här säljs hus och tomt tillsammans i ett smidigt paket, med alla möjligheter att anpassa inredningsvalen efter din egen stil.

Härligt villaliv i modern stil 

Här erbjuder vi en tvåplansvilla om hela 186 kvadratmeter med ett luftigt och modernt uttryck, inspirerat av vår husfavorit Stångskär men anpassat efter just den här platsen. Huset välkomnar dig med en ljus entré som bjuder in till en väl tilltagen social yta där kök och vardagsrum samspelar perfekt. Från köket når du även klädvårdsutrymmet med praktisk groventré. På övervåningen väntar en privat oas med fyra rymliga sovrum, stort badrum och ett generöst allrum med balkong som även nås från ett av sovrummen. Master bedroom har i sin tur både walk-in-closet och fransk balkong. Behöver ni ett femte sovrum? Då kan vardagsrummet delas av för att skapa ett sådant.

Trygg och snabb husresa

På den här tomten finns redan ett beviljat bygglov för den här husmodellen. Det innebär kortare tid till inflyttning – men du har fortfarande stora möjligheter att sätta din egen prägel på huset i form av inredning och tillval. I ett nybyggt Myresjöhus bor du med låg driftskostnad och så gott som underhållsfritt de första 10 åren. Du betalar ingen fastighetsavgift i 15 år och får möjlighet till amorteringsfritt i upp till 5 år hos Nordea. Blir du OBOS-medlem får du även möjlighet till extra ekonomisk trygghet ifall din nuvarande bostad inte blir såld i tid.

Välkommen hem till Sigtuna

Här flyttar du bokstavligt talat in på ett toppenläge i Sigtuna Stadsängar, som siktar på att bli Sveriges mest hållbara stadsdel. Små trevliga kvarter, fint planterade parker och varierad bebyggelse – men också gott om service för en fungerande vardag. Du har nära till svalkande dopp i Mälaren, Sigtunas charmiga stadskärna och stora vackra skogsområden runt knuten.

Har du funderingar? Kontakta vår säljare så får du svar på dina frågor.

Notera att bilderna är exempelbilder och att avvikelser kan förekomma.

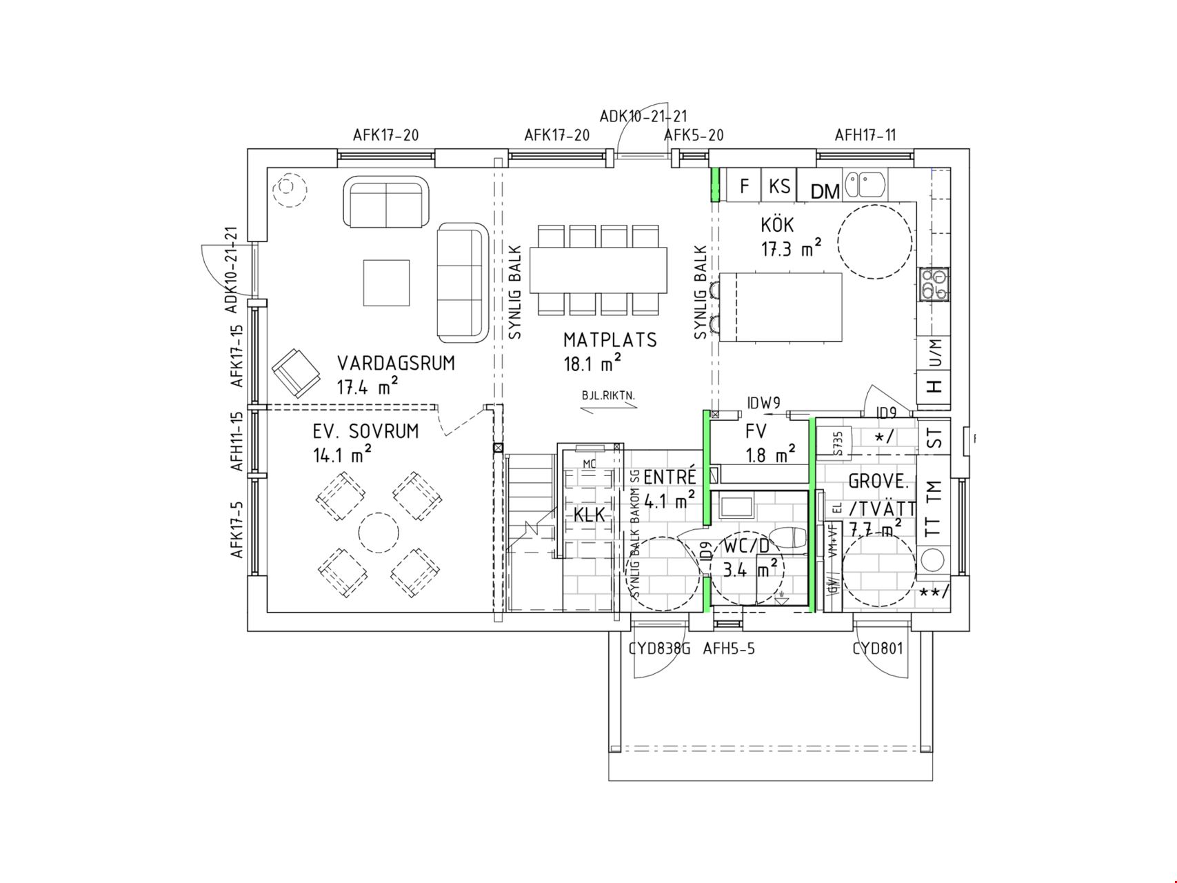
Planlösningar

Entréplan
Övervåning

Planlösning 1 av 2

Entréplan

Planlösning 2 av 2

Övervåning

Fler planlösningar

Entréplan

1 av 2

Entréplan

Övervåning

2 av 2

Övervåning

Villa-fakta

  • Antal rum 6-7 rum och kök
  • Pris 8 150 000 kr
  • Boarea 186 m²
  • Fastighets­beteckning Älvan 1
  • Tillhör projekt Kv Stadsängshöjden
Projektdokument

Uppskattad boendekostnad

kr

Kontantinsats

Skriv hur mycket av dina egna pengar som du vill lägga, minst 15 % av beloppet du köper bostaden för.

Bolåneränta per månad

Om du inte anger en egen ränta använder vi Nordeas 3-månaders snittränta. Se representativt exempel med effektiv ränta för ett bolån hos Nordea längre ned på sidan.

Amortering per månad

Lånar du över 70 % ska du betala tillbaka minst 2 % av lånebeloppet varje år. Är lånet på 50–70 % betalar du tillbaka minst 1 %.

Kontaktpersoner

Henrik Nyberg

Säljare

Lars Johanson

Säljare

Upptäck fler hem

i Kv Stadsängshöjden

6
Till salu
5
Sålda
1
Ej till salu
Beteckning
Objektstyp
Boarea
Antal rum
Pris
Inflyttning
Status
Objektstyp Villa
Boarea 186 m²
Antal rum 6-7 rum och kök
Pris 8 150 000 kr
Inflyttning
Status
Till salu
Objektstyp Villa
Boarea 186 m²
Antal rum 6-7 rum och kök
Pris 8 495 000 kr
Inflyttning
Inflyttningsklart
Status
Till salu
Objektstyp Villa
Boarea 186 m²
Antal rum 6-7 rum och kök
Pris 8 650 000 kr
Inflyttning
Status
Till salu
Objektstyp Villa
Boarea 186 m²
Antal rum 6-7 rum och kök
Pris 8 590 000 kr
Inflyttning
Status
Till salu
Objektstyp Villa
Boarea 186 m²
Antal rum 6-7 rum och kök
Pris 8 590 000 kr
Inflyttning
Status
Till salu
Objektstyp Villa
Boarea 186 m²
Antal rum 6-7 rum och kök
Pris 8 795 000 kr
Inflyttning
Inflyttningsklart
Status
Till salu
Objektstyp Villa
Boarea 186 m²
Antal rum 6-7 rum och kök
Pris
Inflyttning
Status
Såld
Objektstyp Villa
Boarea 186 m²
Antal rum 6-7 rum och kök
Pris
Inflyttning
Status
Såld
Objektstyp Villa
Boarea 144 m²
Antal rum 5-6 rum och kök
Pris
Inflyttning
Status
Såld
Objektstyp Villa
Boarea 144 m²
Antal rum 5-6 rum och kök
Pris
Inflyttning
Inflyttningsklart
Status
Såld
Objektstyp Villa
Boarea 186 m²
Antal rum 6-7 rum och kök
Pris
Inflyttning
Status
Såld
Objektstyp Villa
Boarea 144 m²
Antal rum 5-6 rum och kök
Pris 8.195.000 kr
Inflyttning
Inflyttningsklart
Status
Ej till salu

För dig som funderar på att bygga hus innebär det en extra trygghet att göra det tillsammans med en finansiellt stark koncern med lång erfarenhet och långsiktigt agerande. Myresjöhus erbjuder just detta. 

Läs mer

Att nybyggda hus är energisnåla hus är ingen nyhet, speciellt inte jämfört med äldre villor. Men visste du hur mycket det faktiskt kan skilja? Vi har undersökt saken.

Läs mer

Förmånliga lånevillkor, möjlighet till amorteringsfrihet och en service i särklass. Allt det här kan du som bygger ett Myresjöhus få i samarbete med vår Nyckelpartner till Nordea.

Läs mer

Sigtuna är Sveriges äldsta stad och historien har varit viktig vid planeringen av Sigtuna stadsängar. Stadsdelen siktar på att bli Sveriges mest hållbara och kännetecknas av små trevliga kvarter, fint planterade parker och varierad bebyggelse.

Läs mer