Smart 98+

Allt om detta hus
  • Bygghöjd 3,53 m
  • Byggarea 112 m2
  • Antal rum 3 sovrum

Arkitekt

Aleksandra Ohlson

Se alla planlösningar

Ett smart växa-hus med många möjligheter

Från start är det ett 1-planshus med öppna ytor, där den generösa fönstersättningen ger en nära kontakt med trädgården. De öppna sällskapsytorna kombineras med avskilda sovrum. Du har också möjlighet att välja till en extra toalett istället för klädkammaren vid de två mindre sovrummen.

Det här är i grunden samma hus som Smart 98, men med en inredningsbar övervåning som du kan du färdigställa allteftersom familjen växer. Vårt förslag rymmer sovrum, allrum och ett extra badrum – totalt 68 m². 

Precis som övriga Smart-hus erbjuds 98+ i två versioner med olika fönsterkonfiguration som medför olika stilmässiga uttryck. Här ser vi huset i modern tappning.

Detta hus är ett idéhus och visas endast på webben. Kontakta våra lokala kontor för en offert.

Produktbilderna innehåller tillval, se dem som inspirationsmaterial.

 

Planlösningar

Planlösning 1 av 2

Entrévåning - Katalogvariant

Rakt fram från entrén finns husets stora sovrum – avskilt från de andra två sovrummen på bottenvåningen. Däremellan finns vardagsrum, kök och matplats med öppen planlösning – och en förberedd yta för trappa. Planlösningen kan spegelvändas.

Planlösning 2 av 2

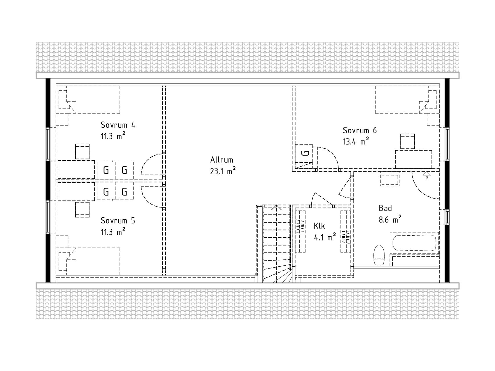
Övervåning - Förslag på planlösning

Här ser ni ett förslag på fördelningen av rummen på övervåningen – där det första du möts av är ett stort och luftigt allrum. I det här förslaget finns även tre sovrum på övervåningen och ett stort badrum.

Fler planlösningar

1 av 2

Entrévåning - Katalogvariant

2 av 2

Övervåning - Förslag på planlösning

Dina valmöjligheter

Små detaljer som piffar upp och stora tillval som gör dagarna bättre för hela familjen. Något som gör hemmet lite mer personligt. Lite mer perfekt för just dig. 

Bläddra i katalogen

Ett kontrakt, en kontakt

Ert viktigaste val

En fråga som är lika viktig som vilket hus du ska bygga är hur det ska byggas. På Myresjöhus erbjuder vi totalentreprenad till fast pris där din egen projektledare ingår. Nyckelfärdigt hus i ordets rätta bemärkelse!

Mer om totalentreprenad

3D-modell klassisk stil

3D-modell modern stil

VR-visning

Vårt trygghetspaket

Myresjöhus har byggt kvalitetshus sedan 1927 och är idag en del av bostadsutvecklaren OBOS. Detta innebär en trygghet i flera dimensioner för dig som husbyggare.

Läs mer

Frågor och svar

Håkan Thunberg Säljare, Myresjöhus

Nyfiken och vill veta mer?

Vad kostar det?

Hör av dig till oss så återkommer vi med en detaljerad kalkyl baserad på vad och vart du vill bygga.

Bli inspirerad!

Utforska alla våra husmodeller bekvämt hemma i soffan. I brevlådan inom några dagar!

Kontakta oss

Hur vill du att vi kontaktar dig?

Beställ katalog

Maxad inspiration till soffmyset

Hej!

Berätta för oss i vilken kommun du vill bygga. Vi kommer anpassa webbplatsen till din valda kommun för att förenkla för dig.