Smart 75+

Allt om detta hus
  • Bygghöjd 4,13 m
  • Byggarea 87 m2
  • Antal rum 1 sovrum

Arkitekt

Aleksandra Ohlson

Se alla planlösningar

Charmig villa som växer i takt med familjen

I sitt grundutförande har det här huset inredd entrévåning och är anpassat för en mindre familj. Samtidigt har du möjligheten att utöka boendeytan genom att bygga klart övervåningen med 57 extra kvadrat. Inspirationen till Smart 75+ kommer från traditionell svensk byggnadskonst, där man ofta höjde taket en aning för att skapa mer utrymme på övervåningen.

Entrén är rymlig med en förberedd yta för trappan upp till övervåningen. Planlösningen är öppen med en modern umgängesyta där kök, matplats och vardagsrum står i direkt anslutning till varandra. På entréplanet finns ett stort sovrum, medan övervåningen ger möjlighet till ytterligare fyra sovrum och ett allrum.

Precis som övriga Smart-hus erbjuds 75+ i två versioner med olika fönsterkonfiguration som medför olika stilmässiga uttryck. Här ser vi huset i den klassiska varianten tolkad i en lantlig stil.

Detta hus är ett idéhus och visas endast på webben. Kontakta våra lokala kontor för en offert.

Produktbilderna innehåller tillval, se dem som inspirationsmaterial.

 

Planlösningar

Planlösning 1 av 2

Entrévåning - Katalogvariant

Från entrén är det öppet in till vardagsrummet, där det finns en förberedd yta för trappa till övervåningen. Planlösningen är öppen mellan vardagsrum och kök – och intill köket finns husets stora sovrum. Planlösningen kan spegelvändas.

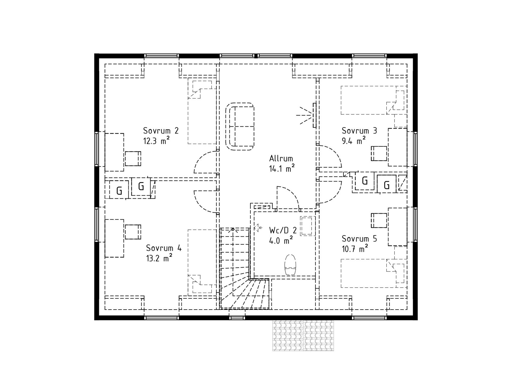
Planlösning 2 av 2

Övervåning - Katalogvariant

Här ser ni ett förslag på fördelningen av rummen på övervåningen – med ett allrum och en till toalett som det första du möts av när du kommer upp för trappan. På vardera sida av allrummet finns två sovrum.

Fler planlösningar

1 av 2

Entrévåning - Katalogvariant

2 av 2

Övervåning - Katalogvariant

Dina valmöjligheter

Små detaljer som piffar upp och stora tillval som gör dagarna bättre för hela familjen. Något som gör hemmet lite mer personligt. Lite mer perfekt för just dig. 

Bläddra i katalogen

Ett kontrakt, en kontakt

Ert viktigaste val

En fråga som är lika viktig som vilket hus du ska bygga är hur det ska byggas. På Myresjöhus erbjuder vi totalentreprenad till fast pris där din egen projektledare ingår. Nyckelfärdigt hus i ordets rätta bemärkelse!

Mer om totalentreprenad

3D-modell klassisk stil

3D-modell modern stil

VR-visning

Vårt trygghetspaket

Myresjöhus har byggt kvalitetshus sedan 1927 och är idag en del av bostadsutvecklaren OBOS. Detta innebär en trygghet i flera dimensioner för dig som husbyggare.

Läs mer

Frågor och svar

Hans-Olov Larsson Säljare, Myresjöhus

Nyfiken och vill veta mer?

Vad kostar det?

Hör av dig till oss så återkommer vi med en detaljerad kalkyl baserad på vad och vart du vill bygga.

Bli inspirerad!

Utforska alla våra husmodeller bekvämt hemma i soffan. I brevlådan inom några dagar!

Kontakta oss

Hur vill du att vi kontaktar dig?

Beställ katalog

Maxad inspiration till soffmyset

Hej!

Berätta för oss i vilken kommun du vill bygga. Vi kommer anpassa webbplatsen till din valda kommun för att förenkla för dig.