• Bygghöjd 6,09 m
  • Byggarea 115 m2
  • Antal rum 6 sovrum

Arkitekt

Ingemar Medlöw

Se alla planlösningar

Hudson

2–planshus med sadeltak, 197,4 m²

När jag ritade det här huset hade jag en större barnfamilj i tankarna, men det passar såklart lika bra för dig som bara vill ha rejält med plats. Hemmets hjärta är vardagsrummet, som mäter nästan trettio kvadratmeter. Runt det kan du sedan placera övriga utrymmen; kök, sovrum, matplats och uteplats efter solen, utsikten och gatans läge. 

Flexibiliteten var något jag ville få in på ett naturligt sätt i Hudson. Utvändigt har fönstren ett speciellt utseende med en horisontell, genomgående spröjs och många små rutor. Utseendet har vi fångat upp från New England där man lyfter upp fönstrets nedre halva för att öppna.

Produktbilderna innehåller tillval, se dem som inspirationsmaterial.

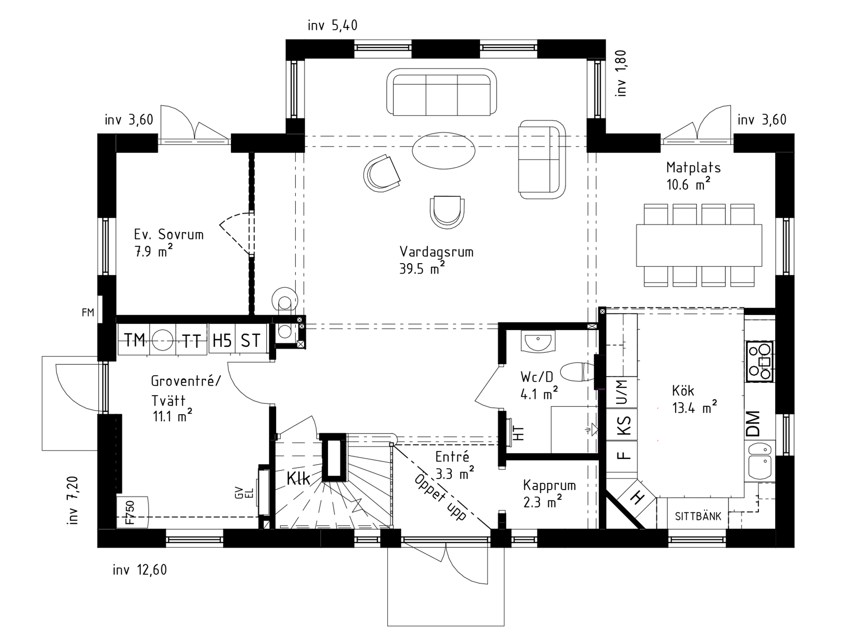
Planlösningar

Planlösning 1 av 6

Entrevåning - Katalogvariant

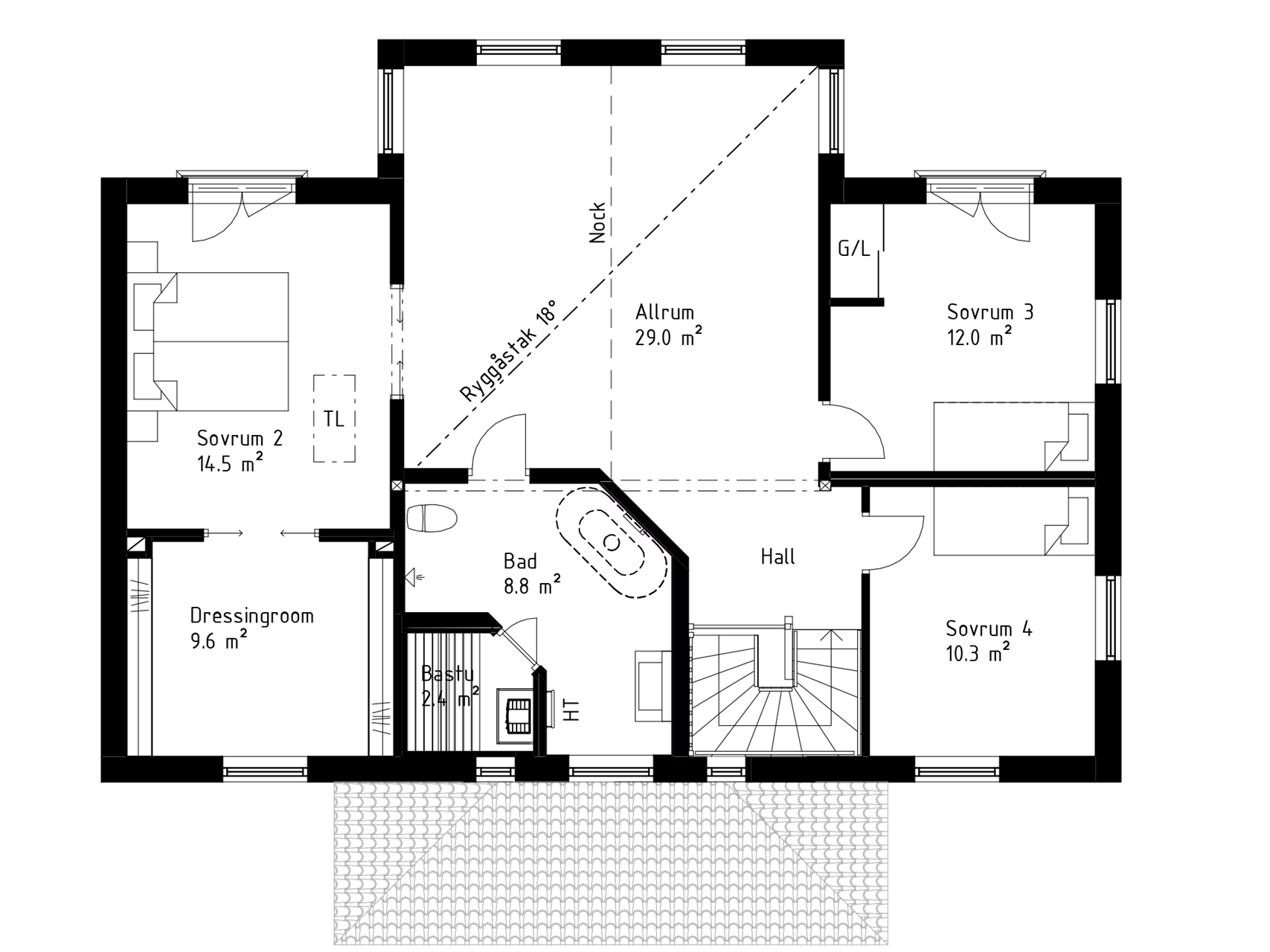
Planlösning 2 av 6

Övervåning - Katalogvariant

Planlösning 3 av 6

Entrévåning - Alternativ planlösning 1

Exempel på hur en kund gjort anpassningar för Hudson.

Planlösning 4 av 6

Övervåning - Alternativ planlösning 1

Exempel på hur en kund gjort anpassningar för Hudson.

Planlösning 5 av 6

Entrévåning - Alternativ planlösning 2

Exempel på hur en kund gjort anpassningar för Hudson.

Planlösning 6 av 6

Övervåning - Alternativ planlösning 2

Exempel på hur en kund gjort anpassningar för Hudson.

Känns det bara nästan rätt?

Då kan vi hjälpa dig att anpassa planlösningen för att den ska passa er perfekt.

Fler planlösningar

1 av 6

Entrevåning - Katalogvariant

2 av 6

Övervåning - Katalogvariant

3 av 6

Entrévåning - Alternativ planlösning 1

4 av 6

Övervåning - Alternativ planlösning 1

5 av 6

Entrévåning - Alternativ planlösning 2

6 av 6

Övervåning - Alternativ planlösning 2

3D-modell

Alexander Aronsson Säljare, Myresjöhus

Nyfiken och vill veta mer?

Vad kostar det?

Hör av dig till oss så återkommer vi med en detaljerad kalkyl baserad på vad och vart du vill bygga.

Bli inspirerad!

Utforska alla våra husmodeller bekvämt hemma i soffan. I brevlådan inom några dagar!

Kontakta oss

Hur vill du att vi kontaktar dig?

Beställ katalog

Maxad inspiration till soffmyset

Hus vi byggt

1 / 32

Dina valmöjligheter

Små detaljer som piffar upp och stora tillval som gör dagarna bättre för hela familjen. Något som gör hemmet lite mer personligt. Lite mer perfekt för just dig. 

Bläddra i katalogen

Ett kontrakt, en kontakt

Ert viktigaste val

En fråga som är lika viktig som vilket hus du ska bygga är hur det ska byggas. På Myresjöhus erbjuder vi totalentreprenad till fast pris där din egen projektledare ingår. Nyckelfärdigt hus i ordets rätta bemärkelse!

Mer om totalentreprenad
Mikael Wallenberg Säljare, Myresjöhus

Beställ katalog

Maxad inspiration till soffmyset

Hitta lediga tomter nära dig

Sök på t.ex. adress, område, stad, kommun, län, projekt-/objektnamn

Frågor och svar

Liknande hus

Hej!

Berätta för oss i vilken kommun du vill bygga. Vi kommer anpassa webbplatsen till din valda kommun för att förenkla för dig.