Morgondagg

Allt om detta hus
  • Bygghöjd 6,9 m
  • Byggarea 176 m2
  • Antal rum 3 sovrum

Arkitekt

Frida Andersson

Se alla planlösningar

Ett ljust & rymligt 2-planshus från Myresjöhus med fyra sovrum.

Morgondagg är ett tvåplanshus som karaktäriseras av stilren elegans och ett underbart ljusinsläpp. Njut av en social entrévåning, där köket ändå är ett rum i sin egen rätt, och rum för egentid en trappa upp.

Från första steget in i Morgondagg välkomnas du av vackra ljusinsläpp och en fantastisk känsla av rymd. Detta tack vare den öppna vyn mot det generösa glaspartiet i vardagsrummet och öppningen i bjälklaget upp mot övervåningen, som också hjälper till att binda ihop husets båda våningar till en härlig helhet.

Kök och vardagsrum ligger avskilt från varandra, men knyts ihop via de generöst glasade ytorna i respektive rum – med siktlinjer sinsemellan för ett vackert samspel. Morgondagg är ett hus som släpper in naturen utanför och låter dig njuta av dess konstverk i varje rum. På entrévåningen finns även ett sovrum som fungerar fint som arbetsrum eller gästrum, toalett med dusch och en härligt praktisk tvättstuga med groventré. En trappa upp väntar husets mer privata del med ett ytterst trevligt allrum, ett stort badrum och tre sovrum.

Produktbilderna innehåller tillval, se dem som inspirationsmaterial.

Planlösningar

Planlösning 1 av 2

Entrévåning - Modern stil

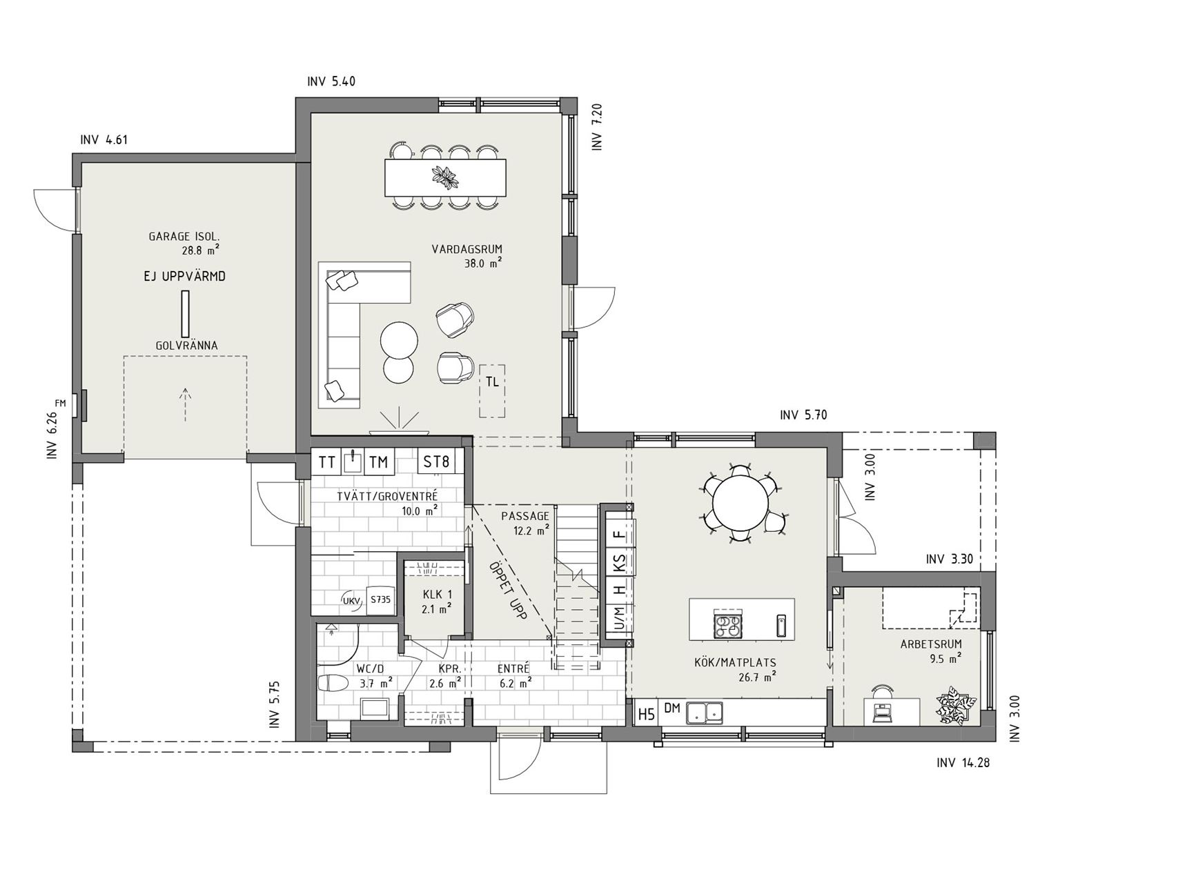
Från entrén möts du av ljuset från vardagsrummets öppna fönstersektioner. Och entréplanet knyts ihop med övervåningen via öppningen i bjälklaget. Köket ligger i anslutning till entrén, följt av ett arbetsrum.

Planlösning 2 av 2

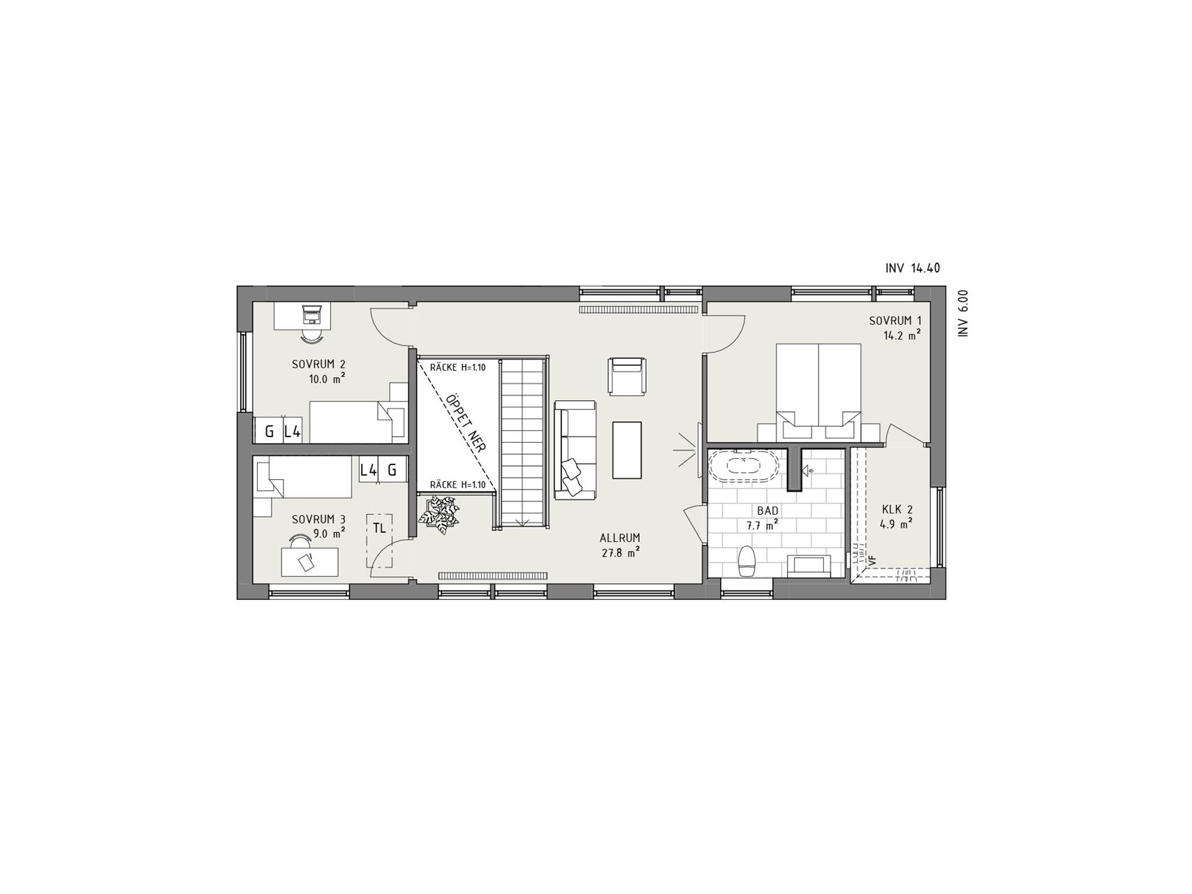
Övervåning - Modern stil

Här möts du av ett allrum, omgett av husets sovrum och badrum. Stora, öppna fönsterpartier vetter mot husets fram- och baksida. Via badrummet har du även utsikt över övervåningens ena kortsida.

Känns det bara nästan rätt?

Då kan vi hjälpa dig att anpassa planlösningen för att den ska passa er perfekt.

Fler planlösningar

1 av 2

Entrévåning - Modern stil

2 av 2

Övervåning - Modern stil

Visningar

Morgondagg

Visningshus

Boka din egen tid

Oknögatan 20, Rydebäck

Boka tid
Mattias Starlander Säljare, Myresjöhus

Nyfiken och vill veta mer?

Vad kostar det?

Hör av dig till oss så återkommer vi med en detaljerad kalkyl baserad på vad och vart du vill bygga.

Bli inspirerad!

Utforska alla våra husmodeller bekvämt hemma i soffan. I brevlådan inom några dagar!

Kontakta oss

Hur vill du att vi kontaktar dig?

Beställ katalog

Maxad inspiration till soffmyset

Morgondagg x Modern

Här ser vi hur de raka linjernas dramatik möter luft, ljus och öppna ytor i ett imponerande 2-planshus med vackra nivåskillnader och asymmetrisk fönstersättning. Kombinationen av svart fasad och varma, teakinspirerade, fönster skapar en nutida funkiskänsla. Trädgårdsvyn, där den lägre huskroppen skjuter ut ifrån den annars sammanhållna byggnadskroppen, bildar en vinkel som är unik för huset. Morgondagg i modern stil har ett pådockat garage, inramat av en pergola vid carporten. Här bjuds naturen in, där klätterväxter kan smita upp längs balkarna. Fönsterramen på fasadens entrésida är en modern detalj som skapar en vacker tredimensionell känsla.

Direkt när du kliver innanför dörren möts du av ljus och rymd
Frida Andersson, Arkitekt

Dina valmöjligheter

Små detaljer som piffar upp och stora tillval som gör dagarna bättre för hela familjen. Något som gör hemmet lite mer personligt. Lite mer perfekt för just dig. 

Bläddra i katalogen

Ett kontrakt, en kontakt

Ert viktigaste val

En fråga som är lika viktig som vilket hus du ska bygga är hur det ska byggas. På Myresjöhus erbjuder vi totalentreprenad till fast pris där din egen projektledare ingår. Nyckelfärdigt hus i ordets rätta bemärkelse!

Mer om totalentreprenad

Uppskattad energianvändning

Här kan du få en uppfattning om hur energisnålt ett nytt Myresjöhus faktiskt är. Fyll i din kommun för att se uppskattad energianvändning i ditt drömhus just där du vill bygga.

När du väljer en plats du vill bygga på så anpassar vi webbplatsen för att ge dig mer relevant information. Du kan byta plats när som helst.

Energianvändning

(värme & varmvatten)

7 300

kWh/år
Malmö (grundval)

Total energi­användning*

(inklusive hushållsel)

13 200

kWh/år
Energiklass

C

Bo billigare i nybyggt hus

Idag tror många att de inte har råd att bygga ett nytt hus – och allt för många vet heller inte hur mycket billigare det faktiskt är att bo i ett nybyggt hus.

80% lägre energiförbrukning i ett nybyggt Myresjöhus

Att nybyggda hus är energisnåla hus är ingen nyhet, speciellt inte jämfört med äldre villor. Men visste du hur mycket det faktiskt kan skilja?

Spara ännu mer med solceller

Genom att utrusta ditt Myresjöhus med rätt antal solceller kan du nästan bli helt självförsörjande på el. Ett tillval som lönar sig i längden.

Hitta tomt att bygga på

Sök på t.ex. adress, område, stad, kommun, län, projekt-/objektnamn

Liknande hus

Bli OBOS-medlem

Vi på Myresjöhus är en del av OBOS, en av Nordens största bostadsutvecklare. Som OBOS-medlem får du förtur till våra bostäder, tomter och inflyttningsklara hus. Inte nog med förtur, så får du även fina förmåner för vardagsliv och vardagslyx!

Läs mer

Frågor och svar

Hej!

Berätta för oss i vilken kommun du vill bygga. Vi kommer anpassa webbplatsen till din valda kommun för att förenkla för dig.