• Bygghöjd 5,88 m
  • Byggarea 315 m2
  • Antal rum 4 sovrum

Arkitekt

Aleksandra Ohlson

Se alla planlösningar

Cogito

Detta är ett stort och lyxigt hus för barnfamiljer som önskar det lilla extra. Siktlinjen från entrén, genom den inglasade innergården, avslutas ute i trädgården och ger en känsla av oändlighet.

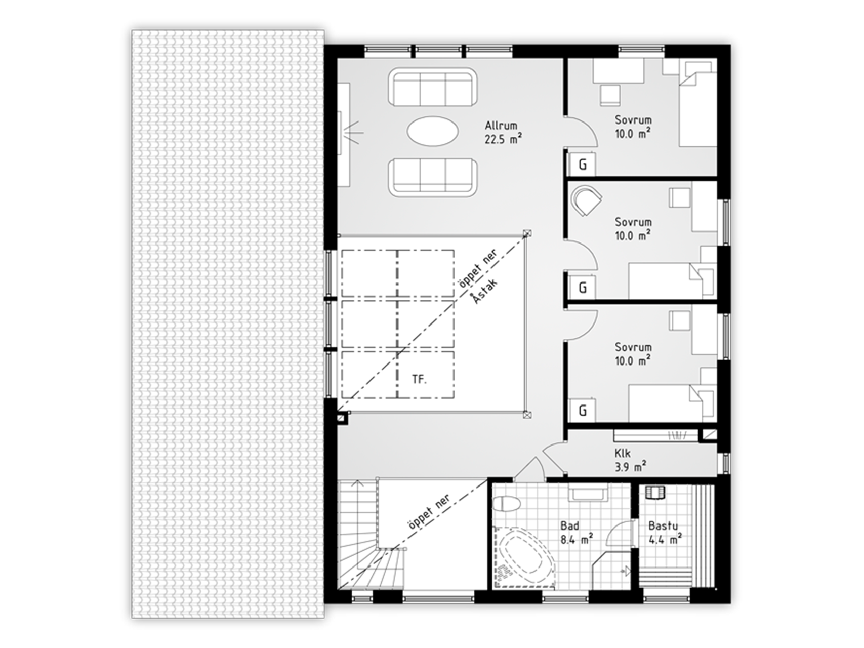
Föräldrasovrummet ligger avskilt på entrévåningen, har eget badrum och dressingroom i fil. På övervåningen finns ytterligare tre sovrum och där omsluts innergården av räcke. Det ger rymd, direktkontakt med atriumets grönska och kanske en möjlighet att plocka apelsiner från trädets toppar.

Detta hus är ett idéhus och visas endast på webben. Kontakta våra lokala kontor för en offert.

Planlösningar

Planlösning 1 av 2

Förslag på planlösning - Entrévåning

Detta hus är ett idéhus och visas endast på webben. Kontakta våra lokala kontor för en offert.

Planlösning 2 av 2

Förslag på planlösning - Övervåning

Detta hus är ett idéhus och visas endast på webben. Kontakta våra lokala kontor för en offert.

Fler planlösningar

1 av 2

Förslag på planlösning - Entrévåning

2 av 2

Förslag på planlösning - Övervåning

Kontakta oss

Vi ser fram emot att höra från dig!

Hur vill du att vi kontaktar dig?

Hej!

Berätta för oss i vilken kommun du vill bygga. Vi kommer anpassa webbplatsen till din valda kommun för att förenkla för dig.