• Bygghöjd 3,51 m
  • Byggarea 146 m2
  • Antal rum 4 sovrum

Arkitekt

Aleksandra Ohlson

Se alla planlösningar

Dalby

1,5-planshus, 188,9 m²

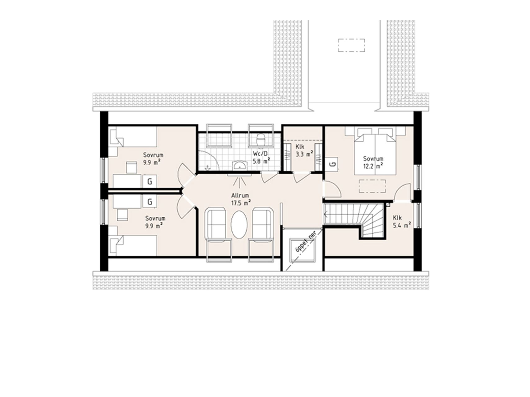
Mångsidig familjevilla med lyxig, separat föräldraflygel med plats för alla bekvämligheter. Det centrala köket på entrévåningen utgör en naturlig mittpunkt i denna ljusvänliga husdesign som präglas av stora fönsterpartier mot trädgården samt generösa takfönster. Via den rymliga entréhallen leder trappan upp till en ljus övervåning med allrum, tre sovrum, badrum och klädkammare. Dalby kan även byggas med träfasad och utan flygel om du vill spara in på ytorna.

Detta hus är ett idéhus och visas endast på webben. Kontakta våra lokala kontor för en offert.

Planlösningar

Planlösning 1 av 2

Förslag på planlösning - Entrévåning

Detta hus är ett idéhus och visas endast på webben. Kontakta våra lokala kontor för en offert.

Planlösning 2 av 2

Förslag på planlösning - Övervåning

Detta hus är ett idéhus och visas endast på webben. Kontakta våra lokala kontor för en offert.

Fler planlösningar

1 av 2

Förslag på planlösning - Entrévåning

2 av 2

Förslag på planlösning - Övervåning

Kontakta oss

Vi ser fram emot att höra från dig!

Hur vill du att vi kontaktar dig?

Hej!

Berätta för oss i vilken kommun du vill bygga. Vi kommer anpassa webbplatsen till din valda kommun för att förenkla för dig.