• Bygghöjd 3,21 m
  • Byggarea 140 m2
  • Antal rum 4 sovrum

Arkitekt

Aleksandra Ohlson

Se planlösning

Mölle

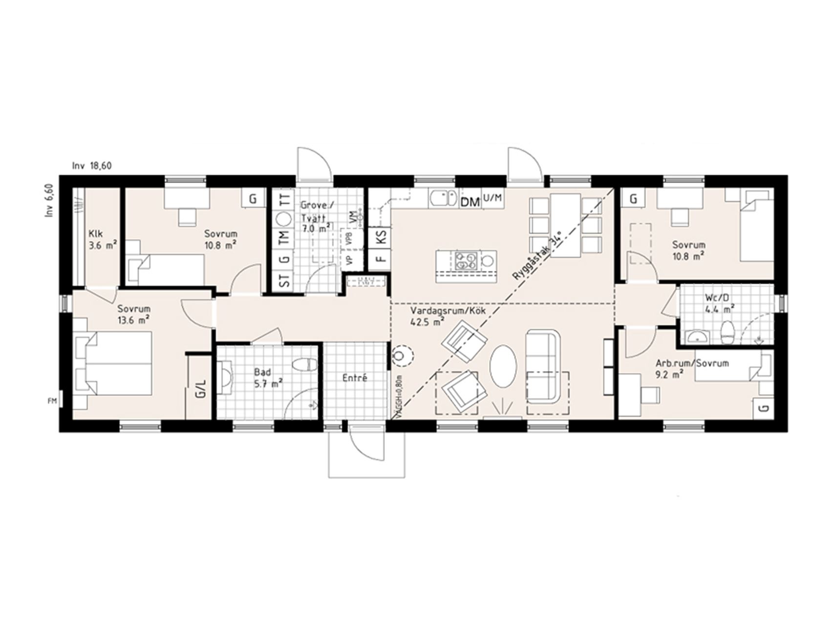
1-planshus med sadeltak, 122,8 m²

Mölle är ritad med inspiration från en klassisk sydsvensk länga med hög takvinkel och kort taksprång. Huset passar småbarnsfamiljen som vill bo i ett mysigt, mindre hus men som ändå har plats för besökande gäster. I ena delen av längan hittar du föräldrasovrummet med klädkammare. På motsatt sida finns en avskild del med två separata sovrum samt WC. I mitten finns den naturliga umgängesdelen med vardagsrum, kök, matplats och altandörr.

Detta hus är ett idéhus och visas endast på webben. Kontakta våra lokala kontor för en offert.

Planlösning

Förslag på planlösning - Entrévåning

Detta hus är ett idéhus och visas endast på webben. Kontakta våra lokala kontor för en offert.

Kontakta oss

Vi ser fram emot att höra från dig!

Hur vill du att vi kontaktar dig?

Hej!

Berätta för oss i vilken kommun du vill bygga. Vi kommer anpassa webbplatsen till din valda kommun för att förenkla för dig.