• Bygghöjd 3,526 m
  • Byggarea 202 m2
  • Antal rum 4 sovrum

Arkitekt

Aleksandra Ohlson

Se alla planlösningar

Skanör

De plåtklädda kuporna på fasaden och det annorlunda burspråket på gaveln ger detta hus ett modernt utseende.

Kök, vardagsrum samt matplats har kontakt och skiljs endast åt av en halvvägg. De stora skjutdörrarna i glas mot trädgården ger förutom ljus också känslan av att syrenerna flyttat in i umgängesdelen. Huset har totalt fyra sovrum, tre av dessa ligger på övervåningen varav ett större med en klädkammare. Där finns även ett allrum med fantastiskt ljus tack vare kupans generösa fönster. Skanör gör sig i så väl puts som träfasad.

Detta hus är ett idéhus och visas endast på webben. Kontakta våra lokala kontor för en offert.

Planlösningar

Planlösning 1 av 2

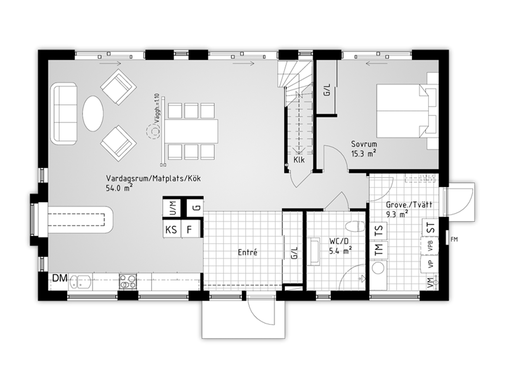
Förslag på planlösning - Entrévåning

Detta hus är ett idéhus och visas endast på webben. Kontakta våra lokala kontor för en offert.

Planlösning 2 av 2

Förslag på planlösning - Övervåning

Detta hus är ett idéhus och visas endast på webben. Kontakta våra lokala kontor för en offert.

Fler planlösningar

1 av 2

Förslag på planlösning - Entrévåning

2 av 2

Förslag på planlösning - Övervåning

Kontakta oss

Vi ser fram emot att höra från dig!

Hur vill du att vi kontaktar dig?

Hej!

Berätta för oss i vilken kommun du vill bygga. Vi kommer anpassa webbplatsen till din valda kommun för att förenkla för dig.