• Bygghöjd 5,068 m
  • Byggarea 195 m2
  • Antal rum 3 sovrum

Arkitekt

Pär Svensson

Se alla planlösningar

Skärgården

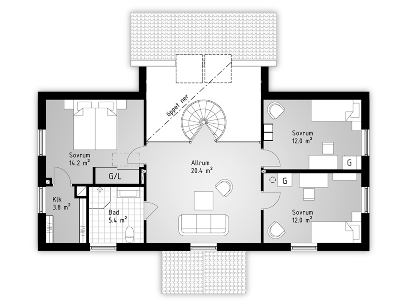
Husets form har sitt ursprung i gamla tiders parstuga, men bakom den traditionella fasaden finns ett modernt inre. Det syns direkt när du kommer in och ser husets centrum – en öppen spiraltrappa.

Kök, vardagsrum samt matsal ligger i fil och har en totalyta som motsvarar en hyreslägenhet. På övervåningen finns förutom tre sovrum, ett allrum, ett badrum också en klädkammare. Två takfönster ger övervåningen ljusinsläpp av stora mått och är, via den öppna ytan mellan våningarna, bidragande till den ljusa entrévåningen.

Detta hus är ett idéhus och visas endast på webben. Kontakta våra lokala kontor för en offert.

Planlösningar

Planlösning 1 av 2

Förslag på planlösning - Entrévåning

Detta hus är ett idéhus och visas endast på webben. Kontakta våra lokala kontor för en offert.

Planlösning 2 av 2

Förslag på planlösning - Övervåning

Detta hus är ett idéhus och visas endast på webben. Kontakta våra lokala kontor för en offert.

Fler planlösningar

1 av 2

Förslag på planlösning - Entrévåning

2 av 2

Förslag på planlösning - Övervåning

Kontakta oss

Vi ser fram emot att höra från dig!

Hur vill du att vi kontaktar dig?

Hej!

Berätta för oss i vilken kommun du vill bygga. Vi kommer anpassa webbplatsen till din valda kommun för att förenkla för dig.