Villa Växa

  • Bygghöjd 3,38 m
  • Byggarea 126 m2
  • Antal rum 2 sovrum

Arkitekt

Aleksandra Ohlson

Se alla planlösningar

Villa Växa

1-planshus med sadeltak och inredningsbar övervåning, 110,9 m²

Flexibel villa för den växande familjen eller dig som behöver större ytor för till exempel hobbyverksamhet. Den karakteristiska entrén är försedd med ett stort fönsterparti för maximalt ljusinsläpp. Det stora vardagsrummet kombineras med smart planerad köksdel i anslutning till grovkök. Övervåningen har gott om plats för ytterligare tre sovrum plus badrum.

Detta hus är ett idéhus och visas endast på webben. Kontakta våra lokala kontor för en offert.

Planlösningar

Planlösning 1 av 2

Förslag på planlösning - Entrévåning

Detta hus är ett idéhus och visas endast på webben. Kontakta våra lokala kontor för en offert.

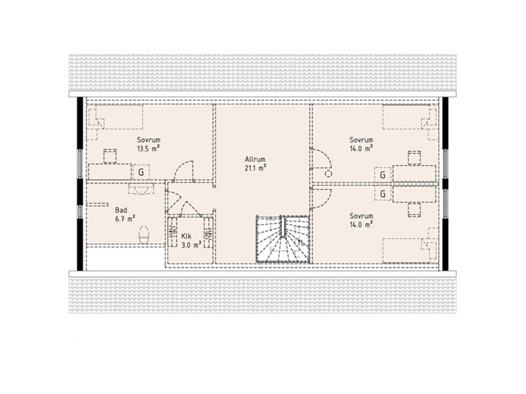
Planlösning 2 av 2

Förslag på planlösning - Övervåning

Detta hus är ett idéhus och visas endast på webben. Kontakta våra lokala kontor för en offert.

Fler planlösningar

1 av 2

Förslag på planlösning - Entrévåning

2 av 2

Förslag på planlösning - Övervåning

Kontakta oss

Vi ser fram emot att höra från dig!

Hur vill du att vi kontaktar dig?

Hej!

Berätta för oss i vilken kommun du vill bygga. Vi kommer anpassa webbplatsen till din valda kommun för att förenkla för dig.