Glimma

Allt om detta hus
  • Bygghöjd 3 m
  • Byggarea 100 m2
  • Antal rum 2 sovrum

Arkitekt

Frida Andersson

Se alla planlösningar

Ett fritidshus med 1-plan som vackert smälter in i naturen.

Glimma x Skog är ett fritidshus som blir en naturlig del av sin omgivning.

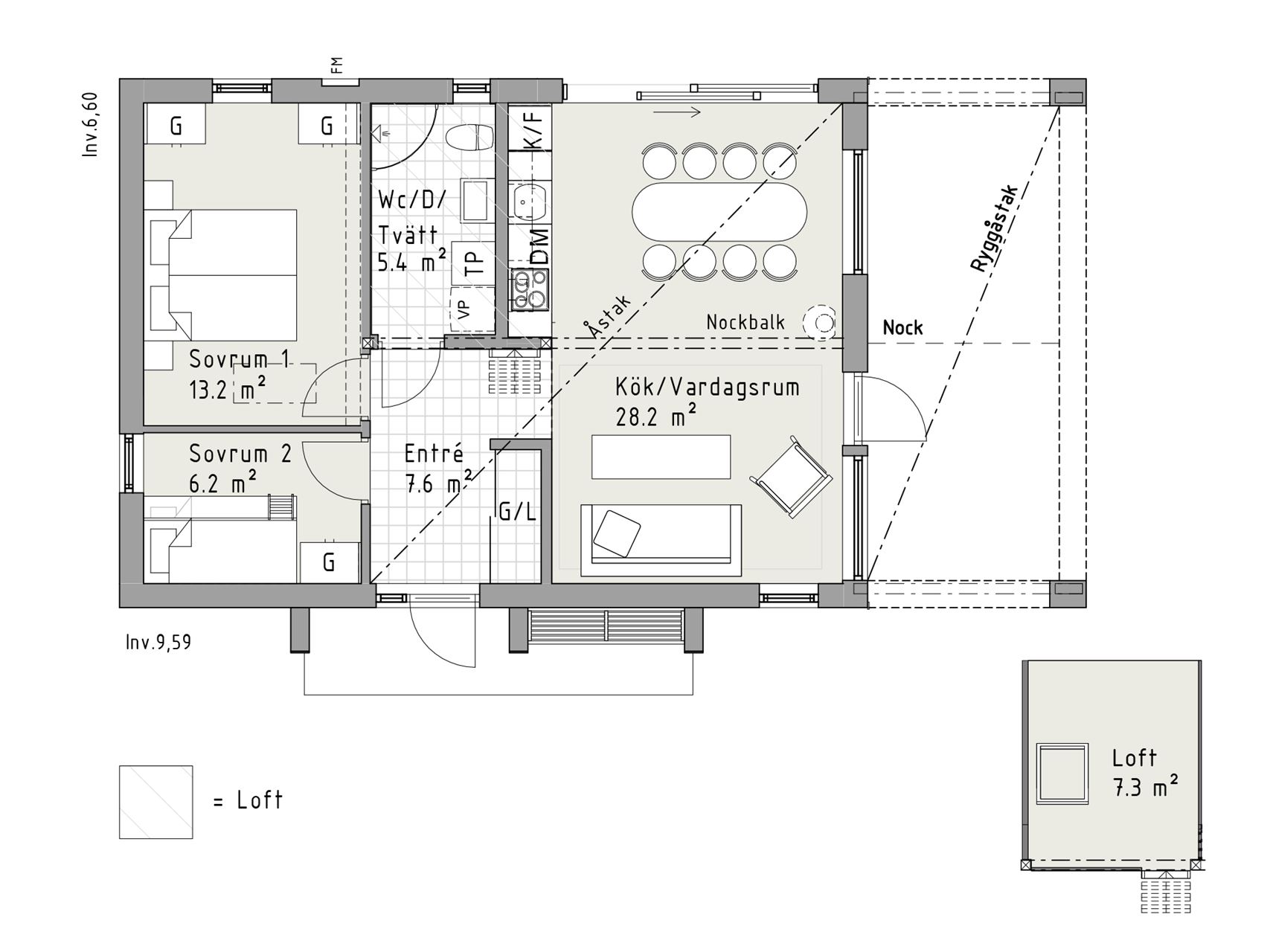
Direkt när du kliver innanför dörren möts du av ljuset från takfönstret på loftet. Ryggåstaket adderar till en härlig känsla av rymd i de sociala delarna av huset. I den första zonen finns sovrum och badrum. I den andra zonen hittar du den gemensamma ytan med kök och vardagsrum i öppen planlösning. Loftet binder samman entrén med vardagsrum/kök – för att skapa möjlighet till många sovplatser på få kvadratmeter.

Produktbilderna innehåller tillval, se dem som inspirationsmaterial.

Planlösningar

Planlösning 1 av 4

Planlösning

Planlösning 2 av 4

Planlösning 3 av 4

Planlösning 4 av 4

Fler planlösningar

1 av 4

Planlösning

2 av 4

3 av 4

4 av 4

Marie Jarl Säljare, Myresjöhus

Nyfiken och vill veta mer?

Vad kostar det?

Hör av dig till oss så återkommer vi med en detaljerad kalkyl baserad på vad och vart du vill bygga.

Bli inspirerad!

Utforska alla våra husmodeller bekvämt hemma i soffan. I brevlådan inom några dagar!

Kontakta oss

Hur vill du att vi kontaktar dig?

Beställ katalog

Maxad inspiration till soffmyset

Bjud in naturen.

Du känner morgondaggen mot dina fötter när du går ut för att hämta tidningen. En fågel får trädkronan intill huset att ruskas till. Sedan blir det tyst igen. Här kan du njuta av din alldeles egen paus.

Moderna detaljer

Husets branta sadeltak, med de slimmande takfötterna och raka linjerna, ger huset ett nutida uttryck. Det förstärks ytterligare tack vare de generösa, ospröjsade fönstren.

Platser att umgås

Genom att förlänga taket ges möjligheten till en inbjudande uteplats – som hjälper till att förlänga utesäsongen. Den integrerade sittbänken bryter av husets entréfasad. Bänken ger både extra plats att umgås såväl som för att bara sitta ner en stund och ta in allt som omger dig.

Öppna upp

Husets gavel är generöst uppglasad med härliga fönsterpartier och en helglasad altandörr. På baksidan, vid husets långsida, har du möjligheten att välja till ett hajomparti som öppnar upp mot trädgården och bjuder in naturen.

Hitta tomt till ditt fritidshus

Sök på t.ex. adress, område, stad, kommun, län, projekt-/objektnamn

Bli OBOS-medlem

Få fina rabatter på allt från färg och inredning till nöjen för hela familjen, få extra trygghet vid bostadsaffären – och förtur i kön till våra tomter. Bara för OBOS-medlemmar.

Läs mer om OBOS Medlem

Hej!

Berätta för oss i vilken kommun du vill bygga. Vi kommer anpassa webbplatsen till din valda kommun för att förenkla för dig.