Stjärnfall

Allt om detta hus
  • Bygghöjd 3,1 m
  • Byggarea 146 m2
  • Antal rum 4 sovrum

Arkitekt

Frida Andersson

Se alla planlösningar

En klassisk 1-plan fjällstuga med flexibla möjligheter.

Stjärnfall x Fjäll är ett fritidshus från Myresjöhus med plats för både umgänge och avskild återhämtning. Nära naturen, såväl inomhus som utomhus.

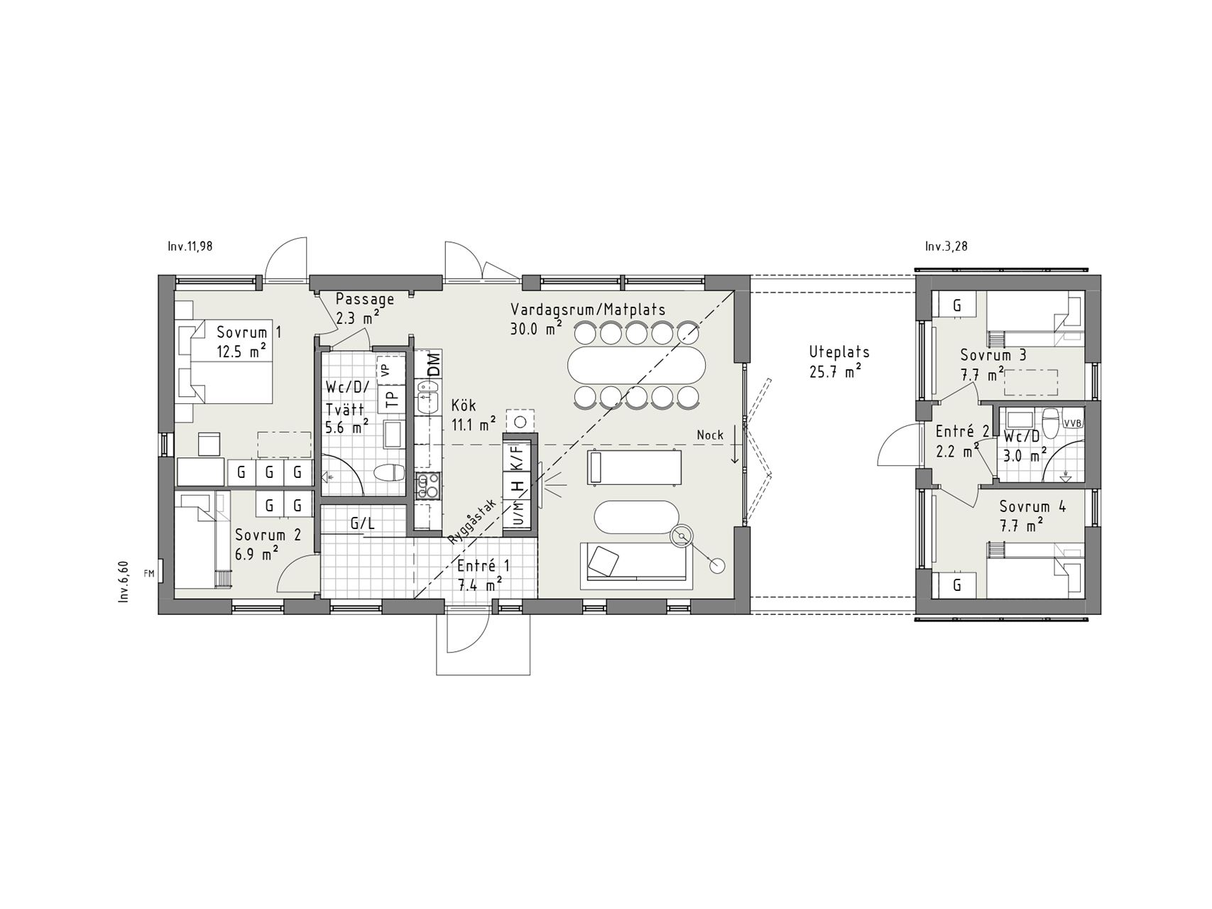
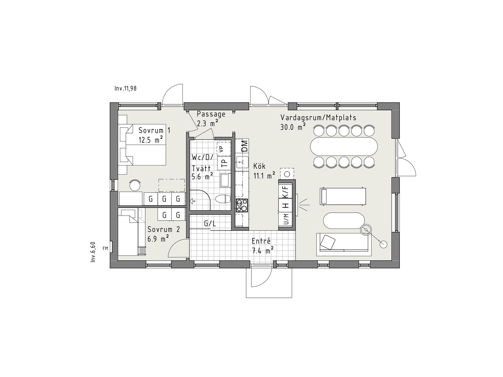
Interiören i husets huvuddel formas kring kök och badrum. Tack vare de stora fönsterpartierna tas allt naturligt ljus om hand på bästa sätt så att intrycket blir ljust, rymligt och luftigt. Samtidigt fungerar kökets högskåp som avdelare och skapar rumskänsla utan att det behövs väggar. Tvärs över den flexibla uterums-/ uteplatslösningen finns gästdelen. Den rymmer två sovrum samt egen toalett och bad. Utmärkt när det kommer gäster, när barnen blir äldre, eller när man vill hyra ut periodvis.

Produktbilderna innehåller tillval, se dem som inspirationsmaterial.

Planlösningar

Planlösning 1 av 4

Planlösning inkl. gäststuga

Planlösning 2 av 4

Planlösning

Planlösning 3 av 4

Planlösning framsida och baksida

Planlösning 4 av 4

Fasad sidor

Fler planlösningar

1 av 4

Planlösning inkl. gäststuga

2 av 4

Planlösning

3 av 4

Planlösning framsida och baksida

4 av 4

Fasad sidor

Anders Stenborg Säljare, Myresjöhus

Nyfiken och vill veta mer?

Vad kostar det?

Hör av dig till oss så återkommer vi med en detaljerad kalkyl baserad på vad och vart du vill bygga.

Bli inspirerad!

Utforska alla våra husmodeller bekvämt hemma i soffan. I brevlådan inom några dagar!

Kontakta oss

Hur vill du att vi kontaktar dig?

Beställ katalog

Maxad inspiration till soffmyset

Plats för lugn och lekfullhet.

Ny dag, nya skidäventyr. Och sedan, ny avkoppling. Eller, varför inte - för en dag - bara avkoppling? Öppna upp uterummet och njut av snön från första parkett, under tak. Här kan du njuta av din alldeles egen paus.

Fjällstuga i modern tappning

Precis som man önskar och tänker sig en riktig fjällstuga. I en enkel grunddesign ryms typiska detaljer som småspröjsade vita fönster i en mörkare fasad. Men här finns även moderna lösningar som gör huset praktiskt och bekvämt året runt.

Allt under samma tak

Huset består av en huvudbyggnad och gästdel. Dessa är sammankopplade med ett tak men i övrigt fristående från varandra, vilket ger möjlighet till både umgänge och avskildhet. Plats finns för både gäster och de äldre barnen. Men även för hyresgäster, om man så önskar.

Ute i alla väder

För de solgnistrande vinterdagarna öppnar du enkelt upp husets uterum till en uteplats med tak där ni tar igen er efter dagens aktiviteter. Blir det oväder går det snabbt att dra igen de stora fönsterluckorna och uteplatsen har blivit ett mysigt uterum.

Hitta tomt till ditt fritidshus

Sök på t.ex. adress, område, stad, kommun, län, projekt-/objektnamn

Bli OBOS-medlem

Få fina rabatter på allt från färg och inredning till nöjen för hela familjen, få extra trygghet vid bostadsaffären – och förtur i kön till våra tomter. Bara för OBOS-medlemmar.

Läs mer om OBOS Medlem

Frågor och svar

Hej!

Berätta för oss i vilken kommun du vill bygga. Vi kommer anpassa webbplatsen till din valda kommun för att förenkla för dig.