Stjärnfall

Allt om detta hus
  • Bygghöjd 3,1 m
  • Byggarea 146 m2
  • Antal rum 4 sovrum

Arkitekt

Frida Andersson

Se alla planlösningar

Ett modernt 1-plan fritidshus på klassisk bas.

Den omedelbara upplevelsen när du bygger ett nyckelfärdigt fritidshus hos Myresjohus är harmoni och lycka. Något som även Stjärnfall x Skog kommunicerar tack vare både de stora ljusinsläppen och den öppna planlösningen.

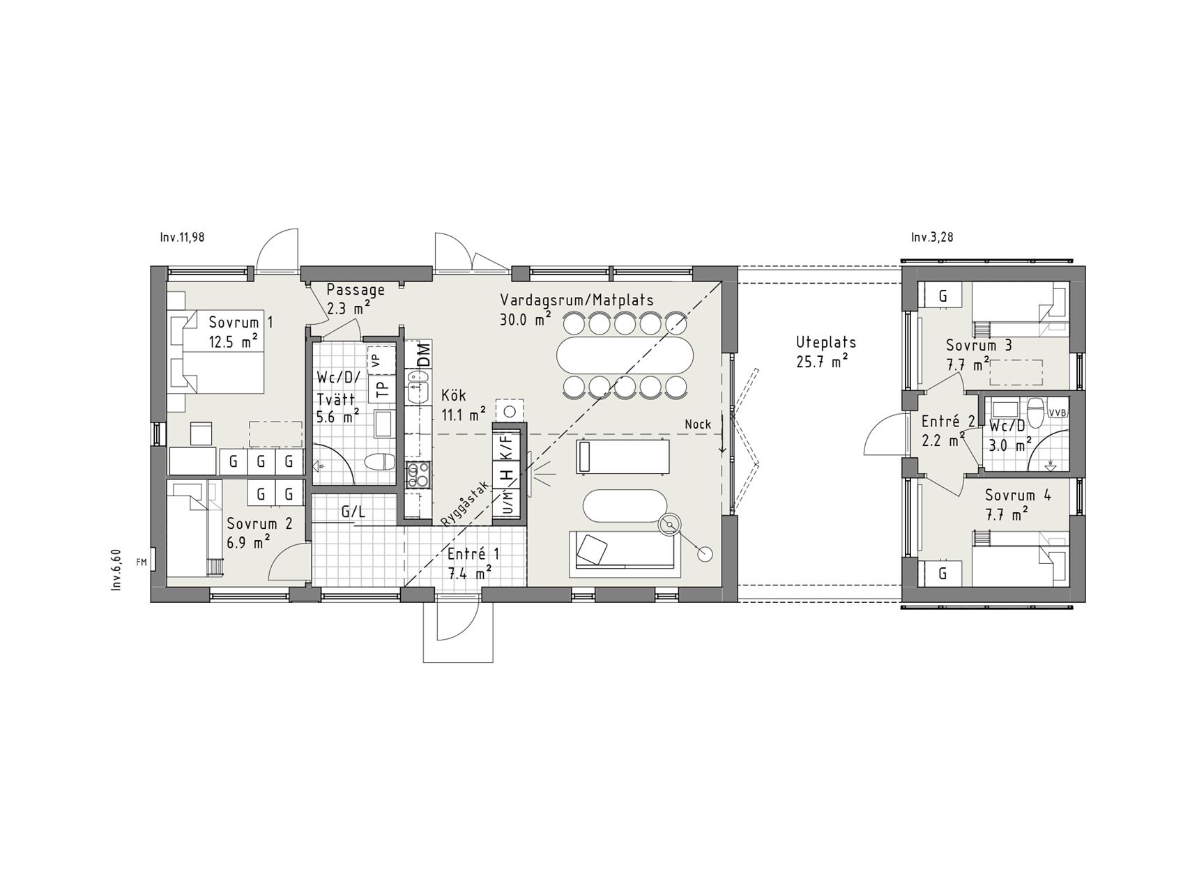
Kök och badrum utgör planlösningens mitt. Entrén leder vidare till köket och redan när du öppnar ytterdörren möts du av vyn ut genom baksidans stora glaspartier. Kökets högskåp fungerar även som avgränsare och delar av rummet utan att stänga in. Gästdelen, som är kopplad via taket men i övrigt fristående, har två sovrum och eget badrum. Den fungerar därför i princip som ett eget boende, för gäster, ungdomar eller till uthyrning.

Produktbilderna innehåller tillval, se dem som inspirationsmaterial.

Planlösningar

Planlösning 1 av 4

Planlösning inkl. gäststuga

Planlösning 2 av 4

Planlösning

Planlösning 3 av 4

Fasad fram och bak

Planlösning 4 av 4

Fasad sidor

Fler planlösningar

1 av 4

Planlösning inkl. gäststuga

2 av 4

Planlösning

3 av 4

Fasad fram och bak

4 av 4

Fasad sidor

Daniel Fredriksson Säljare, Myresjöhus

Nyfiken och vill veta mer?

Vad kostar det?

Hör av dig till oss så återkommer vi med en detaljerad kalkyl baserad på vad och vart du vill bygga.

Bli inspirerad!

Utforska alla våra husmodeller bekvämt hemma i soffan. I brevlådan inom några dagar!

Kontakta oss

Hur vill du att vi kontaktar dig?

Beställ katalog

Maxad inspiration till soffmyset

Elegant enkelhet.

Du tittar ut genom fönstret och lockas av tystnaden och lugnet utanför. Öppna dörren, ta ett steg över tröskeln och utestunden är din att landa i. Året runt, oavsett väder. Här kan du njuta av din alldeles egen paus.

Modernt på klassisk bas

Huset baseras på en klassisk rektangulär ladhusmodell med branta tak. Den enkla elegansen ger huset ett tilltalande och samtida yttre samtidigt som det öppnar möjligheterna som gör huset till din plats att återvända till.

Gemenskap och avskildhet

Huset har en smart lösning som skapar ett fullt öppningsbart uterum tvärs över huskroppen. Detta ger möjlighet till umgänge både inne och ute, samtidigt som det också skapar två separata hussektioner, om än under ett och samma tak.

Naturligt ljus i överflöd

Husets fasader utgör till stora delar av fönsterpartier som går från golv till talk. Det ger ett fantastiskt insläpp av naturligt ljus som gör att gränsen mellan ute och inne så smått suddas ut.

Hitta tomt till ditt fritidshus

Sök på t.ex. adress, område, stad, kommun, län, projekt-/objektnamn

Bli OBOS-medlem

Få fina rabatter på allt från färg och inredning till nöjen för hela familjen, få extra trygghet vid bostadsaffären – och förtur i kön till våra tomter. Bara för OBOS-medlemmar.

Läs mer om OBOS Medlem

Frågor och svar

Hej!

Berätta för oss i vilken kommun du vill bygga. Vi kommer anpassa webbplatsen till din valda kommun för att förenkla för dig.