• Kundreportage

Det allra första Myresjöhuset

Följ med på en kombinerad tidsresa och kundreportage. Här bekantar vi oss med Artur Persson och hans Dalbo – anno 1927.

Första kataloghusen lanseras

Myresjöhus första huskatalog innehöll åtta 1,5-planshus för en eller två familjer, fast egentligen var det bara fyra husmodeller – med alternativen sadeltak eller mansardtak. Oavsett hur man räknar hade husen många fina kvaliteter. Arkitekten hette Sixten Lööf och hade nog fått en strålande karriär, om han inte tragiskt nog omkommit när han krockade med ett tåg ett par år senare.

Youtube video preview

Presentationen viktig redan då

Hur husmodellerna presenterades var uppenbarligen viktigt redan då, I katalogen visas husen med både entréfasad och gavelfasad samt planritningar för båda våningarna. Och namnen var säkerligen lockande, vad sägs om Solbo och Solhem, Dalbo och Dalhem, Nybo och Nyhem samt Granbo och Granhem? Enligt den bifogade prislistan kostade byggsatsen för respektive hus 3.500 till 4.900 kronor.

1 / 3

Artur slår till

Säkerligen bläddrades det flitigt ute i stugorna. Katalogen innehöll ju också lockande reklam för tekniska underverk som eldsläckaren Trygg och köksspisen Geysir. Den första som slog till på ett Myresjöhus blev dock Artur Pettersson i grannbyn Hjältaryd. Han beställde sig ett Dalbo, som sedan levererades med häst och vagn till byggplatsen.

Huset växer fram

Tydligen gick uppförandet både snabbt och smärtfritt, Artur intygade själv att ”materialierna” hade god passform. Köksinredningen ingick i form av skåp och hyllor i delar med beslagna luckor och lådor – standarden var med andra ord lite enklare än dagens påkostade HTH-kök, men på den tiden förväntade sig ingen heller något annat. Trappa i monteringsfärdiga delar med en lyxig ledstång i polerad björk, hatthylla, fönsterbrädor och nödvändiga inre listverk ingick för del delen också.

Husdrömmen blir sann

Man kan tänka sig känslan när Artur stod och beundrade sitt nya hem för första gången. Hur leendet blev allt bredare i takt med att blicken gled från mansardtaket med sin kupa, till fasadens träpanel och snickerier – för att tillslut landa på den inbjudande entréverandan. Kronan på verket, helt klart.

1 / 9

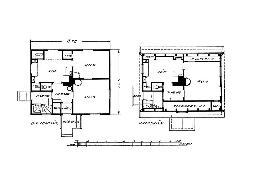
Rum för moderniteter

Inuti stoltserade Dalbo med en riktigt bra planlösning med den tidens mått mätt – även om den inte liknar dagens öppna ytor precis. På entrévåningen ryms två rum och kök med skafferi, en detalj som ju gjort comeback även i våra moderna kök. Naturligtvis fanns här också en tambur (eller hall som vi skulle säga idag) med kapprum och rum för WC. Om Artur kostade på sig någon vattenklosett från start förtäljer dock inte historien.

Och flera vindskontor

Från tamburen når man även trappan upp till övervåningen, som även har en egen ingång. Vi gissar att det var den som användes flitigast i vardagen, man kunde ju inte slita på finingången via verandan hur som helst. Planlösningen en trappa upp bjöd på ett stort rum, rejäla garderober under snedtaken som på den tiden kallades vindskontor – och kök, såklart. Här var ju meningen att två familjer skulle kunna bo bra.

Hem som håller i generationer

Vi brukar ju säga att vi bygger för generationer, och Arturs Dalbo står faktiskt kvar än idag. Säkerligen uppdaterat med alla önskvärda moderna bekvämligheter. Och även om Artur själv är borta sedan länge vet vi att han var mycket nöjd med sitt hus. Det här är rekommendationen han skrev:

A.B. Myresjö-hus, Myresjö.

Kan nu meddela, att det hus, typ Dalbo, jag köpt av Eder, har utfallit till min och min familjs belåtenhet. Materialet var förstklassigt och konstruktionen enkel och praktisk. Uppförandet gick på ganska kort tid, tack vare den goda passformen på materialierna. Villan kostar mig nu fullt färdig, kronor 6,500.

Med dessa erfarenheter kan jag till alla och envar, som ämnar bygga eget hem, på det varmaste rekommendera Myresjöhusen.
Artur Pettersson, Furuskog, Hjältaryd

Alexander Aronsson Säljare, Myresjöhus

Beställ vår katalog

I brevlådan inom några dagar

Frågor och svar

Hej!

Berätta för oss i vilken kommun du vill bygga. Vi kommer anpassa webbplatsen till din valda kommun för att förenkla för dig.