Bra att veta om detaljplan

Detaljplanen styr i detalj hur ett område ska se ut och vad som får lov att byggas där. Här berättar vi mer om den.

Vad är en detaljplan?

Din kommun styr över hur mark- och vattenområden i kommunen får användas och reglerar detta i olika planer. Dels översiktsplanen som omfattar hela kommunen och beskriver riktlinjerna ur ett långsiktigt perspektiv – och detaljplanen som bestämmer hur ett visst område ska se ut och vad som får lov att byggas där. Områden som saknar detaljplan kan istället regleras av områdesbestämmelser.

Varför behöver jag bry mig om den?

Inom detaljplanelagt område talar detaljplanen om vad du och andra får och inte får göra för byggåtgärder inom planområdet. Med andra ord är den avgörande när din ansökan om bygglov ska prövas.

Vad regleras i detaljplanen?

Detaljplanen beskriver förstås vad som får byggas i området – till exempel småhus, flerbostadshus, butikslokaler eller kontor, parker, gator eller idrottsanläggningar. Här finns även bestämmelser för hur stora – eller hur höga – husen får bli, hur långt det ska vara mellan hus och tomtgräns och var ledningar ska dras. Ibland regleras också hur husen ska se ut, det är till exempel inte ovanligt att detaljplanen kräver samma färg på taken i hela området. Detaljplanen styr också hur allmänna platser ska användas och utformas, och kan innehålla bestämmelser för att skydda värdefulla byggnader eller natur.

Hur länge gäller en detaljplan?

Detaljplanen gäller tills den antingen upphävs, ändras eller ersätts av en ny detaljplan.

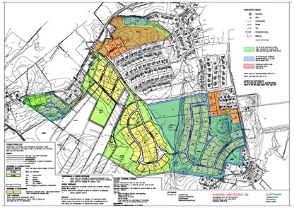
Hur ser en detaljplan ut?

En detaljplan visas som ett område på en plankarta. Till kartan hör en planbeskrivning som förklarar planens syfte och innehåll. Även andra handlingar kan ingå, till exempel en illustrationskarta eller en miljökonsekvensbeskrivning. Detaljplanen ska ha stöd i plan- och bygglagen och följa Boverkets föreskrifter.

Några vanliga betydelser

B = bostäder (gul)
J = industri (blågrå)
K = kontor (brun)
N = friluftsliv (mörkgrön)
P = parkering (grå)
S = skola (röd)
u = marken ska vara tillgänglig för allmänna underjordiska ledningar
z = marken ska vara tillgänglig för allmän fordonstrafik
0.0 (inom romb) = totalhöjd i meter
Korsmark = enbart uthus, garage och liknande får byggas
Prickmark = inga byggnader får uppföras

Hur läser jag detaljplanen?

Exakt vad detaljplanen säger är dessvärre inte alltid så enkelt att förstå, inte minst för att upplägget kan skilja sig åt mellan olika kommuner. Men här har du som bygger ett Myresjöhus en trygg fördel, du får nämligen hjälp av din säljare med att läsa och förstå vad detaljplanen säger.

Helen Hedlund Säljare, Myresjöhus

Nyfiken och vill veta mer?

Vad kostar det?

Hör av dig till oss så återkommer vi med en detaljerad kalkyl baserad på vad och vart du vill bygga.

Bli inspirerad!

Utforska alla våra husmodeller bekvämt hemma i soffan. I brevlådan inom några dagar!

Kontakta oss

Hur vill du att vi kontaktar dig?

Beställ katalog

Maxad inspiration till soffmyset

Frågor och svar

Hej!

Berätta för oss i vilken kommun du vill bygga. Vi kommer anpassa webbplatsen till din valda kommun för att förenkla för dig.