1 / 48

Smart 166 x Modern

Visningshus

Pengabergsvägen 72 , Jönköping

Kliv in i ett visningshus på vägen mot ditt drömhus.

Att besöka ett visningshus är till stor hjälp när funderar på att bygga hus. Under ett besök i ett av våra hus får du inte bara lära känna den specifika modellens alla fördelar, du får också uppleva känslan av ett Myresjöhus: våra materialval, planlösningar, ljusinsläpp och mycket mer. Inte minst får du bekanta dig med vår kunniga personal som kan guida dig efter dina förutsättningar och drömmar.

Upplev ett Smart 166 i verkligheten

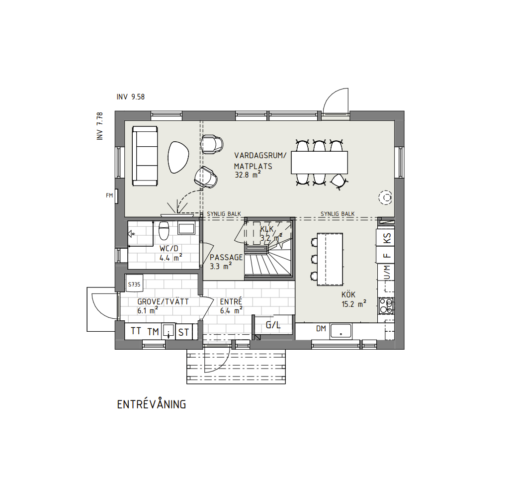
När du kliver in möts du av ett härligt ljus från vardagsrummets stora fönsterpartier. Den öppna planlösningen är social och genomtänkt, med den centrala trappan som skapar ett naturligt flöde mellan husets ytor.

Köket från HTH, placerat i vinkel, är fullt utrustat och utformat för både vardag och fest. På entrévåningen finns även en praktisk tvättstuga med groventré, och på övervåningen fyra sovrum, ett badrum och ett mysigt allrum. 

Genomtänkta detaljer och hållbar kvalitet

Huset visar tydligt vad som kännetecknar Myresjöhus – välplanerade ytor, kvalitetsmaterial och energieffektiv konstruktion som ger låg driftkostnad och minimalt underhåll.

En plats att trivas på

Tahe är ett område där naturen möter vardagens bekvämlighet. Här bor du nära skogen, padelbanan och service som förskolor, skolor och butiker – allt på cykelavstånd. 

Träffa vår säljare Stefan på plats! Han finns där för att svara på dina frågor och guida dig mot ditt drömhem. Välkommen att inspireras och uppleva Smart 166..

Stefan Malm Säljare +46705256557 +46104341266

Jag vill bli kontaktad för att boka tid

Boka din egen tid

Husmodell

Smart 166

2-planshus

  • 166 m2
  • 6-7 rum och kök
Mer om husmodellen
Youtube video preview

Pari och Bashar visar varför

Att gå på visning är något helt annat än att titta på bilder. Följ med Pari och Bashar när de upplever huset på plats – och upptäck varför visningshuset ofta är där hemlängtan börjar på riktigt.

Läs mer

Prova Virtual Reality

Boka en VR-visning på vårt kontor. Här kan du i lugn och ro promenera runt i flera olika husmodeller, uppleva känslan i ett Myresjöhus och testa olika stilar. Din säljare guidar, och svarar på dina frågor.

Läs mer

När det inte får bli fel

För dig som funderar på att bygga hus innebär det en extra trygghet att göra det tillsammans med en finansiellt stark koncern med lång erfarenhet och långsiktigt agerande. Myresjöhus erbjuder just detta.

Läs mer

Lite inspiration inför visningen?

Utforska våra artiklar: här får du stilfull inspiration, tips och konkreta råd för att göra smarta val längs vägen. Plus berättelser från husbyggare som redan gjort sin hemlängtan till verklighet.

Hej!

Berätta för oss i vilken kommun du vill bygga. Vi kommer anpassa webbplatsen till din valda kommun för att förenkla för dig.