• Bygghöjd 4,8 m
  • Byggarea 128 m2
  • Antal rum 4 sovrum

Arkitekt

Frida Andersson

Se alla planlösningar

Stilsäkert sluttningshus med fyra sovrum.

Midnattssol är ett sluttningshus som passar perfekt i kuperade landskap, inte minst vid kusten. Huset är designat för att kunna utnyttja solläget, med möjlighet till ute-njut i tre väderstreck. På övre plan breder husets sociala ytor ut sig – redo att ta vara på utsikten.

I detta sluttningshus har du ingången på övervåningen, där du också hittar Midnattssols väldisponerade sällskapsytor med fri sikt ut genom generösa glaspartier och möjlighet att öppna upp till ryggåstak för ännu mer rymd. Köket bjuder på en stor, härlig köksö och matplatsen har en naturlig plats i tillvaron. Det stora vardagsrummet ligger i vinkel, med balkongen utanför.

På övervåningen finns redan ett sovrum som även kan bli ett utmärkt gästrum eller hemmakontor. Här kan du också välja att dela av vardagsrummet för att få ytterligare ett sovrum. En trappa ner, i sluttningsvåningen, väntar resten av hemmets mer privata delar. Här finns tre sovrum, det största av dem med egen walk-in-closet, liksom badrum och tvättstuga. Och till sist, men verkligen inte minst, ett trivsamt allrum där dubbla altandörrar öppnar upp mot uteplatsen.

Produktbilderna innehåller tillval, se dem som inspirationsmaterial.

Planlösningar

Planlösning 1 av 2

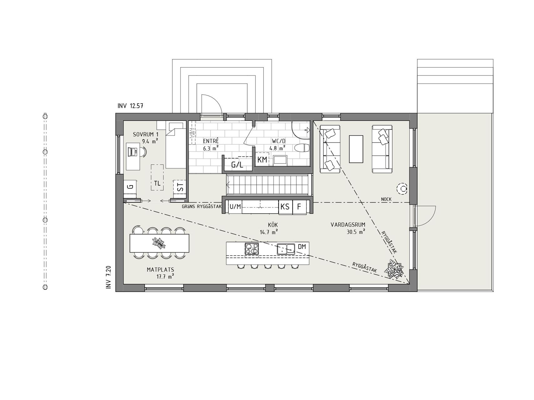
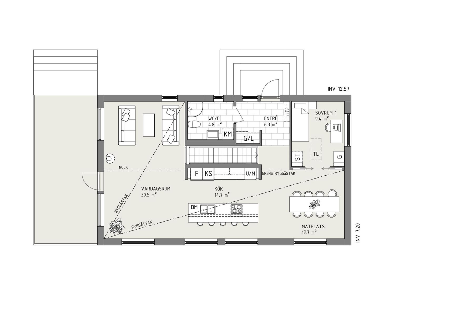
Entrévåning - Industriell stil

Här välkomnas du in på övervåningen och får njuta av husets gemensamma ytor som omges av generösa, småspröjsade fönster – och från vardagsrummet når du balkongen. Våningens öppna planlösning skapar en luftig och ljus känsla.

Planlösning 2 av 2

Undervåning - Industriell stil

På sluttningsvåningen hittar du tre av husets sovrum. Från våningens allrum och det stora sovrummet har du kontakt med utsidan, via generösa ytor med industrifönster och dubbeldörrar ut till uteplatsen.

Känns det bara nästan rätt?

Då kan vi hjälpa dig att anpassa planlösningen för att den ska passa er perfekt.

Fler planlösningar

1 av 2

Entrévåning - Industriell stil

2 av 2

Undervåning - Industriell stil

Alexander Aronsson Säljare, Myresjöhus

Nyfiken och vill veta mer?

Vad kostar det?

Hör av dig till oss så återkommer vi med en detaljerad kalkyl baserad på vad och vart du vill bygga.

Bli inspirerad!

Utforska alla våra husmodeller bekvämt hemma i soffan. I brevlådan inom några dagar!

Kontakta oss

Hur vill du att vi kontaktar dig?

Beställ katalog

Maxad inspiration till soffmyset

Midnattssol x Industriell

Här ser vi en monokrom, svart färgsättning för att visa på variationen i den industriella stilen. Huset är utformat med svart plåttak, svart, stående funkispanel och svarta småspröjsade fönster. Med den generösa fönstersättningen kommer gott om ljus släppas in i huset. Och via den generösa balkongen, med ett snyggt, svart räcke, bjuds naturen utanför in i huset.

I köket har du fri sikt ut genom generösa glaspartier
Frida Andersson, Arkitekt

Dina valmöjligheter

Små detaljer som piffar upp och stora tillval som gör dagarna bättre för hela familjen. Något som gör hemmet lite mer personligt. Lite mer perfekt för just dig. 

Bläddra i katalogen

Ett kontrakt, en kontakt

Ert viktigaste val

En fråga som är lika viktig som vilket hus du ska bygga är hur det ska byggas. På Myresjöhus erbjuder vi totalentreprenad till fast pris där din egen projektledare ingår. Nyckelfärdigt hus i ordets rätta bemärkelse!

Mer om totalentreprenad

Hitta tomt att bygga på

Sök på t.ex. adress, område, stad, kommun, län, projekt-/objektnamn

Liknande hus

Bli OBOS-medlem

Vi på Myresjöhus är en del av OBOS, en av Nordens största bostadsutvecklare. Som OBOS-medlem får du förtur till våra bostäder, tomter och inflyttningsklara hus. Inte nog med förtur, så får du även fina förmåner för vardagsliv och vardagslyx!

Läs mer

Frågor och svar

Hej!

Berätta för oss i vilken kommun du vill bygga. Vi kommer anpassa webbplatsen till din valda kommun för att förenkla för dig.