• Bygghöjd 4,9 m
  • Byggarea 128 m2
  • Antal rum 4 sovrum

Arkitekt

Frida Andersson

Se alla planlösningar

Stilsäkert sluttningshus med fyra sovrum.

Midnattssol är ett sluttningshus som passar perfekt i kuperade landskap, inte minst vid kusten. Huset är designat för att kunna utnyttja solläget, med möjlighet till ute-njut i tre väderstreck. På övre plan breder husets sociala ytor ut sig – redo att ta vara på utsikten.

I detta sluttningshus har du ingången på övervåningen, där du också hittar Midnattssols väldisponerade sällskapsytor med fri sikt ut genom generösa glaspartier och möjlighet att öppna upp till ryggåstak för ännu mer rymd. Köket bjuder på en stor, härlig köksö och matplatsen har en naturlig plats i tillvaron. Det stora vardagsrummet ligger i vinkel, med balkongen utanför.

På övervåningen finns redan ett sovrum som även kan bli ett utmärkt gästrum eller hemmakontor. Här kan du också välja att dela av vardagsrummet för att få ytterligare ett sovrum. En trappa ner, i sluttningsvåningen, väntar resten av hemmets mer privata delar. Här finns tre sovrum, det största av dem med egen walk-in-closet, liksom badrum och tvättstuga. Och till sist, men verkligen inte minst, ett trivsamt allrum där dubbla altandörrar öppnar upp mot uteplatsen.

Produktbilderna innehåller tillval, se dem som inspirationsmaterial.

Planlösningar

Planlösning 1 av 2

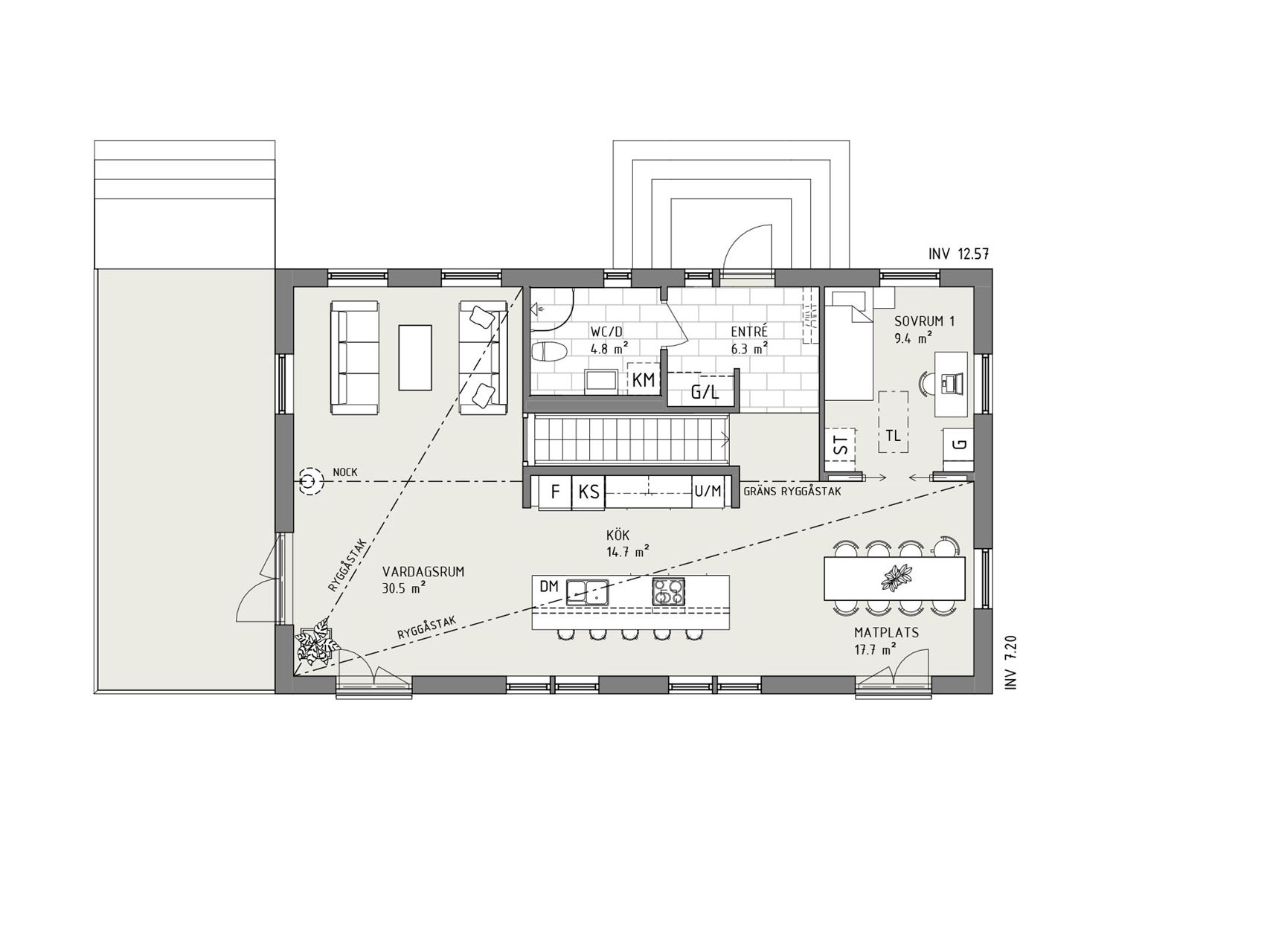
Entrévåning - New England

Här gör du entré på övervåningen med fri sikt in mot kök och matplats och fint ljusinsläpp från stiligt spröjsade fönsterytor. Vardagsrummet ligger i vinkel för en öppen känsla mellan rummen. Härifrån når du även balkongen.

Planlösning 2 av 2

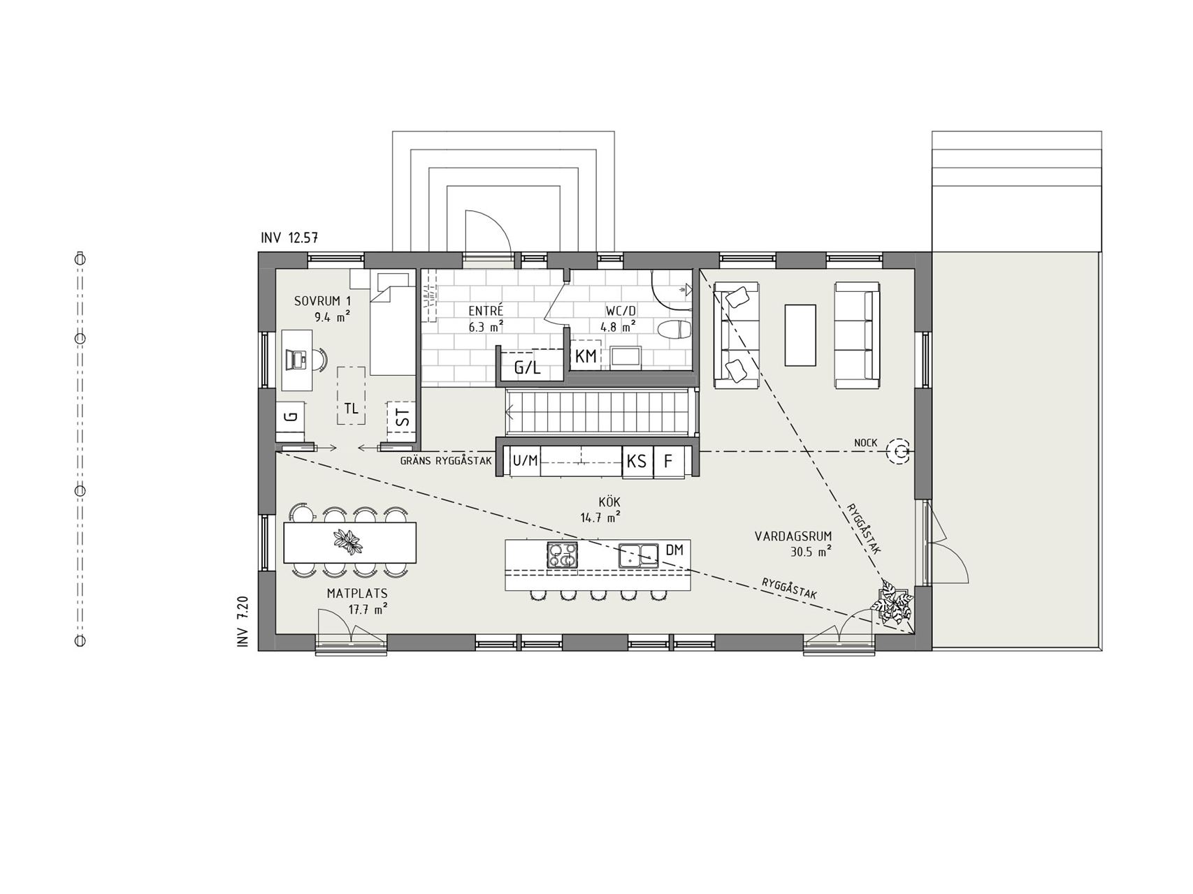
Undervåning - New England

En trappa ner i huset står allrummet i centrum, omgivet av tre sovrum, badrum och tvättstuga. Ljuset strömmar in från stilenligt spröjsade fönster och dubbla altandörrar som vetter mot uteplatsen.

Känns det bara nästan rätt?

Då kan vi hjälpa dig att anpassa planlösningen för att den ska passa er perfekt.

Fler planlösningar

1 av 2

Entrévåning - New England

2 av 2

Undervåning - New England

Mattias Starlander Säljare, Myresjöhus

Nyfiken och vill veta mer?

Vad kostar det?

Hör av dig till oss så återkommer vi med en detaljerad kalkyl baserad på vad och vart du vill bygga.

Bli inspirerad!

Utforska alla våra husmodeller bekvämt hemma i soffan. I brevlådan inom några dagar!

Kontakta oss

Hur vill du att vi kontaktar dig?

Beställ katalog

Maxad inspiration till soffmyset

Midnattssol x Ocean Living

Stilen Ocean Living är inspirerad av den amerikanska östkusten med en ljus, symmetrisk fasad som ger ett tidlöst intryck. De generösa och småspröjsade fönstren i vit kulör kombinerat med liggande, vitmålad panel är klassiska attribut och de svarta takpannorna ger en snygg kontrast till det annars ljusa huset. Husets bearbetade pelardetaljer vid hörn och foderlösningar ovan fönster är också typiska för stilen.

I köket har du fri sikt ut genom generösa glaspartier
Frida Andersson, Arkitekt

Dina valmöjligheter

Små detaljer som piffar upp och stora tillval som gör dagarna bättre för hela familjen. Något som gör hemmet lite mer personligt. Lite mer perfekt för just dig. 

Bläddra i katalogen

Ett kontrakt, en kontakt

Ert viktigaste val

En fråga som är lika viktig som vilket hus du ska bygga är hur det ska byggas. På Myresjöhus erbjuder vi totalentreprenad till fast pris där din egen projektledare ingår. Nyckelfärdigt hus i ordets rätta bemärkelse!

Mer om totalentreprenad

Uppskattad energianvändning

Här kan du få en uppfattning om hur energisnålt ett nytt Myresjöhus faktiskt är. Fyll i din kommun för att se uppskattad energianvändning i ditt drömhus just där du vill bygga.

När du väljer en plats du vill bygga på så anpassar vi webbplatsen för att ge dig mer relevant information. Du kan byta plats när som helst.

Energianvändning

(värme & varmvatten)

6 300

kWh/år
Malmö (grundval)

Total energi­användning*

(inklusive hushållsel)

11 700

kWh/år
Energiklass

C

Bo billigare i nybyggt hus

Idag tror många att de inte har råd att bygga ett nytt hus – och allt för många vet heller inte hur mycket billigare det faktiskt är att bo i ett nybyggt hus.

80% lägre energiförbrukning i ett nybyggt Myresjöhus

Att nybyggda hus är energisnåla hus är ingen nyhet, speciellt inte jämfört med äldre villor. Men visste du hur mycket det faktiskt kan skilja?

Spara ännu mer med solceller

Genom att utrusta ditt Myresjöhus med rätt antal solceller kan du nästan bli helt självförsörjande på el. Ett tillval som lönar sig i längden.

Hitta tomt att bygga på

Sök på t.ex. adress, område, stad, kommun, län, projekt-/objektnamn

Liknande hus

Bli OBOS-medlem

Vi på Myresjöhus är en del av OBOS, en av Nordens största bostadsutvecklare. Som OBOS-medlem får du förtur till våra bostäder, tomter och inflyttningsklara hus. Inte nog med förtur, så får du även fina förmåner för vardagsliv och vardagslyx!

Läs mer

Frågor och svar

Hej!

Berätta för oss i vilken kommun du vill bygga. Vi kommer anpassa webbplatsen till din valda kommun för att förenkla för dig.