Smart 128

Allt om detta hus
  • Bygghöjd 3,7 m
  • Byggarea 87 m2
  • Taklutning 45°
  • Antal rum 5-6 rum och kök

Arkitekt

Frida Andersson

Se alla planlösningar

Ett ljuvligt smart 1,5-planshus

Lär känna Smart 128, ett 1,5-planshus fyllt av smarta lösningar, som dessutom är lättplacerat på de flesta tomter. Här bor du helt ljuvligt i en social öppen planlösning med härlig rymd – och gott om plats för egentid i 3-4 sovrum.

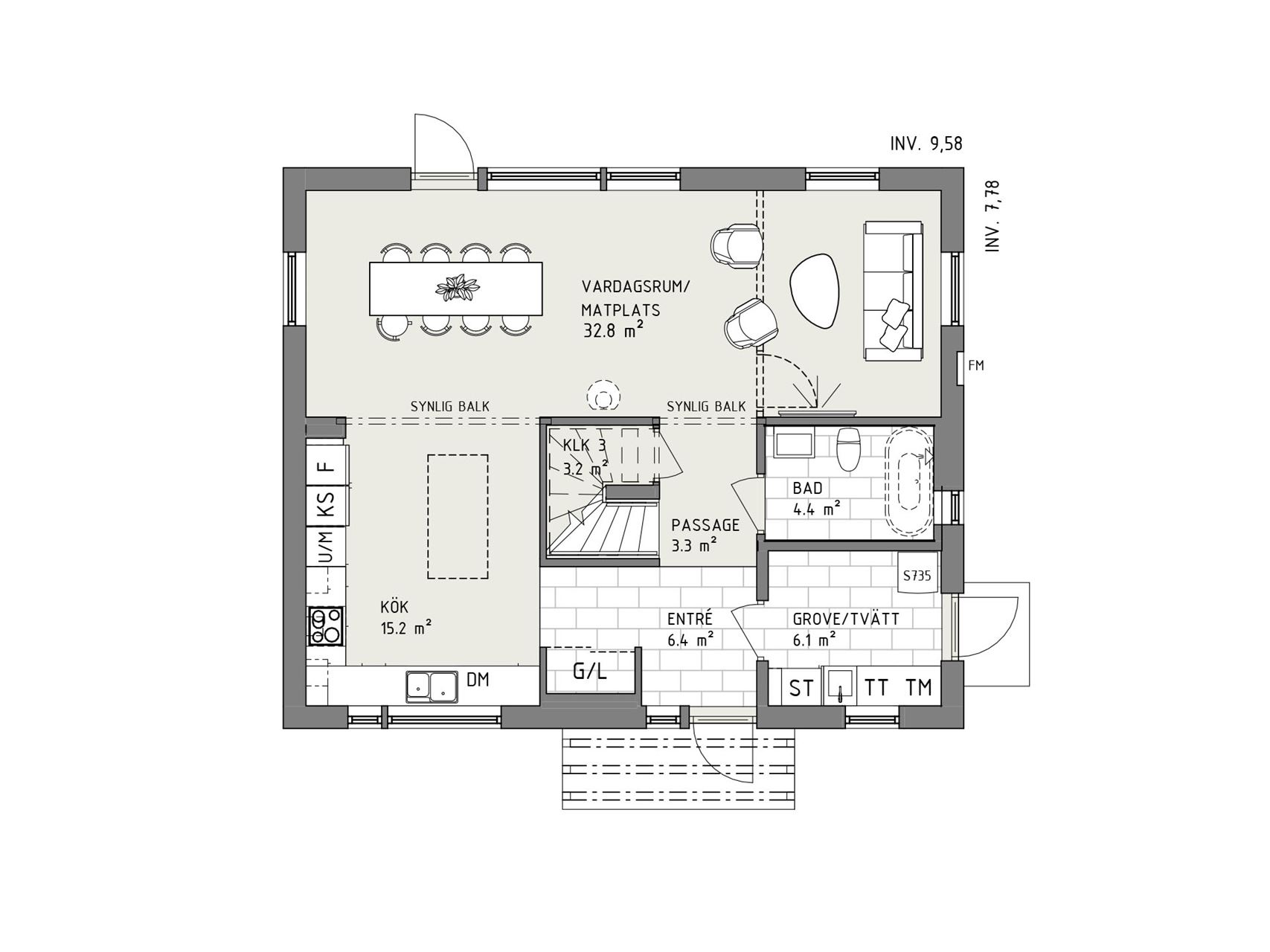
Direkt när du kliver in möts du av ljuset från de uppglasade partierna i vardagsrummet som ger en härlig känsla av rymd. Entrévåningen bygger kring den centrala trappan, vilket skapar ett bra flöde genom huset. Här kan du njuta av stora sociala ytor med kök och vardagsrum i öppen planlösning med fin rumskänsla. Som tillval kan du även välja att byta ut entrévåningens sovrum mot ett ännu större vardagsrum. Köket ligger i vinkel vilket skapar fina arbetsytor, och det generösa fönsterpartiet över diskbänken låter dig ta in omgivningarna utanför samtidigt som du grejar.

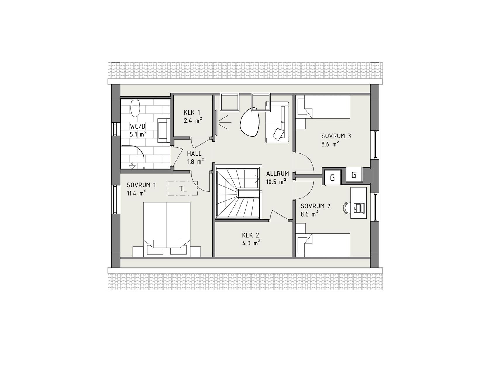
Att husets groventré och tvättstuga är placerad i nära anslutning till entrén och köket underlättar också i vardagen. En trappa upp väntar sedan tre sovrum, ostört placerade i sällskap av ett allrum. Här finns med andra ord en tydlig avgränsning mellan det sociala och det privata i huset. I anslutning till master bedroom finner vi även ett fräscht badrum och en rejäl klädkammare. Smart 128 har även gott om förvaringsmöjligheter.

Produktbilderna innehåller tillval, se dem som inspirationsmaterial.

Planlösningar

Planlösning 1 av 2

Modern stil - Entrévåning

Smart 128 är ett ljust och trevligt hus för dig som uppskattar stora sociala ytor. Här får du också ett sovrum på entrévåningen. Även utmärkt som gästrum eller hemmakontor.

Planlösning 2 av 2

Modern stil - Övervåning

Men här finns också gott om rum för egentid. Här blir övervåningen med tre sovrum familjens egen privata oas i tillvaron.

Fler planlösningar

1 av 2

Modern stil - Entrévåning

2 av 2

Modern stil - Övervåning

Alexander Aronsson Säljare, Myresjöhus

Nyfiken och vill veta mer?

Vad kostar det?

Hör av dig till oss så återkommer vi med en detaljerad kalkyl baserad på vad och vart du vill bygga.

Bli inspirerad!

Utforska alla våra husmodeller bekvämt hemma i soffan. I brevlådan inom några dagar!

Kontakta oss

Hur vill du att vi kontaktar dig?

Beställ katalog

Maxad inspiration till soffmyset

Modernt, stilrent och trivsamt

I sin moderna stil bjuder Smart 128 på en härligt enkel och avskalad arkitektur med nätta takfötter, ospröjsade fönster och stående funkispanel i en mörk monokrom färgsättning på både fönster och fasad. Huset har en förhöjd skånetakfot, vilket ger en trevlig resning till huset med dess 45-gradiga taklutning. På entrésidan presenterar sig huset med ett asymmetriskt horisontellt fönsterspråk. Här är också husseriens typiska pergola placerad, vilket både ramar in och skapar en tydlig och välkomnande entré. Här kan du med fördel plantera klätterväxter längs de yttre pelarna som sedan får slingra sig uppåt. På baksidan bjuder huset in med ett generöst uppglasat fönsterparti.

Smart 128 erbjuds i två olika utföranden, var och en med sin egen fönsterkonfiguration som tillsammans med färgsättning och val av detaljer ger stora möjligheter att skapa olika uttryck. Väljer du istället utförandet med spröjsade fönster kan du både ge ditt nya hem en mer traditionell lantlig stil eller känslan av ett hus vid havet, som vi kallar New England. Valet är ditt.

De uppglasade partierna i vardagsrummet ger en härlig känsla av rymd till rummen innanför.
Frida Andersson, Arkitekt

Dina valmöjligheter

Små detaljer som piffar upp och stora tillval som gör dagarna bättre för hela familjen. Något som gör hemmet lite mer personligt. Lite mer perfekt för just dig. 

Bläddra i katalogen

Ett kontrakt, en kontakt

Ert viktigaste val

En fråga som är lika viktig som vilket hus du ska bygga är hur det ska byggas. På Myresjöhus erbjuder vi totalentreprenad till fast pris där din egen projektledare ingår. Nyckelfärdigt hus i ordets rätta bemärkelse!

Mer om totalentreprenad

Uppskattad energiförbrukning

Här kan du få en uppfattning om hur energisnålt ett nytt Myresjöhus faktiskt är. Fyll i din kommun för att se uppskattad energiförbrukning i ditt drömhus just där du vill bygga.

När du väljer en plats du vill bygga på så anpassar vi webbplatsen för att ge dig mer relevant information. Du kan byta plats när som helst.

Energianvändning

(värme & varmvatten)

4 500

kWh/år
Malmö (grundval)

Total energi­användning*

(inklusive hushållsel)

8 800

kWh/år
Energiklass

B

Bo billigare i nybyggt hus

Idag tror många att de inte har råd att bygga ett nytt hus – och allt för många vet heller inte hur mycket billigare det faktiskt är att bo i ett nybyggt hus.

80% lägre energiförbrukning i ett nybyggt Myresjöhus

Att nybyggda hus är energisnåla hus är ingen nyhet, speciellt inte jämfört med äldre villor. Men visste du hur mycket det faktiskt kan skilja?

Spara ännu mer med solceller

Genom att utrusta ditt Myresjöhus med rätt antal solceller kan du nästan bli helt självförsörjande på el. Ett tillval som lönar sig i längden.

Hitta tomt att bygga på

Sök på t.ex. adress, område, stad, kommun, län, projekt-/objektnamn

Liknande hus

Bli OBOS-medlem

Vi på Myresjöhus är en del av OBOS, en av Nordens största bostadsutvecklare. Som OBOS-medlem får du förtur till våra bostäder, tomter och inflyttningsklara hus. Inte nog med förtur, så får du även fina förmåner för vardagsliv och vardagslyx!

Läs mer

Frågor och svar

Hej!

Berätta för oss i vilken kommun du vill bygga. Vi kommer anpassa webbplatsen till din valda kommun för att förenkla för dig.