• Bygghöjd 5,9 m
  • Byggarea 93 m2
  • Antal rum 3 sovrum

Arkitekt

Frida Andersson

Se alla planlösningar

Ljust och trevligt 2-planshus med gavelställd entré.

Silvergran är ett gavelställt tvåplanshus, vilket innebär att det med fördel placeras på smala tomter. Här ryms många funktioner på en lite nättare yta, med en social öppen planlösning på entrévåningen och familjens privata utrymmen i form av 3-4 sovrum en trappa upp.

När du kliver innanför dörren möter du ljuset från de generöst uppglasade partierna i motsatta gaveln. I entrén finns ingång till toalett med dusch, liksom en välplacerad klädkammare, och rakt framför dig väntar kök, matplats och vardagsrum i en öppen planlösning. Den inbjudande köksön blir en given mittpunkt i tillvaron, och flera altandörrar ger smidig access till uteplats och trädgård. Ett praktiskt plus är också den rejäla tvättstugan med groventré.

På övervåningen väntar familjens mer privata zoner, de når du via den snygga raka trappan som ligger i anslutning till entrén och groventrén. Här finns ett trevligt allrum, badrum, master bedroom med egen klädkammare och ytterligare tre sovrum. Det mindre av dem kan med fördel användas som hemmakontor.

Produktbilderna innehåller tillval, se dem som inspirationsmaterial.

Planlösningar

Planlösning 1 av 2

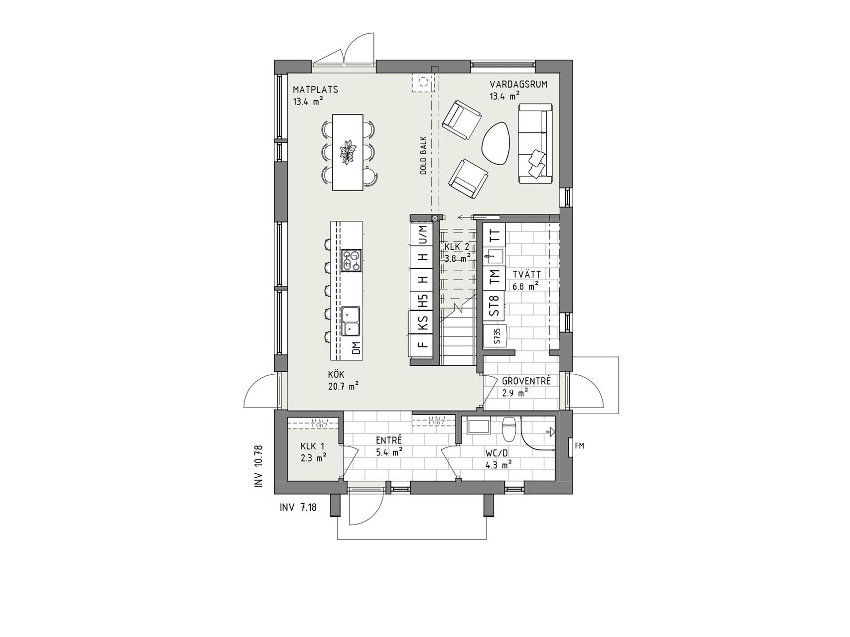
Entrévåning- Industriell stil

Redan från den gavelställda entrén ser du den generösa, småspröjsade inglasningen i motsatt gavel. Den öppna, luftiga planlösningen mellan kök, matplats och vardagsrum gör det enkelt att umgås och få överblick.

Planlösning 2 av 2

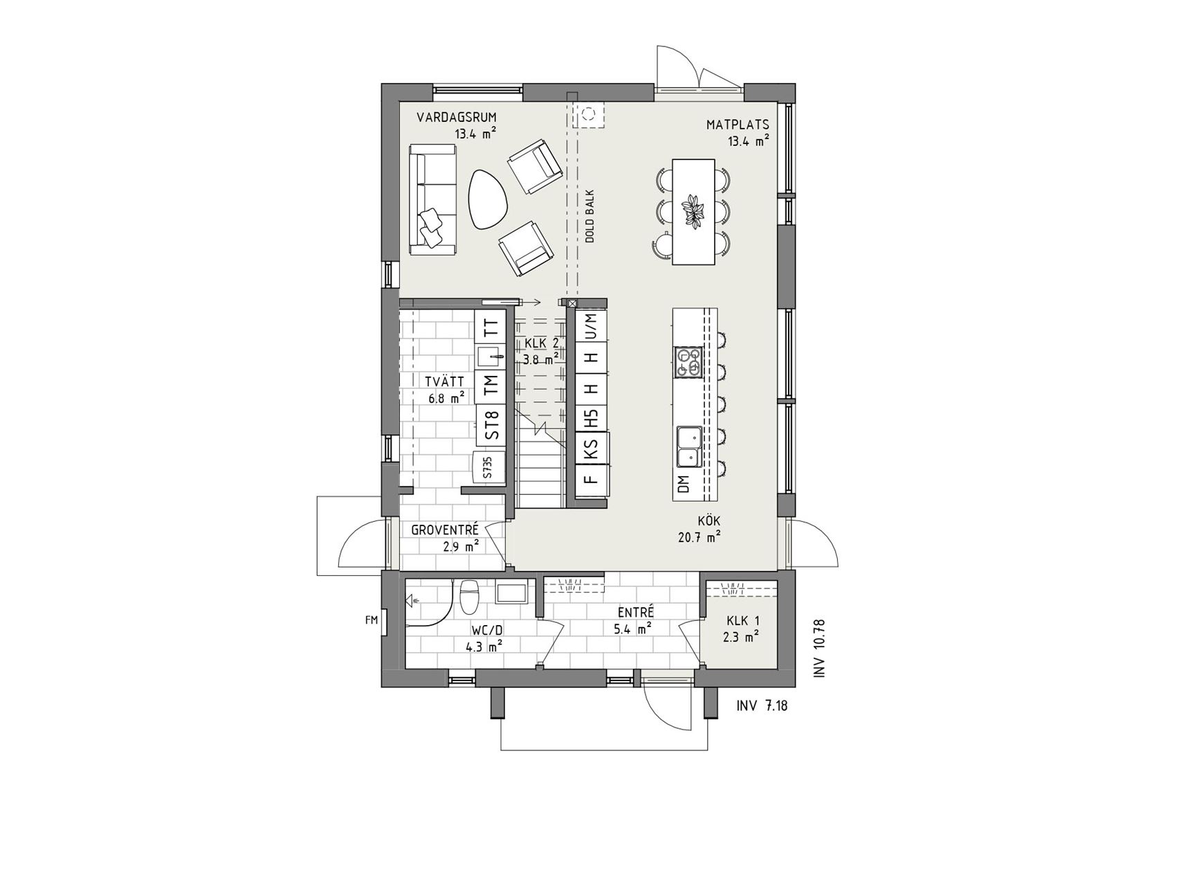
Övervåning - Industriell stil

En trappa upp möts du av ett allrum, där svarta industrifönster släpper in ljuset längs långsidan. Här finns även ett fint badrum – och alla husets sovrum, varav ett passar bra som hemmakontor.

Känns det bara nästan rätt?

Då kan vi hjälpa dig att anpassa planlösningen för att den ska passa er perfekt.

Fler planlösningar

1 av 2

Entrévåning- Industriell stil

2 av 2

Övervåning - Industriell stil

Daniel Fredriksson Säljare, Myresjöhus

Nyfiken och vill veta mer?

Vad kostar det?

Hör av dig till oss så återkommer vi med en detaljerad kalkyl baserad på vad och vart du vill bygga.

Bli inspirerad!

Utforska alla våra husmodeller bekvämt hemma i soffan. I brevlådan inom några dagar!

Kontakta oss

Hur vill du att vi kontaktar dig?

Beställ katalog

Maxad inspiration till soffmyset

Silvergran x Industriell

I sin industriella stil har Silvergran svarta, småspröjsade fönster. Huset är utformat med stående funkispanel, målad i en grå kulör – som påminner om naturligt grånat trä. Stilen knyter an till de äldre industribyggnaderna, med på ett nutida sätt, inte minst genom fina detaljer som fönsterramen på entrésidan och skärmtaket vid entrén.

Husets stående funkispanel är målad i en grå kulör som påminner om naturligt grånat trä.
Frida Andersson, Arkitekt

Dina valmöjligheter

Små detaljer som piffar upp och stora tillval som gör dagarna bättre för hela familjen. Något som gör hemmet lite mer personligt. Lite mer perfekt för just dig. 

Bläddra i katalogen

Ett kontrakt, en kontakt

Ert viktigaste val

En fråga som är lika viktig som vilket hus du ska bygga är hur det ska byggas. På Myresjöhus erbjuder vi totalentreprenad till fast pris där din egen projektledare ingår. Nyckelfärdigt hus i ordets rätta bemärkelse!

Mer om totalentreprenad

Hitta tomt att bygga på

Sök på t.ex. adress, område, stad, kommun, län, projekt-/objektnamn

Liknande hus

Bli OBOS-medlem

Vi på Myresjöhus är en del av OBOS, en av Nordens största bostadsutvecklare. Som OBOS-medlem får du förtur till våra bostäder, tomter och inflyttningsklara hus. Inte nog med förtur, så får du även fina förmåner för vardagsliv och vardagslyx!

Läs mer

Frågor och svar

Hej!

Berätta för oss i vilken kommun du vill bygga. Vi kommer anpassa webbplatsen till din valda kommun för att förenkla för dig.