• Bygghöjd 5,9 m
  • Byggarea 90 m2
  • Antal rum 3 sovrum

Arkitekt

Frida Andersson

Se alla planlösningar

Ett rymligt 2-planshus med gavelställd entré

Lär känna ett hus som hjälper dig ta vara på ljuset – tack vare stora ljusinsläpp och en öppen planlösning.

När du kliver innanför dörren möter du ljuset från de generöst uppglasade partierna i motsatta gaveln. I entrén finns ingång till toalett med dusch, liksom en välplacerad klädkammare, och rakt framför dig väntar kök, matplats och vardagsrum i en öppen planlösning. Den inbjudande köksön blir en given mittpunkt i tillvaron, och flera altandörrar ger smidig access till uteplats och trädgård. Ett praktiskt plus är också den rejäla tvättstugan med groventré.

På övervåningen väntar familjens mer privata zoner, de når du via den snygga raka trappan som ligger i anslutning till entrén och groventrén. Här finns ett trevligt allrum, badrum, master bedroom med egen klädkammare och ytterligare tre sovrum. Det mindre av dem kan med fördel användas som hemmakontor.

Produktbilderna innehåller tillval, se dem som inspirationsmaterial.

Planlösningar

Planlösning 1 av 2

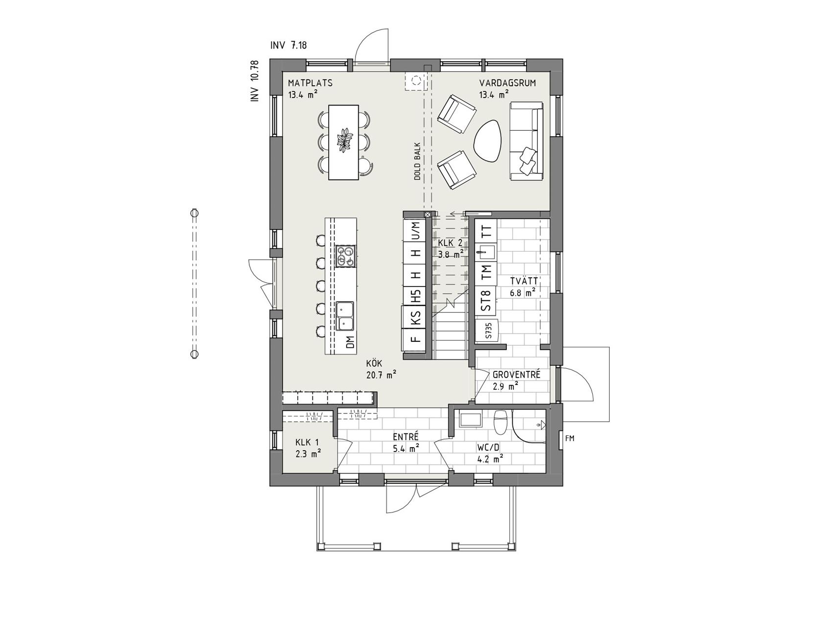
Entrévåning - Sekelskiftesstil

Ljuset från de klassiskt spröjsade fönsterna möter dig så fort du öppnar dörren. På motsatt sida från den gavelställda entrén finns vardagsrum och matplats – som knyts samman med köket via en stor och härlig köksö.

Planlösning 2 av 2

Övervåning - Sekelskiftesstil

Övervåningens mittpunkt är allrummet, med klassiskt dekorerade fönster längs husets ena långsida och möjlighet att ge huset det lilla extra med en fin balkong. Här uppe finns alla husets sovrum – varav ett lite mindre som passar perfekt som ditt hemmakontor.

Känns det bara nästan rätt?

Då kan vi hjälpa dig att anpassa planlösningen för att den ska passa er perfekt.

Fler planlösningar

1 av 2

Entrévåning - Sekelskiftesstil

2 av 2

Övervåning - Sekelskiftesstil

Fredrik Palm Säljare, Myresjöhus

Nyfiken och vill veta mer?

Vad kostar det?

Hör av dig till oss så återkommer vi med en detaljerad kalkyl baserad på vad och vart du vill bygga.

Bli inspirerad!

Utforska alla våra husmodeller bekvämt hemma i soffan. I brevlådan inom några dagar!

Kontakta oss

Hur vill du att vi kontaktar dig?

Beställ katalog

Maxad inspiration till soffmyset

Silvergran x Sekelskifte

Sekelskiftesstilen bjuder på ljusa kulörer som hör eran till – i kombination med snickarglädje såklart. Huset har vackert spröjsade fönster och entrén på gaveln har en utsökt inramning som välkomnar dig hem. Här föreslår vi också en balkong på övervåningen, med ett ståtligt räcke som fulländar stilen.

Här ser vi ljusa kulörer som hör stilen till, snickarglädje och klassisk spröjs
Frida Andersson, Arkitekt

Dina valmöjligheter

Små detaljer som piffar upp och stora tillval som gör dagarna bättre för hela familjen. Något som gör hemmet lite mer personligt. Lite mer perfekt för just dig. 

Bläddra i katalogen

Ett kontrakt, en kontakt

Ert viktigaste val

En fråga som är lika viktig som vilket hus du ska bygga är hur det ska byggas. På Myresjöhus erbjuder vi totalentreprenad till fast pris där din egen projektledare ingår. Nyckelfärdigt hus i ordets rätta bemärkelse!

Mer om totalentreprenad

Hitta tomt att bygga på

Sök på t.ex. adress, område, stad, kommun, län, projekt-/objektnamn

Liknande hus

Bli OBOS-medlem

Vi på Myresjöhus är en del av OBOS, en av Nordens största bostadsutvecklare. Som OBOS-medlem får du förtur till våra bostäder, tomter och inflyttningsklara hus. Inte nog med förtur, så får du även fina förmåner för vardagsliv och vardagslyx!

Läs mer

Frågor och svar

Hej!

Berätta för oss i vilken kommun du vill bygga. Vi kommer anpassa webbplatsen till din valda kommun för att förenkla för dig.