• Bygghöjd 5,9 m
  • Byggarea 94 m2
  • Antal rum 3 sovrum

Arkitekt

Frida Andersson

Se alla planlösningar

Ett rymligt 2-planshus med gavelställd entré

Lär känna ett hus som hjälper dig ta vara på ljuset – tack vare stora ljusinsläpp och en öppen planlösning.

När du kliver innanför dörren möter du ljuset från de generöst uppglasade partierna i motsatta gaveln. I entrén finns ingång till toalett med dusch, liksom en välplacerad klädkammare, och rakt framför dig väntar kök, matplats och vardagsrum i en öppen planlösning. Den inbjudande köksön blir en given mittpunkt i tillvaron, och flera altandörrar ger smidig access till uteplats och trädgård. Ett praktiskt plus är också den rejäla tvättstugan med groventré.

På övervåningen väntar familjens mer privata zoner, de når du via den snygga raka trappan som ligger i anslutning till entrén och groventrén. Här finns ett trevligt allrum, badrum, master bedroom med egen klädkammare och ytterligare tre sovrum. Det mindre av dem kan med fördel användas som hemmakontor.

Produktbilderna innehåller tillval, se dem som inspirationsmaterial.

Planlösningar

Planlösning 1 av 2

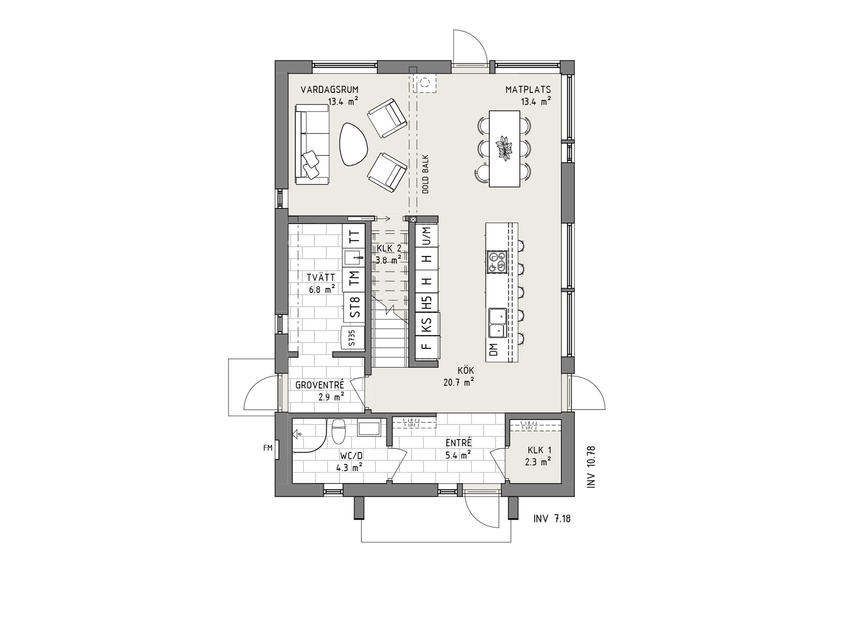
Entrévåning - Modern stil

Från entrén, placerad på gaveln, möts du av stora fönstersektioner på motsatt sida av huset. Samspelet mellan kök, matplats och vardagsrum med den fina bardisken i centrum gör det extra trivsamt att umgås över rumsgränserna.

Planlösning 2 av 2

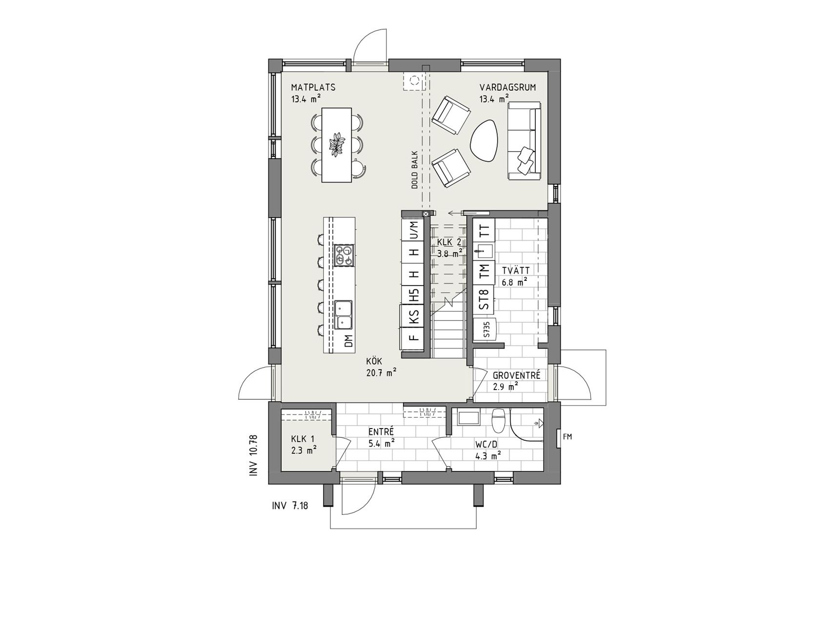
Övervåning - Modern stil

På den ljusa övervåningen möts du först av ett trivsamt allrum. Här uppe hittar du också husets sovrum, där ett gör sig utmärkt som hemmakontor.

Känns det bara nästan rätt?

Då kan vi hjälpa dig att anpassa planlösningen för att den ska passa er perfekt.

Fler planlösningar

1 av 2

Entrévåning - Modern stil

2 av 2

Övervåning - Modern stil

Magnus Hoffner Säljare, Myresjöhus

Nyfiken och vill veta mer?

Vad kostar det?

Hör av dig till oss så återkommer vi med en detaljerad kalkyl baserad på vad och vart du vill bygga.

Bli inspirerad!

Utforska alla våra husmodeller bekvämt hemma i soffan. I brevlådan inom några dagar!

Kontakta oss

Hur vill du att vi kontaktar dig?

Beställ katalog

Maxad inspiration till soffmyset

Silvergran x Modern

I sin moderna stil är Silvergran inspirerad av funktionalismen och dess avskalade arkitektur – men med moderna detaljer och en nutida färgsättning. Den stående funkispanelen ger fin resning åt huset och kombinationen av en modig blå fasadkulör med tak och detaljer i svart skapar vackra kontraster. Fönsterramen på husets entrésida, liksom skärmtaket över entrén och de stora uppglasade partierna på entréplan förstärker den moderna känslan.

Silvergran förmedlar enkelhet med raka linjer och sin modiga, blå färgsättning.
Frida Andersson, Arkitekt

Dina valmöjligheter

Små detaljer som piffar upp och stora tillval som gör dagarna bättre för hela familjen. Något som gör hemmet lite mer personligt. Lite mer perfekt för just dig. 

Bläddra i katalogen

Ett kontrakt, en kontakt

Ert viktigaste val

En fråga som är lika viktig som vilket hus du ska bygga är hur det ska byggas. På Myresjöhus erbjuder vi totalentreprenad till fast pris där din egen projektledare ingår. Nyckelfärdigt hus i ordets rätta bemärkelse!

Mer om totalentreprenad

Uppskattad energiförbrukning

Här kan du få en uppfattning om hur energisnålt ett nytt Myresjöhus faktiskt är. Fyll i din kommun för att se uppskattad energiförbrukning i ditt drömhus just där du vill bygga.

När du väljer en plats du vill bygga på så anpassar vi webbplatsen för att ge dig mer relevant information. Du kan byta plats när som helst.

Energianvändning

(värme & varmvatten)

5 200

kWh/år
Malmö (grundval)

Total energi­användning*

(inklusive hushållsel)

9 900

kWh/år
Energiklass

C

Bo billigare i nybyggt hus

Idag tror många att de inte har råd att bygga ett nytt hus – och allt för många vet heller inte hur mycket billigare det faktiskt är att bo i ett nybyggt hus.

80% lägre energiförbrukning i ett nybyggt Myresjöhus

Att nybyggda hus är energisnåla hus är ingen nyhet, speciellt inte jämfört med äldre villor. Men visste du hur mycket det faktiskt kan skilja?

Spara ännu mer med solceller

Genom att utrusta ditt Myresjöhus med rätt antal solceller kan du nästan bli helt självförsörjande på el. Ett tillval som lönar sig i längden.

Hitta tomt att bygga på

Sök på t.ex. adress, område, stad, kommun, län, projekt-/objektnamn

Liknande hus

Bli OBOS-medlem

Vi på Myresjöhus är en del av OBOS, en av Nordens största bostadsutvecklare. Som OBOS-medlem får du förtur till våra bostäder, tomter och inflyttningsklara hus. Inte nog med förtur, så får du även fina förmåner för vardagsliv och vardagslyx!

Läs mer

Frågor och svar

Hej!

Berätta för oss i vilken kommun du vill bygga. Vi kommer anpassa webbplatsen till din valda kommun för att förenkla för dig.