Klappersten

Allt om detta hus
  • Bygghöjd 7,1 m
  • Byggarea 105 m2
  • Antal rum 4

Arkitekt

Anna Lantz Niklasson

Se alla planlösningar

Ljust 2-planshus med generösa ytor att umgås på

Klappersten är ett väldigt trivsamt tvåplanshus som med 3-4 sovrum passar även den stora familjen. Entréplan bjuder på generösa sociala ytor, och sedan väntar familjens privata oas en trappa upp – med ett stort allrum och en lyxig balkong som extra bonus.

Klappersten erbjuder utsökta ljusinsläpp och vackra siktlinjer rakt igenom huset. Trappans placering och öppningen upp genom bjälklaget låter ljuset flöda mellan de båda våningsplanen. På entréplan finner vi en luftig öppen planlösning för kök, matplats och vardagsrum med dubbla utgångar till uteplats och trädgård. I anslutning till entrén finns också ett utmärkt gästrum eller hemmakontor, toalett med dusch och husets fina tvättstuga med groventré.

På övervåningen finns tre sovrum och ett större allrum. En fransk balkong på entrésidan och en terrass ut mot trädgårdssidan gör att allrummet flödar av ljus från flera väderstreck och blir till en perfekt plats att njuta av utsikten. Här uppe finns också ett rejält badrum med plats för både badkar och dubbeldusch.

Produktbilderna innehåller tillval, se dem som inspirationsmaterial.

Planlösningar

Planlösning 1 av 2

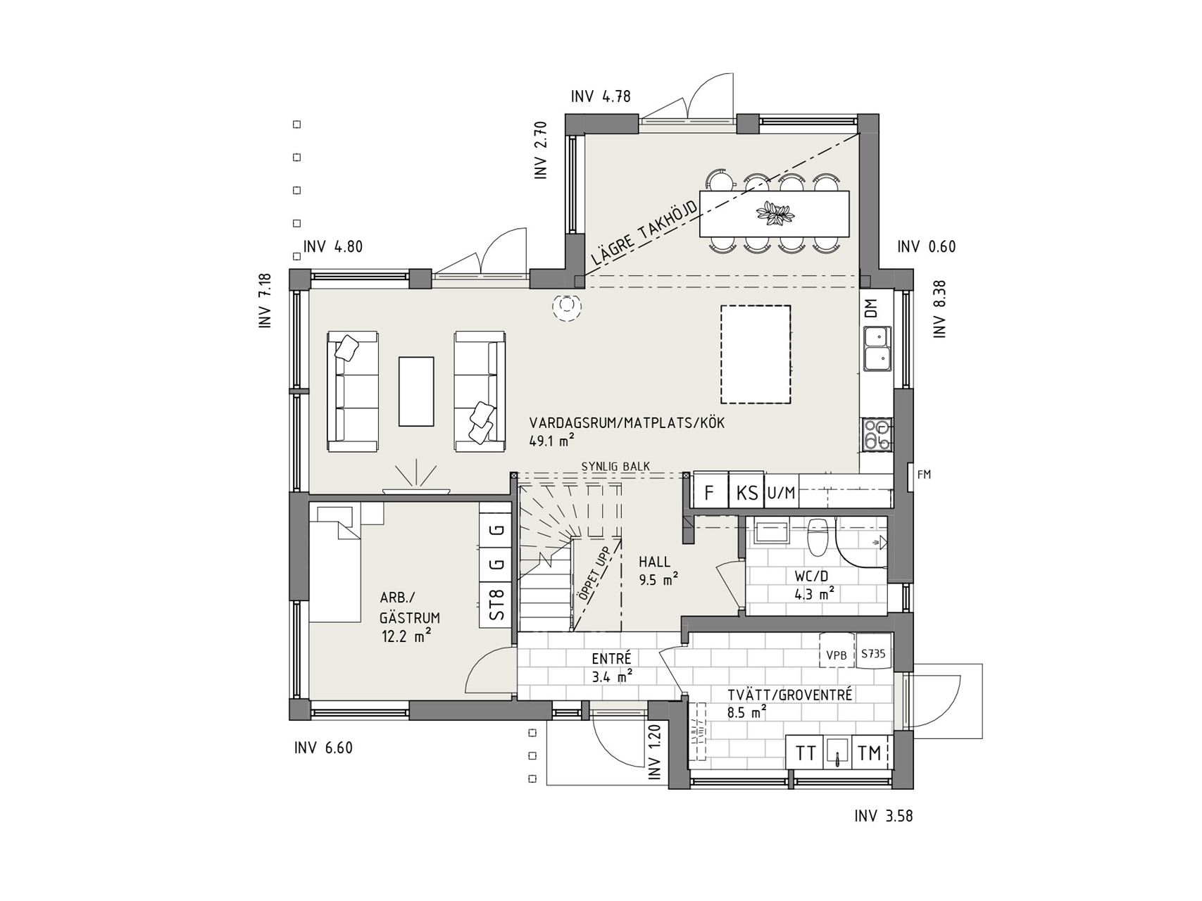
Entrévåning - Modern stil

På entréplanet finns gott om plats för familj och vänner – tack vare en öppen planlösning mellan kök, vardagsrum och matplats. De gemensamma ytorna kantas av öppna fönstersektioner.

Planlösning 2 av 2

Övervåning - Modern stil

En trappa upp hittar du tre av husets sovrum och det stora badrummet, som knyts ihop av allrummet. Från övervåningen når du även husets balkong, där du kan njuta av utsikten från tomten.

Känns det bara nästan rätt?

Då kan vi hjälpa dig att anpassa planlösningen för att den ska passa er perfekt.

Fler planlösningar

1 av 2

Entrévåning - Modern stil

2 av 2

Övervåning - Modern stil

Roger Albinsson Säljare, Myresjöhus

Nyfiken och vill veta mer?

Vad kostar det?

Hör av dig till oss så återkommer vi med en detaljerad kalkyl baserad på vad och vart du vill bygga.

Bli inspirerad!

Utforska alla våra husmodeller bekvämt hemma i soffan. I brevlådan inom några dagar!

Kontakta oss

Hur vill du att vi kontaktar dig?

Beställ katalog

Maxad inspiration till soffmyset

Klappersten x Modern

Med sina rena linjer för den moderna varianten av Klappersten tankarna till nutida funkis. Fasaden med sitt låglutande tak och uppbyggda sargväggar ger ett lite ”boxigt” utseende som trivs allra bäst i en urban miljö. Exteriört kombineras puts med liggande träpanel som färgsatts i en dramatisk svart kulör, Det här är ett tvåplanshus för dig som vill åt en urban känsla inspirerad av dansk design, ett hus som både sticker ut och känns hemtrevligt.

Ett vackert och tidlöst hus med rytmisk fönsterplacering
Anna Lantz Niklasson, Arkitekt

Dina valmöjligheter

Små detaljer som piffar upp och stora tillval som gör dagarna bättre för hela familjen. Något som gör hemmet lite mer personligt. Lite mer perfekt för just dig. 

Bläddra i katalogen

Ett kontrakt, en kontakt

Ert viktigaste val

En fråga som är lika viktig som vilket hus du ska bygga är hur det ska byggas. På Myresjöhus erbjuder vi totalentreprenad till fast pris där din egen projektledare ingår. Nyckelfärdigt hus i ordets rätta bemärkelse!

Mer om totalentreprenad

Hitta tomt att bygga på

Sök på t.ex. adress, område, stad, kommun, län, projekt-/objektnamn

Liknande hus

Bli OBOS-medlem

Vi på Myresjöhus är en del av OBOS, en av Nordens största bostadsutvecklare. Som OBOS-medlem får du förtur till våra bostäder, tomter och inflyttningsklara hus. Inte nog med förtur, så får du även fina förmåner för vardagsliv och vardagslyx!

Läs mer

Frågor och svar

Hej!

Berätta för oss i vilken kommun du vill bygga. Vi kommer anpassa webbplatsen till din valda kommun för att förenkla för dig.