Sandsten

Allt om detta hus
  • Bygghöjd 3,5 m
  • Byggarea 123 m2
  • Antal rum 3 sovrum

Arkitekt

Anna Lantz Niklasson

Se alla planlösningar

Inbjudande 1,5-planshus med nutida avskalad stil.

Sandsten är ett inbjudande 1,5-planshus med härliga umgängesytor på entrévåningen och tre trivsamma sovrum en trappa upp. Alltsammans kännetecknat av ljus och rymd, inte minst tack vare vardagsrummets generösa takhöjd.

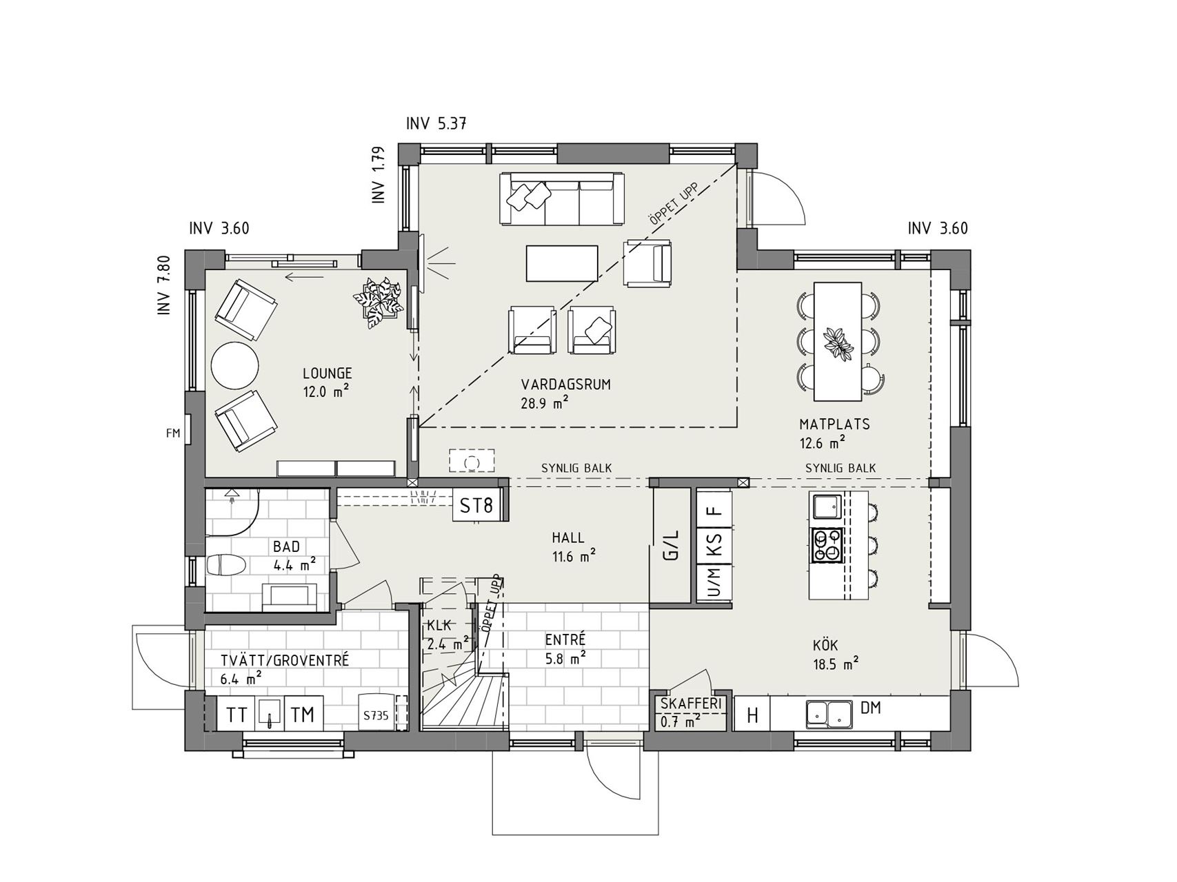
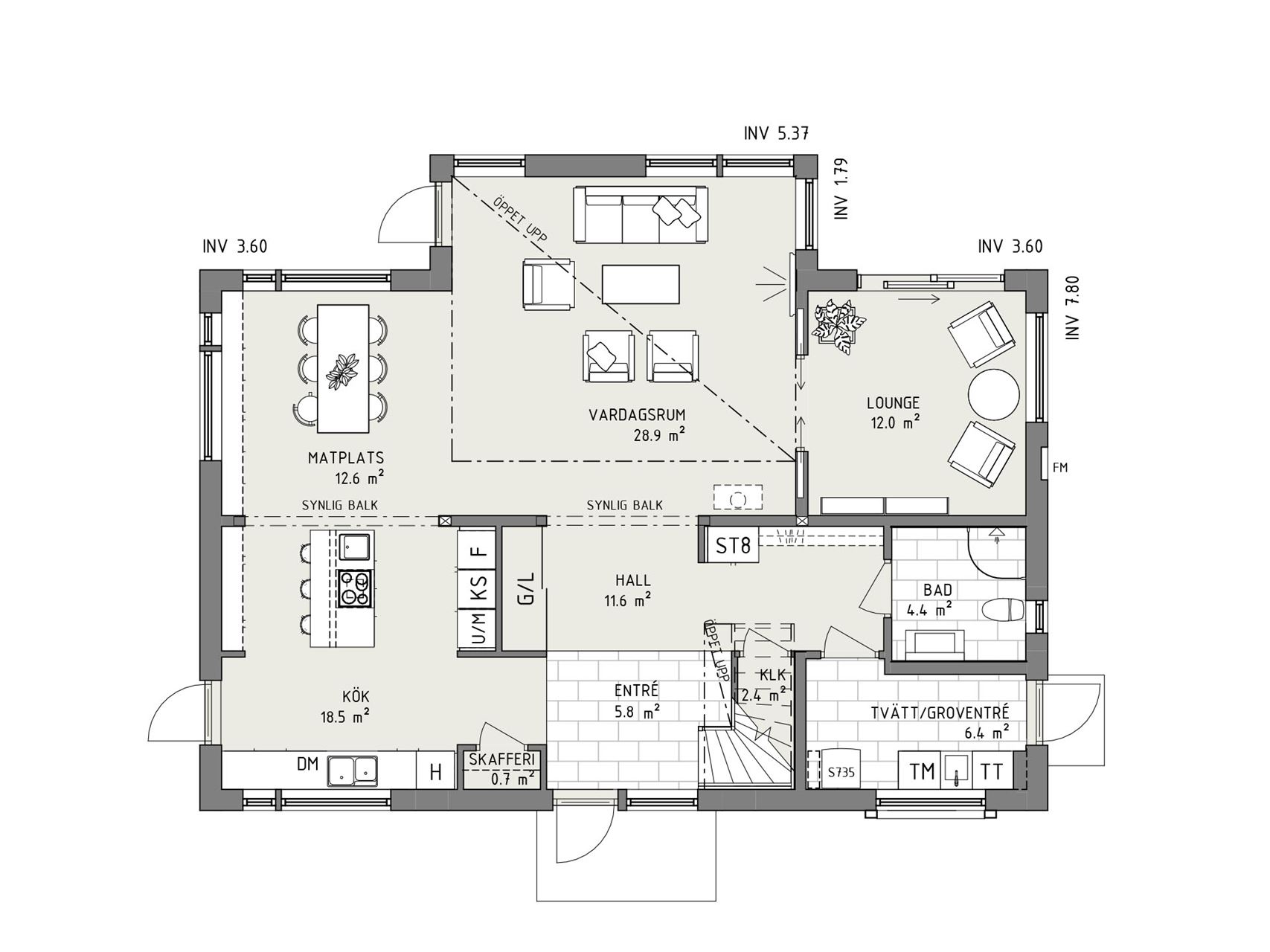
Sandsten välkomnar oss med en rymlig entré med en fin siktlinje rakt in i hemmets sociala härlighet. En väldigt ljus och inbjudande öppen planlösning, där både kök, matplats och vardagsrum ändå har sin egen identitet. Vardagsrummets takhöjd blir extra generös då det är öppet upp till nock, och stora fönster låter ljuset flöda. Vid sidan av vardagsrummet finns också ett extra rum, som passar lika bra som lounge, bibliotek – eller kanske ditt hemmakontor.

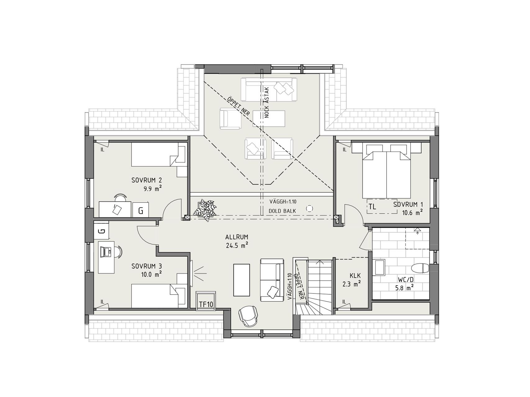
En trappa upp möts vi av ett ljust och trevligt allrum, samt husets tre sovrum, toalett med dusch och en praktisk klädkammare. På tal om praktiska detaljer, så finns det förstås även ett badrum på entrévåningen – liksom en fin tvättstuga med groventré.

Produktbilderna innehåller tillval, se dem som inspirationsmaterial.

Planlösningar

Planlösning 1 av 2

Entrévåning - Modern stil

På undervåningen finns de gemensamma ytorna med en öppen känsla mellan kök, matplats och vardagsrum. I vardagsrummet, med öppet upp till nock, släpps ljuset in från ett effektfullt, asymmetriskt fönster.

Planlösning 2 av 2

Övervåning - Modern stil

En trappa upp finns tre sovrum, badrum och ett allrum som knyter ihop våningen. Här kan du njuta av ljusinsläpp både från baksidans stora fönster i vardagsrummet och framsidans generösa inglasningar.

Känns det bara nästan rätt?

Då kan vi hjälpa dig att anpassa planlösningen för att den ska passa er perfekt.

Fler planlösningar

1 av 2

Entrévåning - Modern stil

2 av 2

Övervåning - Modern stil

Michael Tegnestål Säljare, Myresjöhus

Nyfiken och vill veta mer?

Vad kostar det?

Hör av dig till oss så återkommer vi med en detaljerad kalkyl baserad på vad och vart du vill bygga.

Bli inspirerad!

Utforska alla våra husmodeller bekvämt hemma i soffan. I brevlådan inom några dagar!

Kontakta oss

Hur vill du att vi kontaktar dig?

Beställ katalog

Maxad inspiration till soffmyset

Sandsten x Modern

Sandsten i sin moderna stil bjuder på ett stilsäkert yttre, med en monokrom färgsättning som förstärker exteriörens moderna uttryck. Stående träpanel, stiligt plåttak och stora rena fönsterytor bidrar också till husets nutida elegans. Den generösa fönstersättningen bjuder dessutom omedelbart på ljus, rymd och fint siktdjup så fort du kliver in i entrén.

Träpanelen i en mörkt grå nyans förstärker uttrycket av en modern exteriör.
Anna Lantz Niklasson, Arkitekt

Dina valmöjligheter

Små detaljer som piffar upp och stora tillval som gör dagarna bättre för hela familjen. Något som gör hemmet lite mer personligt. Lite mer perfekt för just dig. 

Bläddra i katalogen

Ett kontrakt, en kontakt

Ert viktigaste val

En fråga som är lika viktig som vilket hus du ska bygga är hur det ska byggas. På Myresjöhus erbjuder vi totalentreprenad till fast pris där din egen projektledare ingår. Nyckelfärdigt hus i ordets rätta bemärkelse!

Mer om totalentreprenad

Hitta tomt att bygga på

Sök på t.ex. adress, område, stad, kommun, län, projekt-/objektnamn

Liknande hus

Bli OBOS-medlem

Vi på Myresjöhus är en del av OBOS, en av Nordens största bostadsutvecklare. Som OBOS-medlem får du förtur till våra bostäder, tomter och inflyttningsklara hus. Inte nog med förtur, så får du även fina förmåner för vardagsliv och vardagslyx!

Läs mer

Frågor och svar

Hej!

Berätta för oss i vilken kommun du vill bygga. Vi kommer anpassa webbplatsen till din valda kommun för att förenkla för dig.