Klipphäll

Allt om detta hus
  • Bygghöjd 3,5 m
  • Byggarea 106 m2
  • Taklutning 45°
  • Antal rum 4 sovrum

Arkitekt

Anna Lantz Niklasson

Se alla planlösningar

Stilfullt 1,5-planshus som passar många olika tomter

Välkommen till Klipphäll, ett modernt och lite kaxigt 1,5-planshus. Arkitekturen är rak och enkel, vilket gör Klipphäll till ett attraktivt hus för de allra flesta tomter. Det är till exempel lika snyggt att placera med långsida mot gata som gavelställt.

Direkt i entrén möts du av ett härligt ljusinsläpp och fint siktdjup. Husets umgängesytor är generösa. Kök, matplats och vardagsrum ligger i fil och upptar hela husets ena långsida – som flödar av ljus från stora fönsterpartier. I vinkel med vardagsrummet ligger husets kontor eller gästrum, som även kan integreras som en del av ett större vardagsrum om ni så önskar.

En trappa upp fortsätter ljusinsläppet att dominera, inte minst tack vare två generösa takfönster i allrummet. Här finns också två barnsovrum och ett större föräldrasovrum med två separata klädkammare, liksom ett badrum med både dusch och badkar.

Produktbilderna innehåller tillval, se dem som inspirationsmaterial.

Planlösningar

Planlösning 1 av 2

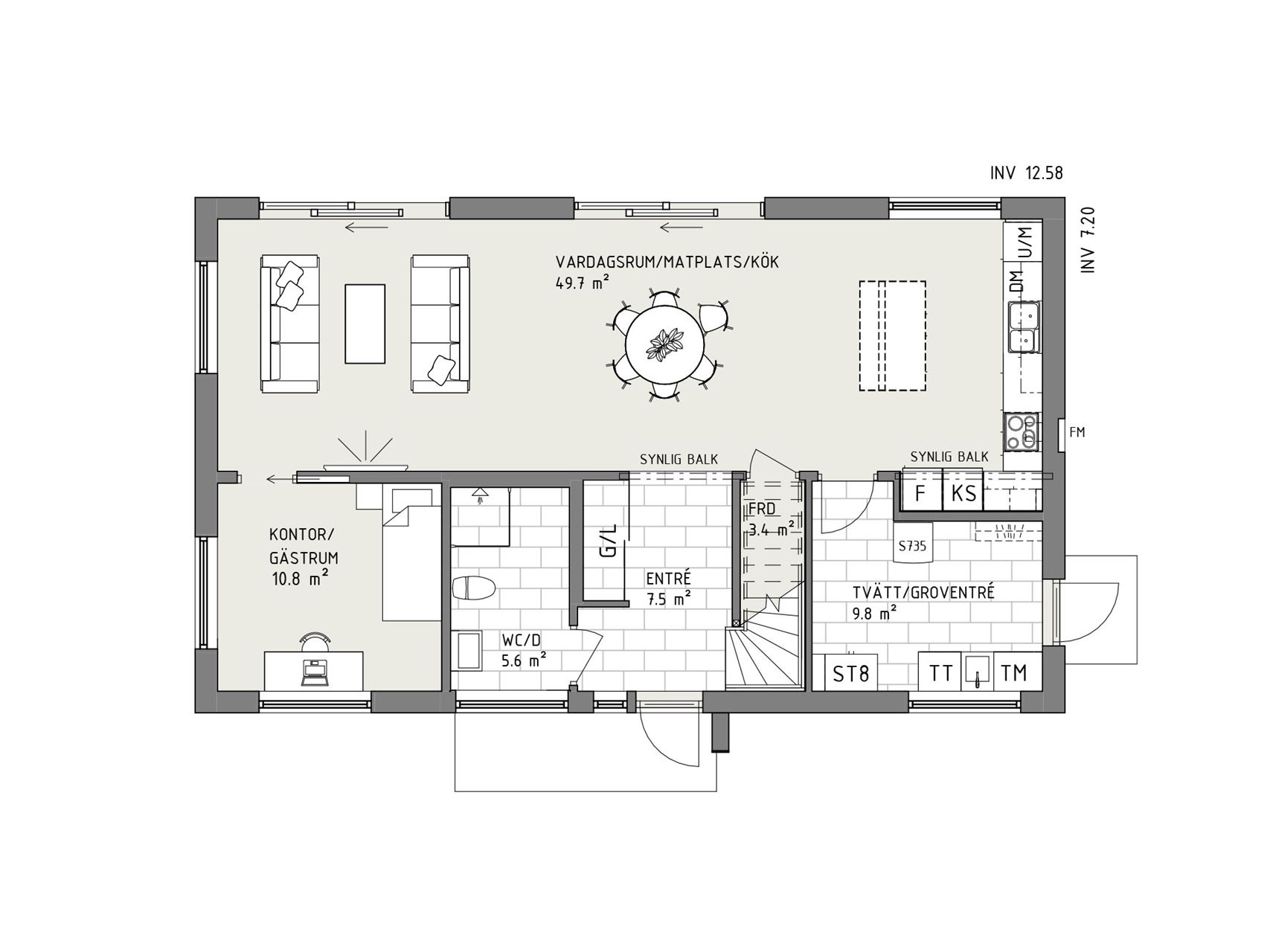
Entrévåning - Modern stil

Här finns gott om rum för det sociala i tillvaron, se bara hur kök och vardagsrum samspelar i all sin glans. Men vi har även tänkt på det praktiska i tillvaron, som bra förvaring och ett generöst klädvårdsrum med groventré.

Planlösning 2 av 2

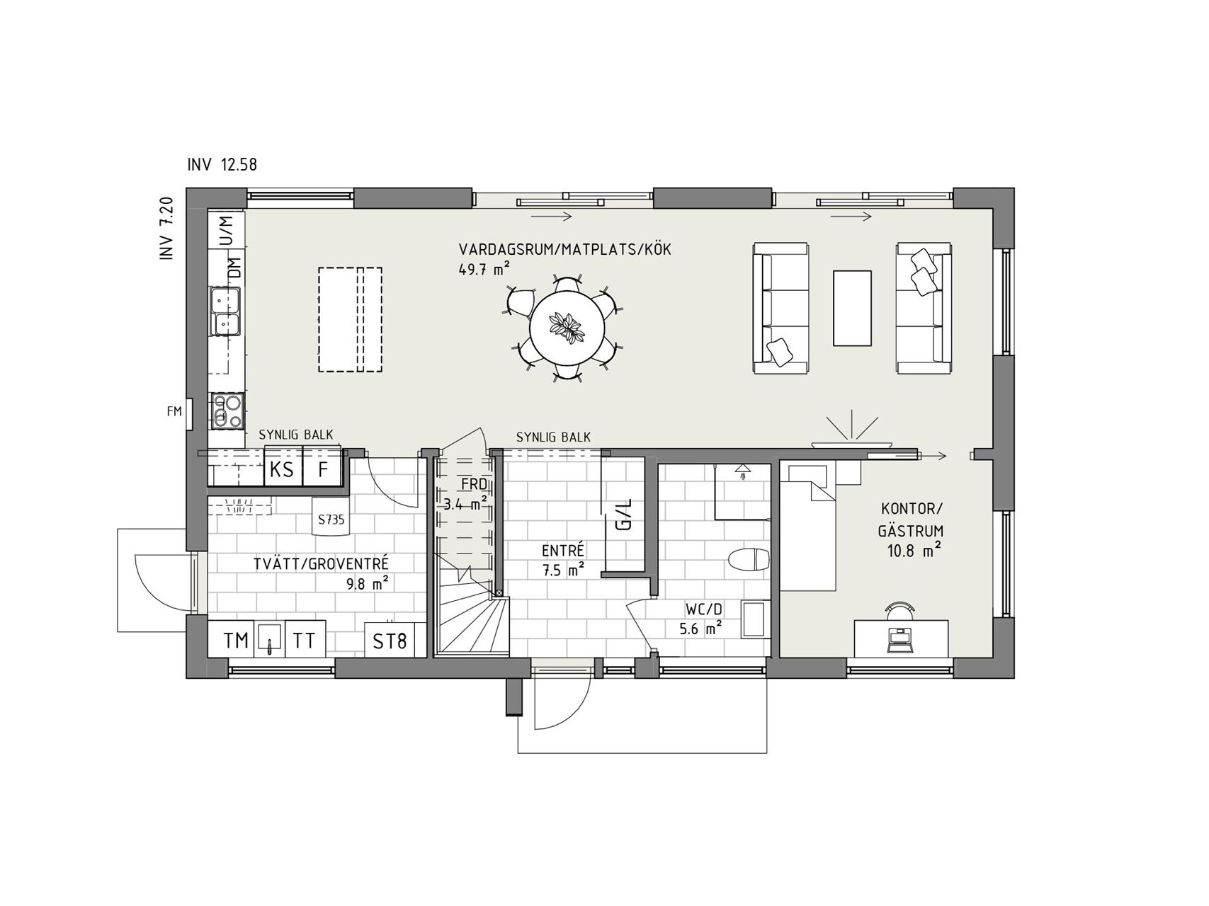
Övervåning - Modern stil

En trappa upp väntar ett ljust och välkomnande allrum, tre sovrum – där det luftiga föräldrasovrummet också erbjuder varsin walk-in-closet – och ett badrum med både dusch och badkar. Genomtänkta detaljer som förhöjer din vardag, helt klart.

Känns det bara nästan rätt?

Då kan vi hjälpa dig att anpassa planlösningen för att den ska passa er perfekt.

Fler planlösningar

1 av 2

Entrévåning - Modern stil

2 av 2

Övervåning - Modern stil

Janne Bergendahl Säljare, Myresjöhus

Nyfiken och vill veta mer?

Vad kostar det?

Hör av dig till oss så återkommer vi med en detaljerad kalkyl baserad på vad och vart du vill bygga.

Bli inspirerad!

Utforska alla våra husmodeller bekvämt hemma i soffan. I brevlådan inom några dagar!

Kontakta oss

Hur vill du att vi kontaktar dig?

Beställ katalog

Maxad inspiration till soffmyset

Klipphäll x Modern

Med sitt rena uttryck av sober elegans hälsar Klipphäll i sin moderna stil dig välkommen till ett alldeles utsökt hem. Här finns gott om rum för det sociala i tillvaron, se bara hur kök och vardagsrum samspelar i all sin glans. Men vi har även tänkt på det praktiska i tillvaron, som bra förvaring och ett generöst klädvårdsrum med groventré.

Huset flödar av ljus från stora fönsterpartier
Anna Lantz Niklasson, Arkitekt

Dina valmöjligheter

Små detaljer som piffar upp och stora tillval som gör dagarna bättre för hela familjen. Något som gör hemmet lite mer personligt. Lite mer perfekt för just dig. 

Bläddra i katalogen

Ett kontrakt, en kontakt

Ert viktigaste val

En fråga som är lika viktig som vilket hus du ska bygga är hur det ska byggas. På Myresjöhus erbjuder vi totalentreprenad till fast pris där din egen projektledare ingår. Nyckelfärdigt hus i ordets rätta bemärkelse!

Mer om totalentreprenad

Hitta tomt att bygga på

Sök på t.ex. adress, område, stad, kommun, län, projekt-/objektnamn

Liknande hus

Bli OBOS-medlem

Vi på Myresjöhus är en del av OBOS, en av Nordens största bostadsutvecklare. Som OBOS-medlem får du förtur till våra bostäder, tomter och inflyttningsklara hus. Inte nog med förtur, så får du även fina förmåner för vardagsliv och vardagslyx!

Läs mer

Frågor och svar

Hej!

Berätta för oss i vilken kommun du vill bygga. Vi kommer anpassa webbplatsen till din valda kommun för att förenkla för dig.