Pärldagg

Allt om detta hus
  • Bygghöjd 3,2 m
  • Byggarea 160 m2
  • Taklutning 34°
  • Antal rum 5 rum och kök

Arkitekt

Frida Andersson

Se planlösning

Ett alldeles utsökt 1-planshus

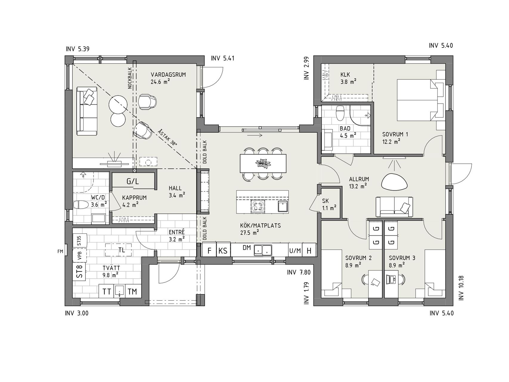
Vårt enplanshus Pärldagg är verkligen något extra: ett H-hus med härliga sociala ytor, fina praktiska detaljer – och en helt privat zon med tre sovrum. H-formen ger också rum för naturligt skyddade och trivsamma uteplatser. Allt detta i en storlek som fungerar även på en tightare tomt.

Pärldagg visar sin charm direkt i entrén. Här kan du antingen visa in dina gäster direkt till vardagsrummets härlighet, efter att ytterkläderna lämnats i kapprummet – eller smita direkt in i köket med dina matkassar. Det välplanerade köket serveras med fina fönster över diskbänken och riktigt skafferi. Tillsammans med matplatsen huserar det i mitten av huset, med smidig access till uteplatsen. Härifrån har du också fin kontakt med det inbjudande vardagsrummet som har en utsökt rymd och badar i ljus från tre väderstreck.

I H:ets andra ben väntar husets privata oas, med ett trevligt allrum i centrum. På ena sidan av det, ett rofyllt master bedroom med egen walk-in-closet och fönster ut mot trädgården. På den andra, två sovrum till. I den här delen finns också husets fina badrum. Toalett med dusch hittar vi granne med kapprummet i entrén. Direkt i entrén når vi också husets riktigt rymliga tvättstuga.

Produktbilderna innehåller tillval, se dem som inspirationsmaterial.

Planlösning

Modern stil

Här ser vi hur varje rum får sin egen identitet, utan att försaka härlig öppenhet. På ena sidan: vardagsrummet, i mitten: kök och matplats, på andra sidan: husets privata zon. Alltsammans med ett generöst ljusinsläpp från stora, rena fönsterytor.

Känns det bara nästan rätt?

Då kan vi hjälpa dig att anpassa planlösningen för att den ska passa er perfekt.

Michael Tegnestål Säljare, Myresjöhus

Nyfiken och vill veta mer?

Vad kostar det?

Hör av dig till oss så återkommer vi med en detaljerad kalkyl baserad på vad och vart du vill bygga.

Bli inspirerad!

Utforska alla våra husmodeller bekvämt hemma i soffan. I brevlådan inom några dagar!

Kontakta oss

Hur vill du att vi kontaktar dig?

Beställ katalog

Maxad inspiration till soffmyset

Pärldagg x Modern

Uttrycksfulla linjer, stora rena fönsterytor och en stilren färgsättning inspirerad av naturen. Pärldagg i modern stil har allt man kan önska sig av ett hus byggt enligt dagens preferenser. Här ser vi en fasad i värmebehandlad panel, vackert kombinerat med ett svart tak. Den ockragula nyansen på fönster och entrédörr skänker samtidigt välkommen kontrast och förstärker husets uttryck.

De uppglasade ytorna ger en fin koppling mellan kök, vardagsrum och uteplats
Frida Andersson, Arkitekt

Dina valmöjligheter

Små detaljer som piffar upp och stora tillval som gör dagarna bättre för hela familjen. Något som gör hemmet lite mer personligt. Lite mer perfekt för just dig. 

Bläddra i katalogen

Ett kontrakt, en kontakt

Ert viktigaste val

En fråga som är lika viktig som vilket hus du ska bygga är hur det ska byggas. På Myresjöhus erbjuder vi totalentreprenad till fast pris där din egen projektledare ingår. Nyckelfärdigt hus i ordets rätta bemärkelse!

Mer om totalentreprenad

Hitta tomt att bygga på

Sök på t.ex. adress, område, stad, kommun, län, projekt-/objektnamn

Liknande hus

Bli OBOS-medlem

Vi på Myresjöhus är en del av OBOS, en av Nordens största bostadsutvecklare. Som OBOS-medlem får du förtur till våra bostäder, tomter och inflyttningsklara hus. Inte nog med förtur, så får du även fina förmåner för vardagsliv och vardagslyx!

Läs mer

Frågor och svar

Hej!

Berätta för oss i vilken kommun du vill bygga. Vi kommer anpassa webbplatsen till din valda kommun för att förenkla för dig.