Sjöbris

Allt om detta hus
  • Bygghöjd 3,7 m
  • Byggarea 196 m2
  • Antal rum 4 sovrum

Arkitekt

Anna Lantz Niklasson

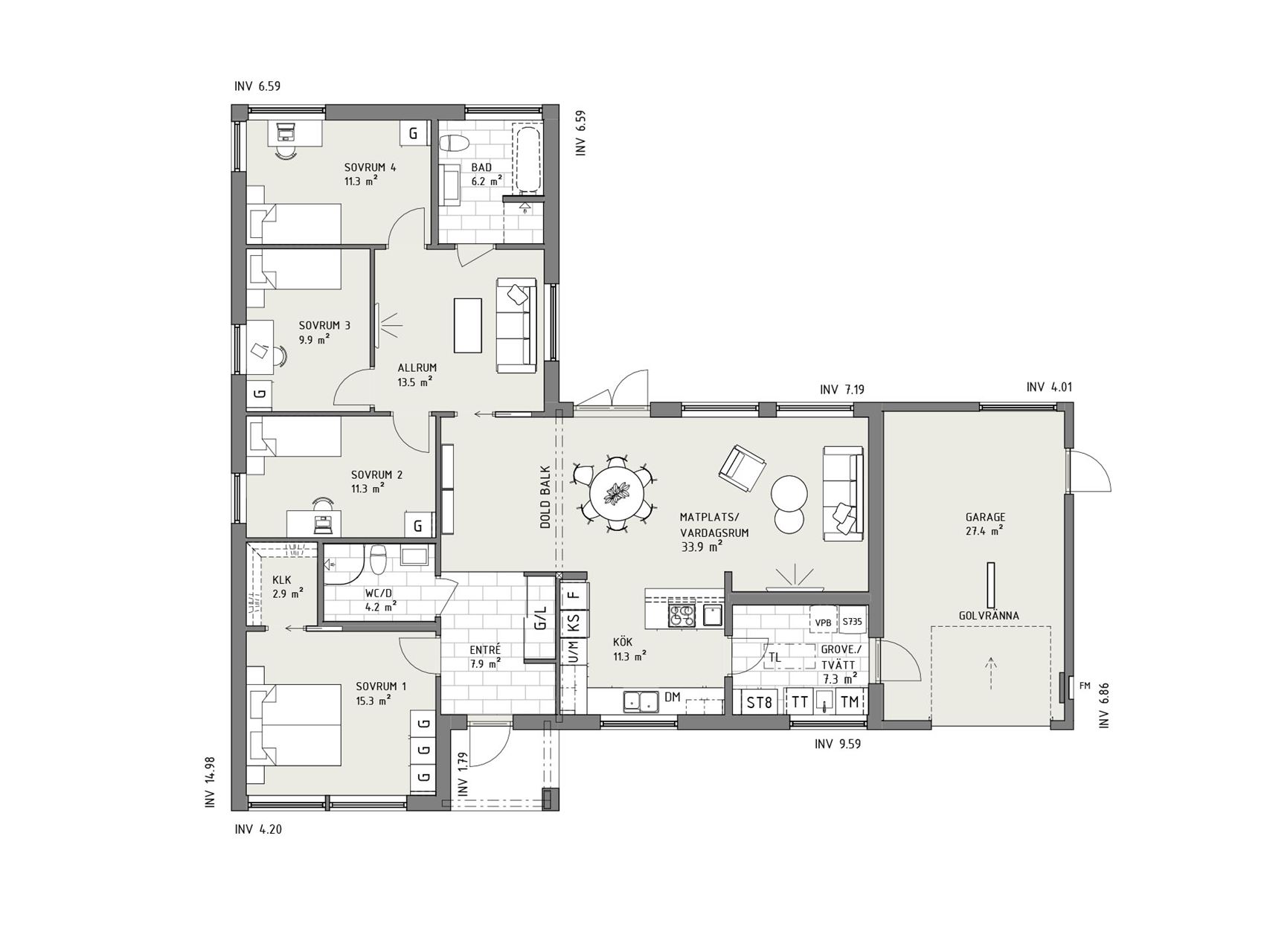
Se planlösning

Generöst 1-planshus i vinkel med härlig planlösning.

Sjöbris är ett större enplanshus som med sina två vinklar har rum för det mesta man kan önska sig. Den ena bjuder in till härligt umgänge, i den andra väntar fyra fina sovrum.

Sjöbris är ett klassiskt vinkelhus som innehåller en lika modern som trivsam planlösning uppdelad i två olika zoner: en social och en privat. I den sociala zonen, där ryggåstaket bidrar med underbar rymd, finns det gott om plats att umgås med familj och vänner. Husets vinkelform skapar också en naturlig uteplats med skydd från vinden – perfekt när du placerar huset i ett öppnare landskap, kanske med risk för sjöbris?

I husets privata zon hittar vi hela fyra sovrum, badrum och ett mysigt allrum. Det största sovrummet ligger lite för sig själv i anslutning till entrén och har egen klädkammare. Med ingång från entrén finns en toalett med dusch och husets praktiska tvättstuga når du från köket. Den har även en groventré som leder ut i det påkopplade garaget – en smart lösning för lite mindre tomter, där garage annars är svårt att få plats med.

Produktbilderna innehåller tillval, se dem som inspirationsmaterial.

 

Planlösning

Modern stil

Från husets gemensamma ytor har du kontakt med utsidan, via generösa inglasade ytor som ger enkel tillgång till trädgården. Husets sovrum ligger på motsatt sida av huset, tillsammans med ett mindre allrum.

Känns det bara nästan rätt?

Då kan vi hjälpa dig att anpassa planlösningen för att den ska passa er perfekt.

Patrik Ekstrand Säljare, Myresjöhus

Nyfiken och vill veta mer?

Vad kostar det?

Hör av dig till oss så återkommer vi med en detaljerad kalkyl baserad på vad och vart du vill bygga.

Bli inspirerad!

Utforska alla våra husmodeller bekvämt hemma i soffan. I brevlådan inom några dagar!

Kontakta oss

Hur vill du att vi kontaktar dig?

Beställ katalog

Maxad inspiration till soffmyset

Sjöbris x Modern

I sin moderna stil får Sjöbris klassiska form en uppdaterad look med fasadens kombination av slät puts och en midja av liggande panel – och en lite annorlunda fönsterplacering. En stilren kombination där den moderna, lite stramare, känslan förstärks av det plåtinklädda gavelkrönet. Sjöbris i modern stil passar väl in i en stadsmiljö eller längs med kustbandet.

Med det påkopplade garaget kan Sjöbris även placeras på lite mindre tomter.
Anna Lantz Niklasson, Arkitekt

Dina valmöjligheter

Små detaljer som piffar upp och stora tillval som gör dagarna bättre för hela familjen. Något som gör hemmet lite mer personligt. Lite mer perfekt för just dig. 

Bläddra i katalogen

Ett kontrakt, en kontakt

Ert viktigaste val

En fråga som är lika viktig som vilket hus du ska bygga är hur det ska byggas. På Myresjöhus erbjuder vi totalentreprenad till fast pris där din egen projektledare ingår. Nyckelfärdigt hus i ordets rätta bemärkelse!

Mer om totalentreprenad

Hitta tomt att bygga på

Sök på t.ex. adress, område, stad, kommun, län, projekt-/objektnamn

Liknande hus

Bli OBOS-medlem

Vi på Myresjöhus är en del av OBOS, en av Nordens största bostadsutvecklare. Som OBOS-medlem får du förtur till våra bostäder, tomter och inflyttningsklara hus. Inte nog med förtur, så får du även fina förmåner för vardagsliv och vardagslyx!

Läs mer

Frågor och svar

Hej!

Berätta för oss i vilken kommun du vill bygga. Vi kommer anpassa webbplatsen till din valda kommun för att förenkla för dig.