• Bygghöjd 3,2 m
  • Byggarea 179 m2
  • Taklutning 38°
  • Antal rum 6 rum och kök

Arkitekt

Frida Andersson

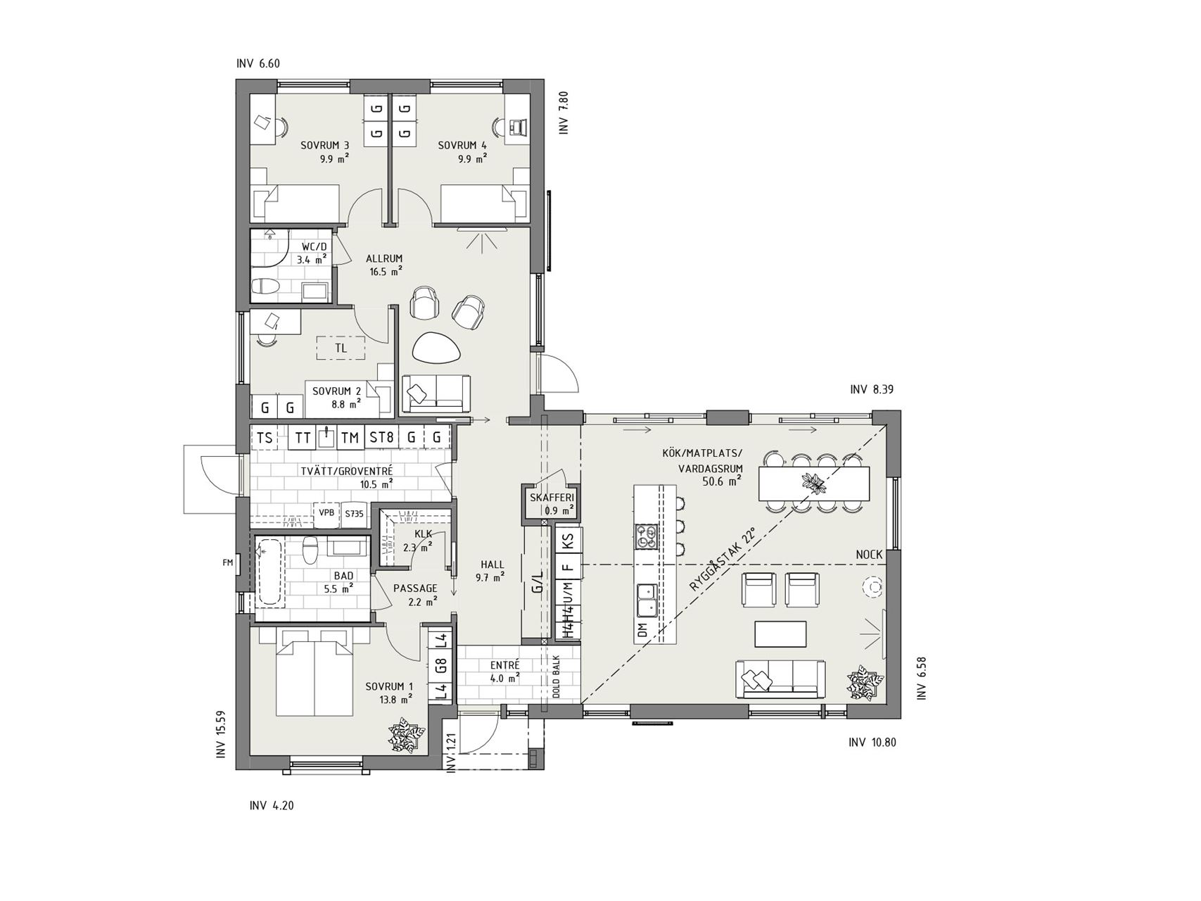
Se planlösning

Ytterst tilltalande 1-planshus i vinkel

Rimfrost är ett lika vackert som välfungerande enplanshus med rum för det mesta en vill ha ut av huslivet. Öppen planlösning för kök och vardagsrum, fin barnavdelning med tre sovrum – och ett master bedroom med hotellkänsla. Det är bara några av höjdpunkterna.

Rimfrost bjuder på en väl genomtänkt planlösning, ett härligt ljusinsläpp från stora fönsterytor och gott om detaljer som ger ett hem det lilla extra. Direkt i entrén kan vi antingen välja att svänga rakt in i den fina öppna planlösningen för kök och vardagsrum, eller fortsätta in i husets mer privata sfär. Där välkomnas vi först av gott om förvaring, ett fint badrum – och granne med det: husets luftiga master bedroom, som tack vare sitt privata läge med närhet till badrummet får fin hotellkänsla.

Näst på tur är en generös tvättstuga med groventré, och sedan kommer det som kanske blir barnens egen domän. Tre sovrum och en toalett med dusch grupperade runt ett mysigt allrum som även har utgång till trädgård och uteplats. Men kanske har vi ändå sparat det bästa till sist? Rimfrosts sociala nav som badar i ljus från tre väderstreck. Förutom gott om plats för att umgås på finns här ett supersnyggt studiokök – och ett riktigt skafferi.

Produktbilderna innehåller tillval, se dem som inspirationsmaterial.

Planlösning

Modern stil

Här ser vi en fin uppdelning mellan öppna sociala ytor och familjens privata sfär med totalt fyra sovrum. Stora, rena fönsterytor låter ljuset flöda och husets vinkel skapar en utsökt plats för uteplats.

Känns det bara nästan rätt?

Då kan vi hjälpa dig att anpassa planlösningen för att den ska passa er perfekt.

Mattias Starlander Säljare, Myresjöhus

Nyfiken och vill veta mer?

Vad kostar det?

Hör av dig till oss så återkommer vi med en detaljerad kalkyl baserad på vad och vart du vill bygga.

Bli inspirerad!

Utforska alla våra husmodeller bekvämt hemma i soffan. I brevlådan inom några dagar!

Kontakta oss

Hur vill du att vi kontaktar dig?

Beställ katalog

Maxad inspiration till soffmyset

Rimfrost x Modern

Rimfrost i modern stil bjuder på stram elegans. Fasaden pryds av stående panel i en vilsam grågrön nyans kombinerat med teakfärgade fönster som både bidrar med värme och ger en vacker kontrast. Brant sadeltak, höga fönster och dekorativa detaljer i form av fönsterluckor och entrésidans fönsterram ger huset sin moderna karaktär.

Ett hus med fina vinklar som bjuder på mycket funktion för sin yta.
Frida Andersson, Arkitekt

Dina valmöjligheter

Små detaljer som piffar upp och stora tillval som gör dagarna bättre för hela familjen. Något som gör hemmet lite mer personligt. Lite mer perfekt för just dig. 

Bläddra i katalogen

Ett kontrakt, en kontakt

Ert viktigaste val

En fråga som är lika viktig som vilket hus du ska bygga är hur det ska byggas. På Myresjöhus erbjuder vi totalentreprenad till fast pris där din egen projektledare ingår. Nyckelfärdigt hus i ordets rätta bemärkelse!

Mer om totalentreprenad

Hitta tomt att bygga på

Sök på t.ex. adress, område, stad, kommun, län, projekt-/objektnamn

Liknande hus

Bli OBOS-medlem

Vi på Myresjöhus är en del av OBOS, en av Nordens största bostadsutvecklare. Som OBOS-medlem får du förtur till våra bostäder, tomter och inflyttningsklara hus. Inte nog med förtur, så får du även fina förmåner för vardagsliv och vardagslyx!

Läs mer

Frågor och svar

Hej!

Berätta för oss i vilken kommun du vill bygga. Vi kommer anpassa webbplatsen till din valda kommun för att förenkla för dig.