Smart 147

Allt om detta hus
  • Bygghöjd 4,9 m
  • Byggarea 87 m2
  • Taklutning 27°
  • Antal rum 7 rum och kök

Arkitekt

Frida Andersson

Se alla planlösningar

Ett underbart smart suterränghus

Har du en sluttande tomt? Låt oss presentera Smart 147, ett suterränghus (eller sluttningshus) med gott om riktigt smarta lösningar. Huset är till exempel helt perfekt för tonårsfamiljen, eftersom ungdomarna kan få en egen våning att husera på – men säkerligen också för många andra.

I Smart 147 gör du entré på sluttningsplanet och möts av en rymlig, trevlig hall. Sedan kommer du in i det ljusa allrummet med eget pentry – ett rum fyllt av möjligheter. Blir det pysselrum för barnen, gamingstation eller kanske ditt hemmakontor? På detta plan finns även tre sovrum, badrum, tvättstuga och en praktisk klädkammare under trappan.

När du sedan tar trappan upp väntar något alldeles extra. Här öppnar huset upp sig i all sin glans, du möts av ljus från flera håll. Här bättras också de redan sociala ytorna på med en alldeles spektakulär balkong. En annan fin ingrediens är hur kökets placering bidrar till att skapa rum i rummet och att matplatsen är placerad ut mot trädgården. Lite avskilt från den sociala ytan hittar vi sedan ytterligare två sovrum, det största med egen walk-in-closet, och en toalett med dusch. En privat sfär, bara så där.

Produktbilderna innehåller tillval, se dem som inspirationsmaterial.

Planlösningar

Planlösning 1 av 2

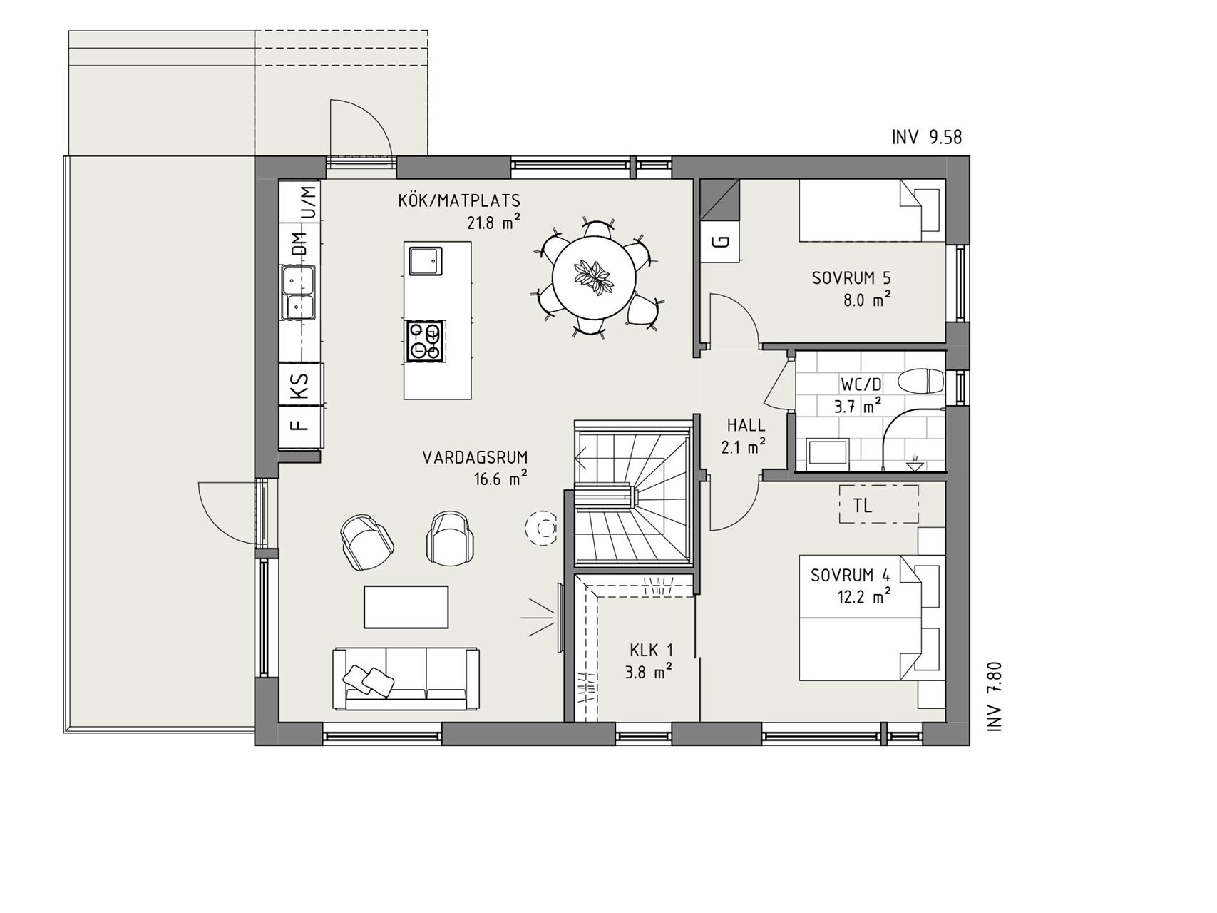
Lantlig stil - Entrévåning

Tre sovrum och praktiska finheter som badrum, tvättstuga och klädkammare – och allrummet med eget pentry, en smart fördel som öppnar för många möjligheter. Från tonårshäng till egen verksamhet – eller vad du nu önskar.

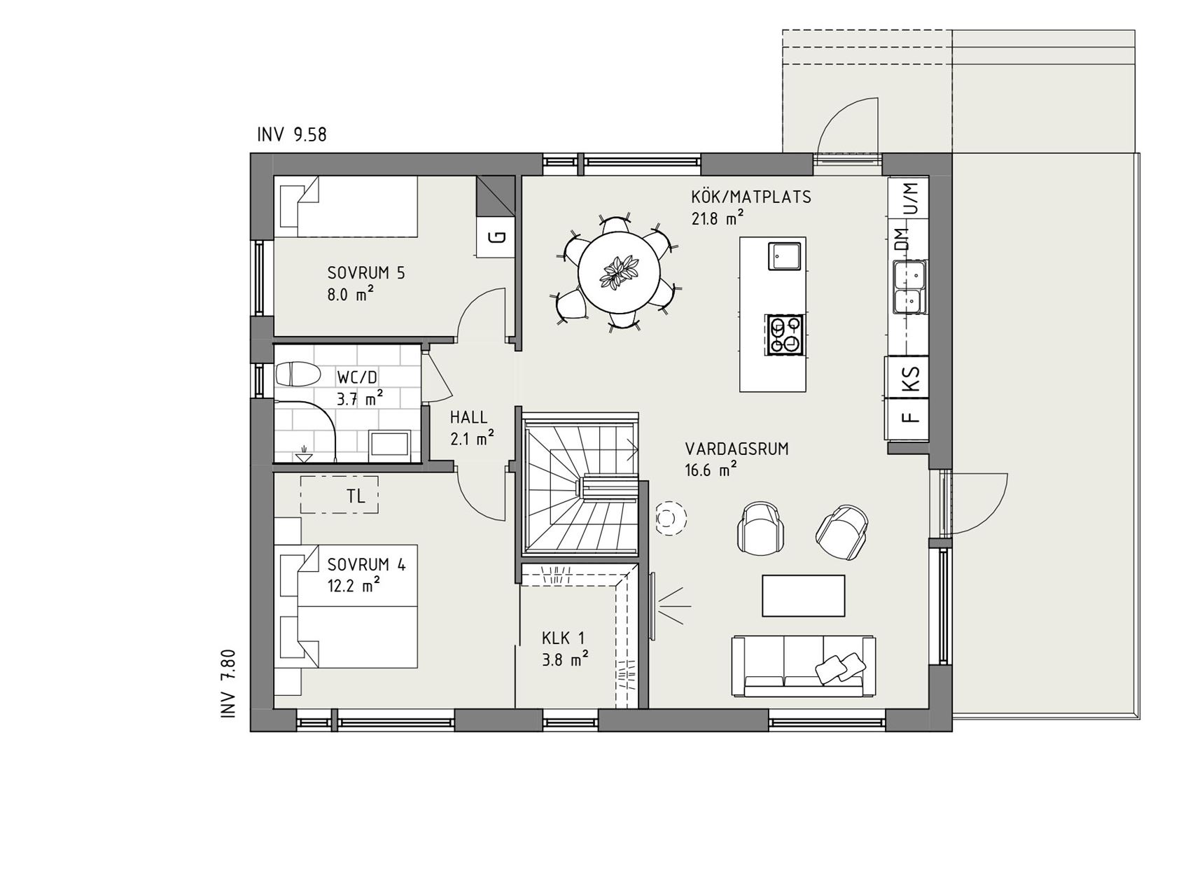
Planlösning 2 av 2

Lantlig stil - Övervåning

Smart 147 bjuder på wow-känsla på det sociala planet, tack vare fint ljusinsläpp. Men här finns också ytterligare två sovrum, lite avskilt från händelsernas centrum.

Fler planlösningar

1 av 2

Lantlig stil - Entrévåning

2 av 2

Lantlig stil - Övervåning

Roger Albinsson Säljare, Myresjöhus

Nyfiken och vill veta mer?

Vad kostar det?

Hör av dig till oss så återkommer vi med en detaljerad kalkyl baserad på vad och vart du vill bygga.

Bli inspirerad!

Utforska alla våra husmodeller bekvämt hemma i soffan. I brevlådan inom några dagar!

Kontakta oss

Hur vill du att vi kontaktar dig?

Beställ katalog

Maxad inspiration till soffmyset

Tidlös lantlig charm

I lantlig stil bjuder Smart 147 på en symmetrisk fönstersättning mot framsidan med ett vertikalt fönsterspråk. Panelen på huset är liggande och sadeltaket avslutas med den nätta skånetakfoten. Huset är färgsatt i en mjuk lingrön kulör som bryts av med fönsterfoder och knutar i brutet vitt. Takbeklädnaden består av ett tegelrött tak och de spröjsade fönstren, liksom entrédörren har fått en vacker ockragul nyans. Över entrén ser vi även det typiska entrétaket för husserien i lantlig stil. Taket ger en tydlig inramning till entrén och adderar ytterligare känsla för stilen.

Smart 147 erbjuds i två olika utföranden, var och en med sin egen fönsterkonfiguration som tillsammans med färgsättning och val av detaljer ger stora möjligheter att skapa olika uttryck. Kanske föredrar du en industriell känsla med attityd, eller ett modernt stilrent uttryck. Valet är ditt.

Utblicken när du kommer upp för trappan, med ljus från tre väderstreck, är verkligen något extra.
Frida Andersson, Arkitekt

Dina valmöjligheter

Små detaljer som piffar upp och stora tillval som gör dagarna bättre för hela familjen. Något som gör hemmet lite mer personligt. Lite mer perfekt för just dig. 

Bläddra i katalogen

Ett kontrakt, en kontakt

Ert viktigaste val

En fråga som är lika viktig som vilket hus du ska bygga är hur det ska byggas. På Myresjöhus erbjuder vi totalentreprenad till fast pris där din egen projektledare ingår. Nyckelfärdigt hus i ordets rätta bemärkelse!

Mer om totalentreprenad

Uppskattad energiförbrukning

Här kan du få en uppfattning om hur energisnålt ett nytt Myresjöhus faktiskt är. Fyll i din kommun för att se uppskattad energiförbrukning i ditt drömhus just där du vill bygga.

När du väljer en plats du vill bygga på så anpassar vi webbplatsen för att ge dig mer relevant information. Du kan byta plats när som helst.

Energianvändning

(värme & varmvatten)

4 600

kWh/år
Malmö (grundval)

Total energi­användning*

(inklusive hushållsel)

9 000

kWh/år
Energiklass

B

Bo billigare i nybyggt hus

Idag tror många att de inte har råd att bygga ett nytt hus – och allt för många vet heller inte hur mycket billigare det faktiskt är att bo i ett nybyggt hus.

80% lägre energiförbrukning i ett nybyggt Myresjöhus

Att nybyggda hus är energisnåla hus är ingen nyhet, speciellt inte jämfört med äldre villor. Men visste du hur mycket det faktiskt kan skilja?

Spara ännu mer med solceller

Genom att utrusta ditt Myresjöhus med rätt antal solceller kan du nästan bli helt självförsörjande på el. Ett tillval som lönar sig i längden.

Hitta tomt att bygga på

Sök på t.ex. adress, område, stad, kommun, län, projekt-/objektnamn

Liknande hus

Bli OBOS-medlem

Vi på Myresjöhus är en del av OBOS, en av Nordens största bostadsutvecklare. Som OBOS-medlem får du förtur till våra bostäder, tomter och inflyttningsklara hus. Inte nog med förtur, så får du även fina förmåner för vardagsliv och vardagslyx!

Läs mer

Frågor och svar

Hej!

Berätta för oss i vilken kommun du vill bygga. Vi kommer anpassa webbplatsen till din valda kommun för att förenkla för dig.