Saltstänk

Allt om detta hus
  • Bygghöjd 3,8 m
  • Byggarea 137 m2
  • Antal rum 5 sovrum

Arkitekt

Anna Lantz Niklasson

Se alla planlösningar

Stilrent 1,5-planshus i vinkel för den stora familjen

Saltstänk är ett 1,5-planshus som med fem sovrum passar perfekt för den stora familjen. Här skapar vinkeln på husets baksida en naturligt skyddad uteplats och en fin rumslighet i trädgården, lättåtkomlig från såväl kök som vardagsrum.

I den rymliga entrén finns generös förvaring och ingång till husets lilla toalett samt tvättstugan med praktisk groventré. Härifrån har du ett fint siktdjup genom hela huset och ett härligt ljusinsläpp välkomnar dig in i en lagom öppen planlösning, där vardagsrummet i vinkeldelen med sitt ryggåstak bryter av mot kök och matplats, vilket skapar en naturlig rumsindelning.

Köket är väldisponerat, med riktigt skafferi och fönster över diskbänken som extra plus. På entréplan hittar vi även husets stora sovrum med walk-in-closet och egen toalett med dusch. Och en trappa upp finns både ett trivsamt allrum, ytterligare fyra sovrum och ett fint badrum.

Produktbilderna innehåller tillval, se dem som inspirationsmaterial.

Planlösningar

Planlösning 1 av 2

Entréplan - Industriell stil

Husets svarta, småspröjsade fönster och altandörr sprider ljus över entréplanet – och knyter ihop insidan med uteplatsen via vardagsrummet. I anslutningen till matplatsen finns husets stora sovrum.

Planlösning 2 av 2

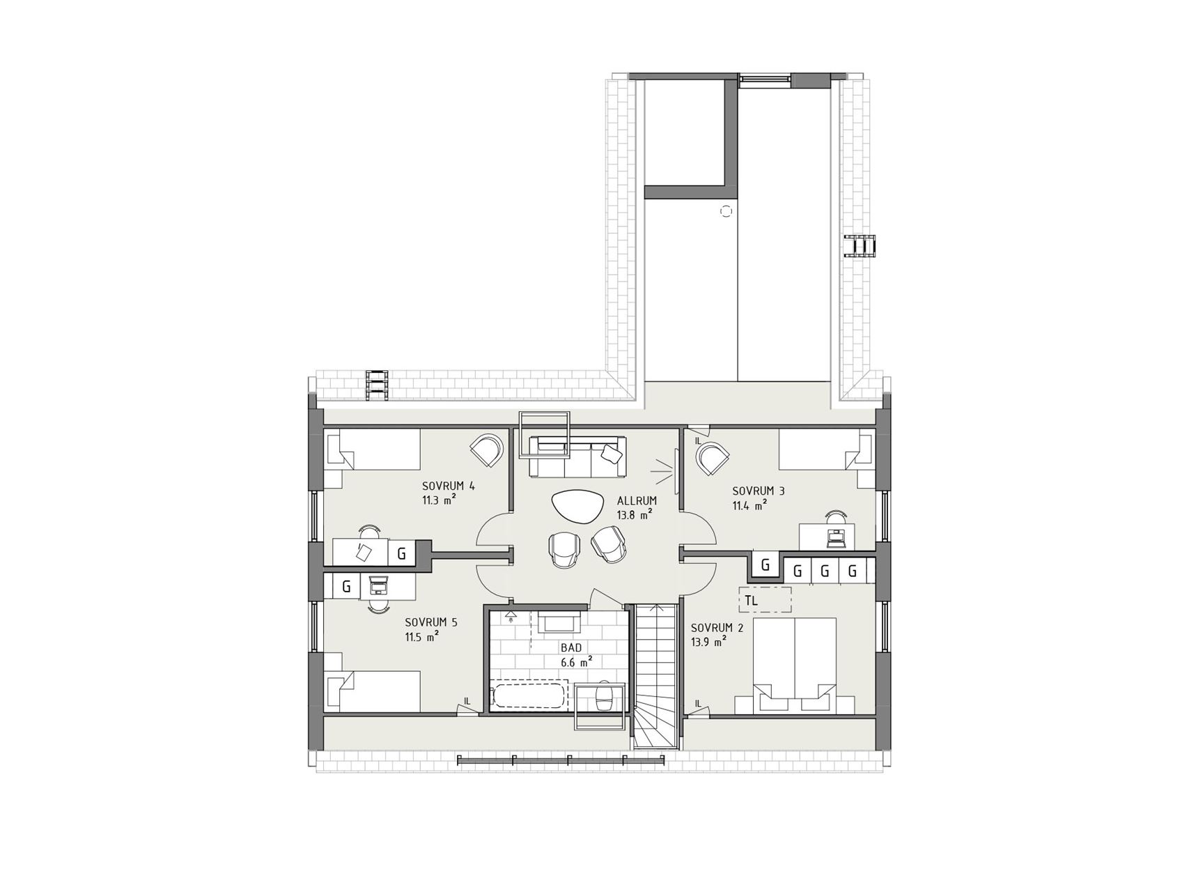
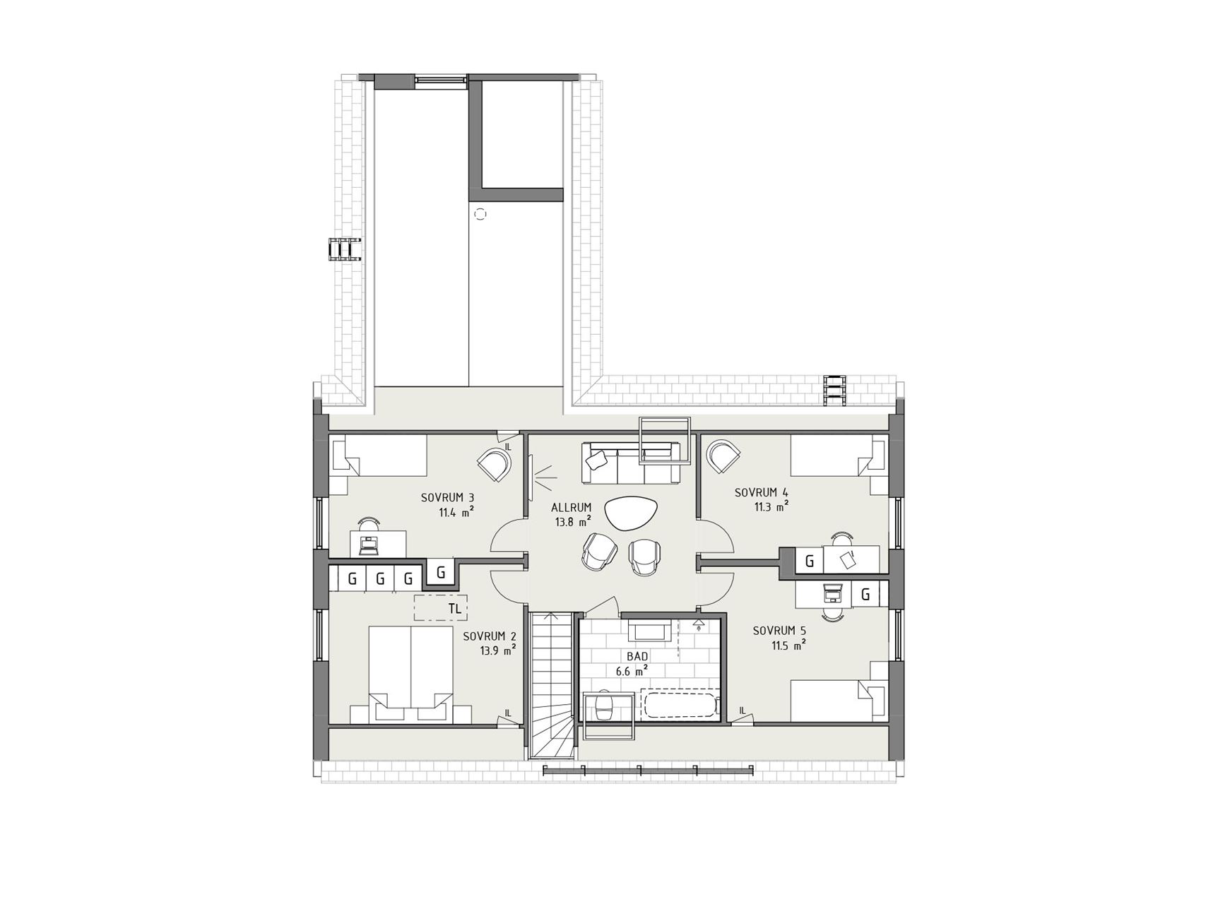
Övervåning - Industriell stil

Från allrummet på övervåningen når du fyra sovrum till. Var och ett har ljusinsläpp från gavlarna, via svarta fönster i industristil. Takfönster lyser upp både allrum och badrum på övervåningen.

Känns det bara nästan rätt?

Då kan vi hjälpa dig att anpassa planlösningen för att den ska passa er perfekt.

Fler planlösningar

1 av 2

Entréplan - Industriell stil

2 av 2

Övervåning - Industriell stil

Helen Hedlund Säljare, Myresjöhus

Nyfiken och vill veta mer?

Vad kostar det?

Hör av dig till oss så återkommer vi med en detaljerad kalkyl baserad på vad och vart du vill bygga.

Bli inspirerad!

Utforska alla våra husmodeller bekvämt hemma i soffan. I brevlådan inom några dagar!

Kontakta oss

Hur vill du att vi kontaktar dig?

Beställ katalog

Maxad inspiration till soffmyset

Saltstänk x Industriell

I sin industriella stil har Saltstänk en fasad där vit puts möter svart träpanel. Huset har svarta, spröjsade industrifönster som ger huset sin typiska karaktär – och för tankarna till gamla industribyggnader.

Den industriella stilen bjuder på tydliga kontraster i val av både material och kulörer.
Anna Lantz Niklasson, Arkitekt

Dina valmöjligheter

Små detaljer som piffar upp och stora tillval som gör dagarna bättre för hela familjen. Något som gör hemmet lite mer personligt. Lite mer perfekt för just dig. 

Bläddra i katalogen

Ett kontrakt, en kontakt

Ert viktigaste val

En fråga som är lika viktig som vilket hus du ska bygga är hur det ska byggas. På Myresjöhus erbjuder vi totalentreprenad till fast pris där din egen projektledare ingår. Nyckelfärdigt hus i ordets rätta bemärkelse!

Mer om totalentreprenad

Hitta tomt att bygga på

Sök på t.ex. adress, område, stad, kommun, län, projekt-/objektnamn

Liknande hus

Bli OBOS-medlem

Vi på Myresjöhus är en del av OBOS, en av Nordens största bostadsutvecklare. Som OBOS-medlem får du förtur till våra bostäder, tomter och inflyttningsklara hus. Inte nog med förtur, så får du även fina förmåner för vardagsliv och vardagslyx!

Läs mer

Frågor och svar

Hej!

Berätta för oss i vilken kommun du vill bygga. Vi kommer anpassa webbplatsen till din valda kommun för att förenkla för dig.