Smart 117

Allt om detta hus
  • Bygghöjd 3,1 m
  • Byggarea 132 m2
  • Taklutning 27°
  • Antal rum 4 rum och kök

Arkitekt

Frida Andersson

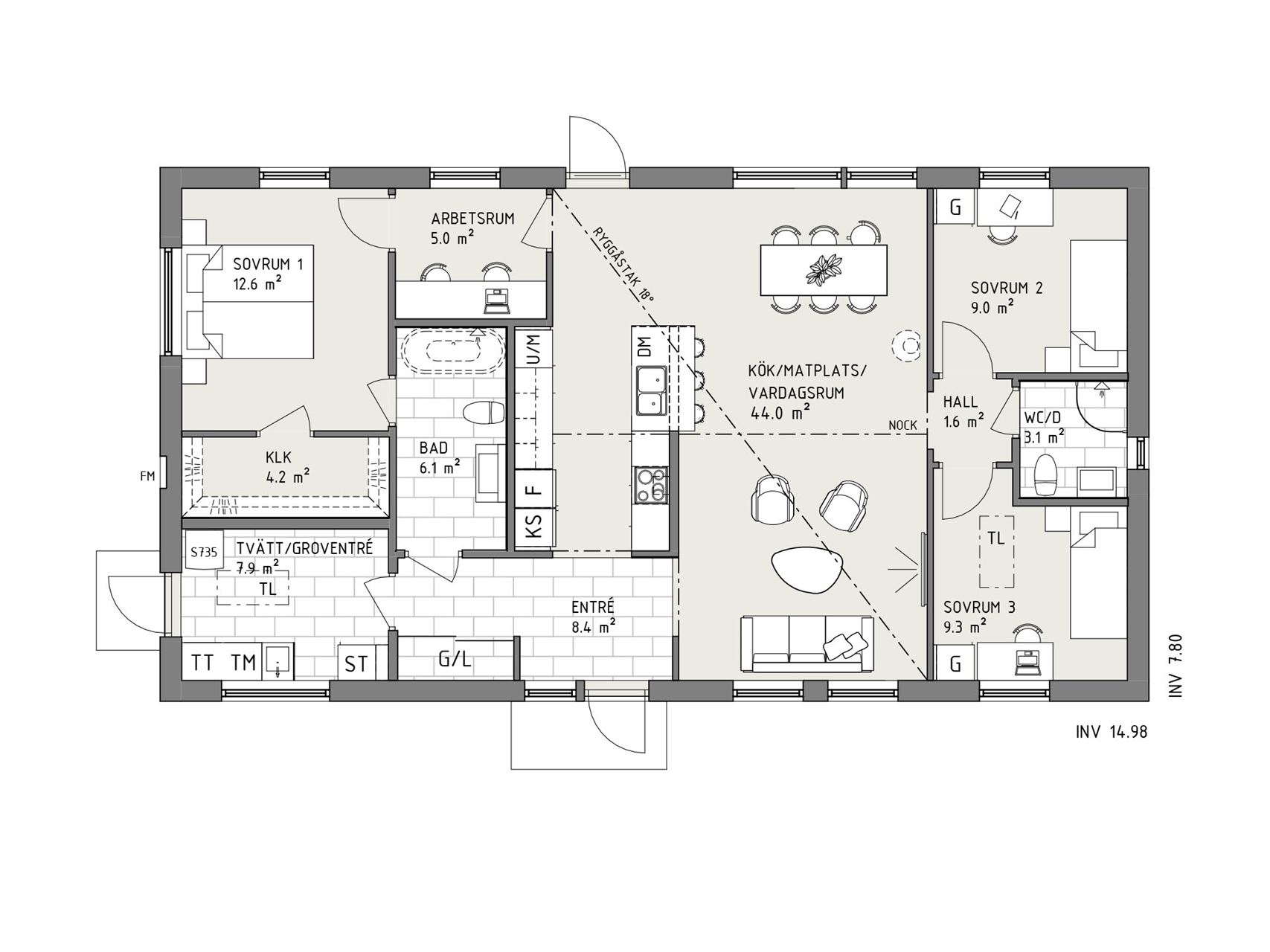
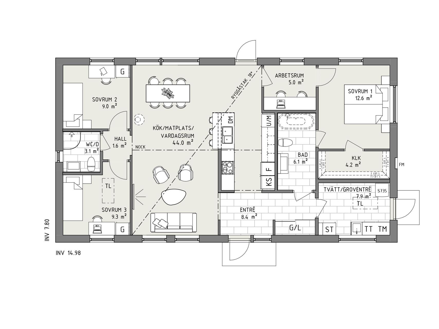
Se planlösning

Ljust, trivsamt och riktigt smart 1-planshus

Välkommen till ett hus fyllt av smarta lösningar för en lite härligare vardag. Bra förvaring, föräldrasovrum med walk-in-closet och egen ingång till badrummet – liksom ett extra rum för ditt hemmakontor, till exempel.

Redan i den rymliga entrén fångas vi av siktlinjen rakt genom huset. I husets mitt trivs det sociala livet i en ljus öppen planlösning där kökets placering gör att rumskänslan ändå är närvarande. På var sin sida om den väntar husets mer privata delar. Dels barnens domän med två sovrum och toalett med dusch. Dels det luftiga föräldrasovrummet, som nås via genomgångsrummet som passar utmärkt som hemmakontor – eller kanske som första rum för familjens minsting? Lika smarta fördelar är det fina klädvårdsutrymmet med groventré och badrummets extra ingång som skapar hotellkänsla i föräldrasovrummet.

Produktbilderna innehåller tillval, se dem som inspirationsmaterial.

Planlösning

Industriell stil

Smart 117 bjuder på ljusa och luftiga sociala ytor där köket ligger lite lagom avskilt så att du slipper se disken från soffan. Dessutom separat barn- och föräldraavdelning och många smarta detaljer som gör huslivet lite härligare.

Visningar

Smart 117

Kundhus

lördag 7 mar

11:00-13:00

Körvelvägen 11, Kolmården

Läs mer
Per Andersson Säljare, Myresjöhus

Nyfiken och vill veta mer?

Vad kostar det?

Hör av dig till oss så återkommer vi med en detaljerad kalkyl baserad på vad och vart du vill bygga.

Bli inspirerad!

Utforska alla våra husmodeller bekvämt hemma i soffan. I brevlådan inom några dagar!

Kontakta oss

Hur vill du att vi kontaktar dig?

Beställ katalog

Maxad inspiration till soffmyset

Industriellt hem med karaktär

Här ser vi Smart 117 i stilen Industriell. En husdröm med mycket karaktär, tack vare sina djärva kontraster och svarta småspröjsade fönster. Smart 117 erbjuds i två olika utföranden. Var och en med sin egen fönsterkonfiguration som tillsammans med färgsättningen ger stora möjligheter att skapa olika uttryck. Huset i detta utförande trivs också alldeles utmärkt i en mer traditionell lantlig stil, medan den moderna versionen med stora fönster utan spröjs i sin tur skapar stora stilrena möjligheter. Valet är ditt.

Det här är ett hus med många möjligheter, både när det gäller funktion och uttryck.
Frida Andesson, Arkitekt

Dina valmöjligheter

Små detaljer som piffar upp och stora tillval som gör dagarna bättre för hela familjen. Något som gör hemmet lite mer personligt. Lite mer perfekt för just dig. 

Bläddra i katalogen

Ett kontrakt, en kontakt

Ert viktigaste val

En fråga som är lika viktig som vilket hus du ska bygga är hur det ska byggas. På Myresjöhus erbjuder vi totalentreprenad till fast pris där din egen projektledare ingår. Nyckelfärdigt hus i ordets rätta bemärkelse!

Mer om totalentreprenad

Hitta tomt att bygga på

Sök på t.ex. adress, område, stad, kommun, län, projekt-/objektnamn

Liknande hus

Bli OBOS-medlem

Vi på Myresjöhus är en del av OBOS, en av Nordens största bostadsutvecklare. Som OBOS-medlem får du förtur till våra bostäder, tomter och inflyttningsklara hus. Inte nog med förtur, så får du även fina förmåner för vardagsliv och vardagslyx!

Läs mer

Frågor och svar

Hej!

Berätta för oss i vilken kommun du vill bygga. Vi kommer anpassa webbplatsen till din valda kommun för att förenkla för dig.