Husmodell: Kilsten, Industriell
  • Bygghöjd 3,1 m
  • Byggarea 174 m2
  • Antal rum 3 sovrum

Arkitekt

Frida Andersson

Se planlösning

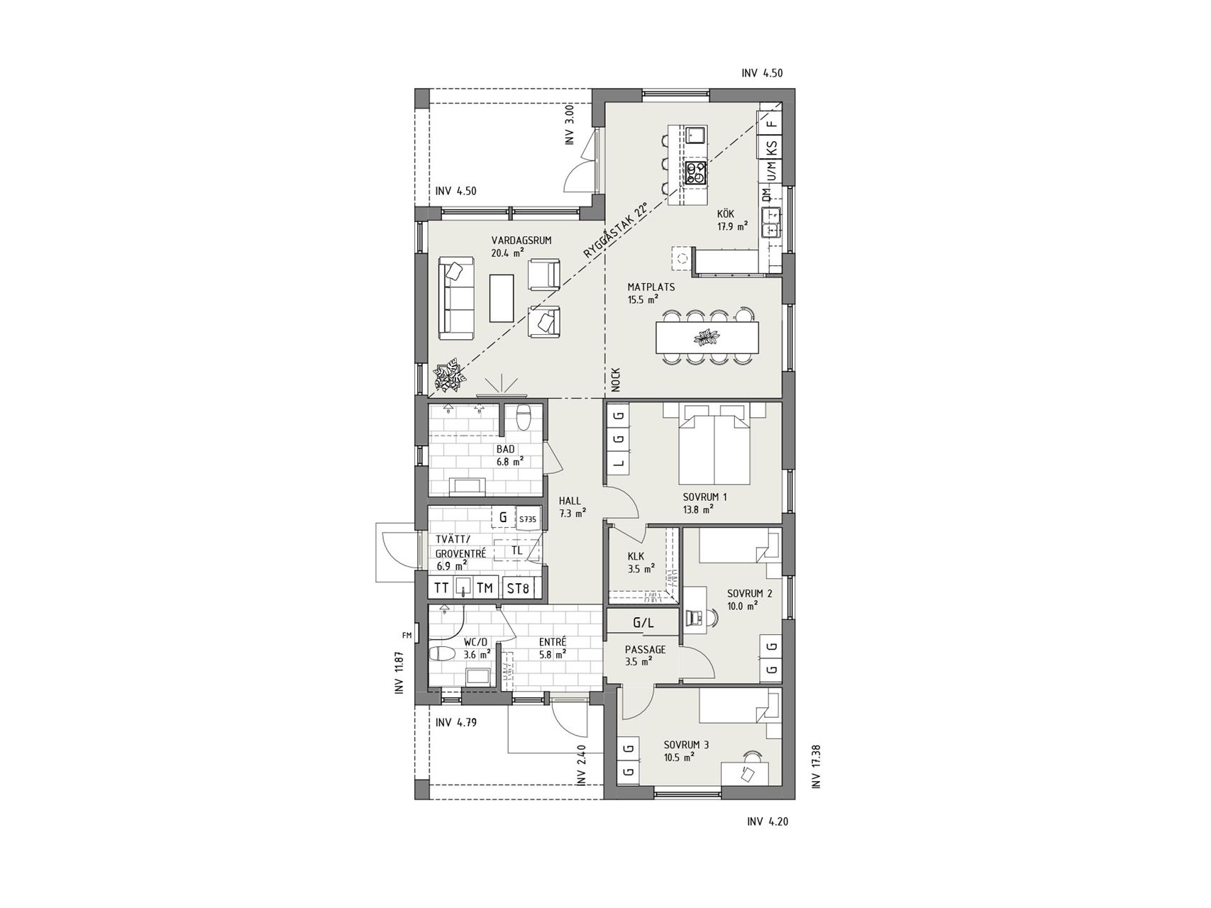
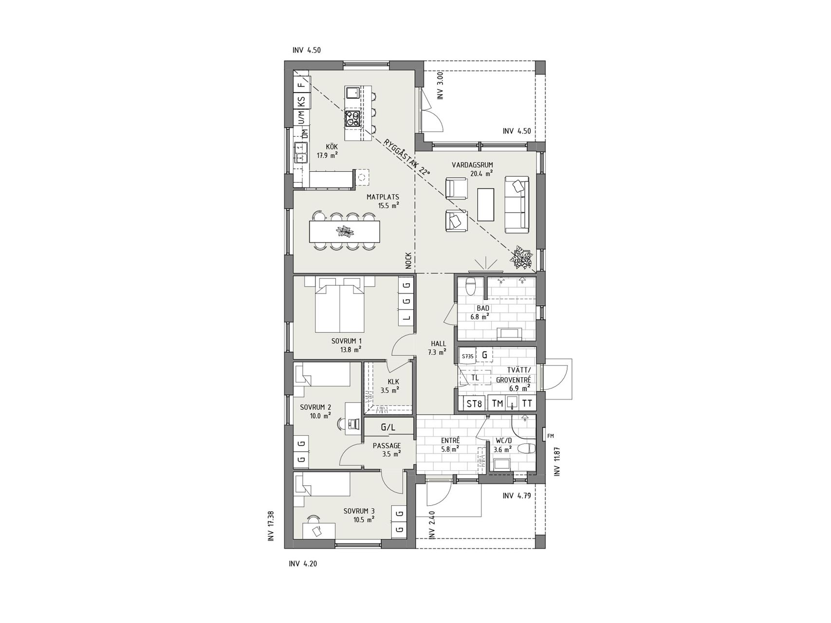
Ett 1-planshus med många funktioner på en mindre yta

Kilsten är ett elegant enplanshus med generöst ljusinsläpp och en planlösning som verkligen låter dig ta vara på ytan. Med tre sovrum passar huset såväl den mindre barnfamiljen som ett yngre eller äldre par.

Både köket och vardagsrummet är smart planerat, vilket skapar ett härligt flöde mellan de två rummen som ligger i vinkel. I själva köket finns ett dekorativt glasparti mellan arbetsytan och matplatsen. Det knyter samman de två ytorna – samtidigt som det skapar olika rumsligheter. Här måste vi ju också nämna den ljuvliga, indragna uteplatsen som väntar utanför vardagsrummet.

Husets tre sovrum ligger lite vid sidan av händelsernas centrum. Får ni ett sovrum över passar det lika bra som gästrum, hemmakontor, eller varför inte ditt eget sy- eller pysselrum? Naturligtvis innehåller Kilsten också praktiska fördelar i form av badrum, extra toalett med dusch och en fin tvättstuga med groventré. Och här finns även möjlighet att anpassa planlösningen om du vill ha ett större hus.

Produktbilderna innehåller tillval, se dem som inspirationsmaterial.

Planlösning

Industriell stil

Från entrén när du först husets tre sovrum, alla med utsikt mot trädgården via småspröjsade industrifönster. Vardagsrummet och köket har en öppen planlösning och härlig kontakt med utsidan via markerade, generösa ljusinsläpp.

Känns det bara nästan rätt?

Då kan vi hjälpa dig att anpassa planlösningen för att den ska passa er perfekt.

Mattias Starlander Säljare, Myresjöhus

Nyfiken och vill veta mer?

Vad kostar det?

Hör av dig till oss så återkommer vi med en detaljerad kalkyl baserad på vad och vart du vill bygga.

Bli inspirerad!

Utforska alla våra husmodeller bekvämt hemma i soffan. I brevlådan inom några dagar!

Kontakta oss

Hur vill du att vi kontaktar dig?

Beställ katalog

Maxad inspiration till soffmyset

Kilsten x Industriell

Den industriella stilen handlar om vackra kontraster, som här, där den ljusa putsade fasaden möter de svarta småspröjsade fönstren. Den indragna uteplatsen med fönster i vinkel mellan kök och vardagsrum ger huset ett eget karaktärsdrag. Likaså bidrar det högresta industrifönstret i köket med en unik känsla till husets gavelfasad.

I köket finns ett glasparti mellan arbetsytan och matplatsen som knyter dem samman.
Frida Andersson, Arkitekt

Dina valmöjligheter

Små detaljer som piffar upp och stora tillval som gör dagarna bättre för hela familjen. Något som gör hemmet lite mer personligt. Lite mer perfekt för just dig. 

Bläddra i katalogen

Ett kontrakt, en kontakt

Ert viktigaste val

En fråga som är lika viktig som vilket hus du ska bygga är hur det ska byggas. På Myresjöhus erbjuder vi totalentreprenad till fast pris där din egen projektledare ingår. Nyckelfärdigt hus i ordets rätta bemärkelse!

Mer om totalentreprenad

Uppskattad energianvändning

Här kan du få en uppfattning om hur energisnålt ett nytt Myresjöhus faktiskt är. Fyll i din kommun för att se uppskattad energianvändning i ditt drömhus just där du vill bygga.

När du väljer en plats du vill bygga på så anpassar vi webbplatsen för att ge dig mer relevant information. Du kan byta plats när som helst.

Energianvändning

(värme & varmvatten)

4 300

kWh/år
Malmö (grundval)

Total energi­användning*

(inklusive hushållsel)

8 300

kWh/år
Energiklass

B

Bo billigare i nybyggt hus

Idag tror många att de inte har råd att bygga ett nytt hus – och allt för många vet heller inte hur mycket billigare det faktiskt är att bo i ett nybyggt hus.

80% lägre energiförbrukning i ett nybyggt Myresjöhus

Att nybyggda hus är energisnåla hus är ingen nyhet, speciellt inte jämfört med äldre villor. Men visste du hur mycket det faktiskt kan skilja?

Spara ännu mer med solceller

Genom att utrusta ditt Myresjöhus med rätt antal solceller kan du nästan bli helt självförsörjande på el. Ett tillval som lönar sig i längden.

Hitta tomt att bygga på

Sök på t.ex. adress, område, stad, kommun, län, projekt-/objektnamn

Liknande hus

Bli OBOS-medlem

Vi på Myresjöhus är en del av OBOS, en av Nordens största bostadsutvecklare. Som OBOS-medlem får du förtur till våra bostäder, tomter och inflyttningsklara hus. Inte nog med förtur, så får du även fina förmåner för vardagsliv och vardagslyx!

Läs mer

Frågor och svar

Hej!

Berätta för oss i vilken kommun du vill bygga. Vi kommer anpassa webbplatsen till din valda kommun för att förenkla för dig.